← Back to Hambleton District Council (Legacy)

Status

Awaiting decision Change of use
Received
07 Oct 2025
New dwellings
0

Full Proposal

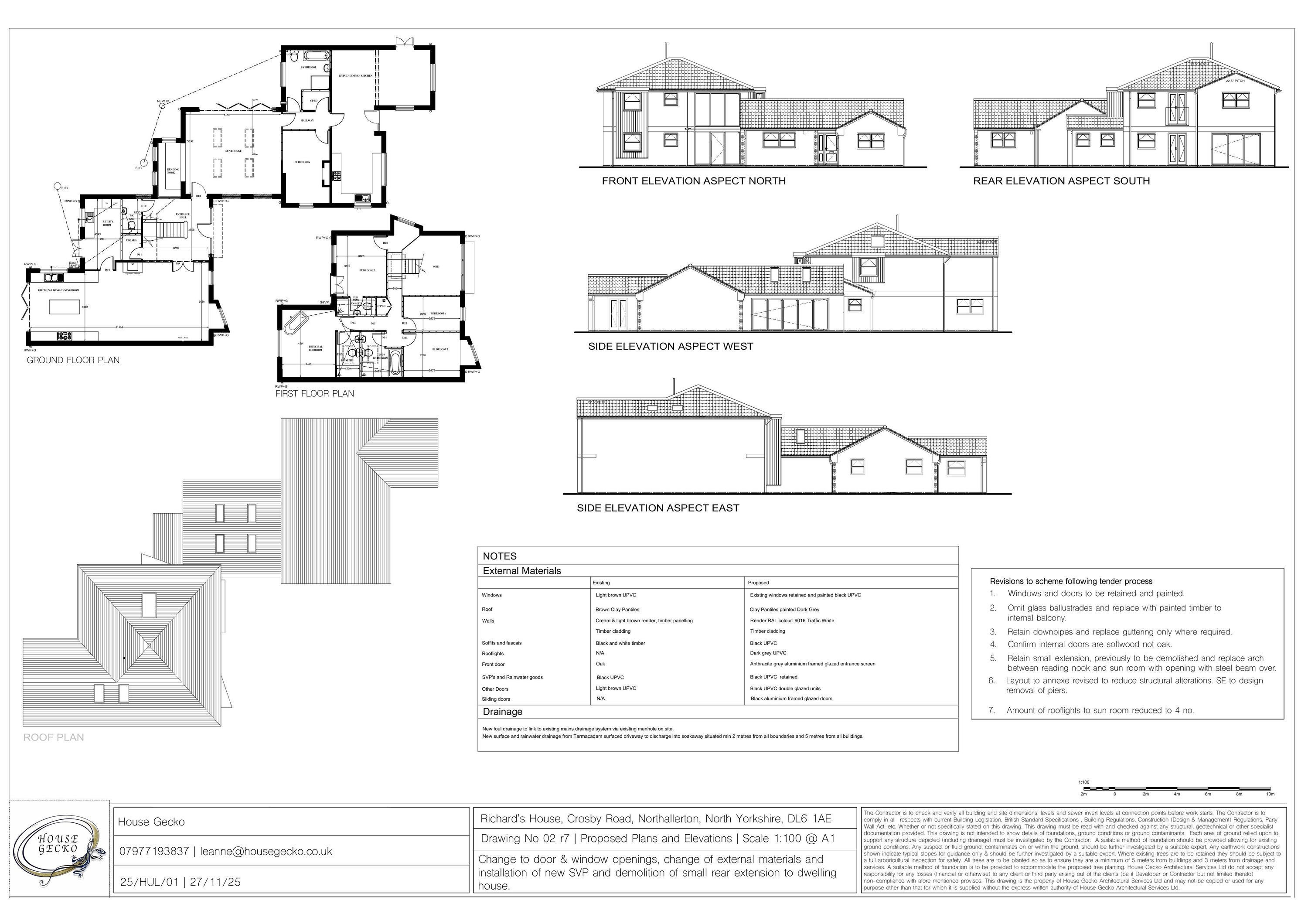
Application for Planning Permission: Change of use from childrens nursery to dwelling house, change to door and window openings, change of external materials, installation of SPV and demolition of small rear extension.

Documents

Environmental Health
Statutory Consultation Reply
Not archived · Council Link
Location Plan.pdf
Location Plan
Not archived · Council Link
NEUTRAL - "Any planning permission needs to acknowledge that this building is right next to a school and shares..."
Observations (incoming)
Not archived · Council Link
No objection
Statutory Consultation Reply
Not archived · Council Link
No objections
Statutory Consultation Reply
Not archived · Council Link
proposed and existing elevations 02 R4
Superseded Plan
Not archived · Council Link
Revised
Existing plans and elevations
Not archived · Council Link
revised proposed and existing block plan 03 R3
Amended Plans
Not archived · Council Link
revised proposed and existing block plans 03 R1
Superseded Plan
Not archived · Council Link
superseded existing and proposed block plan 03 R1
Superseded Plan
Not archived · Council Link

Take Action

Make your voice heard. Authorities need to hear from people who support new homes.

✉️ Write Email in Support View on Council Portal