← Back to Hambleton District Council (Legacy)

Status

Awaiting decision Change of use
Received
24 Nov 2025
New dwellings
2

Full Proposal

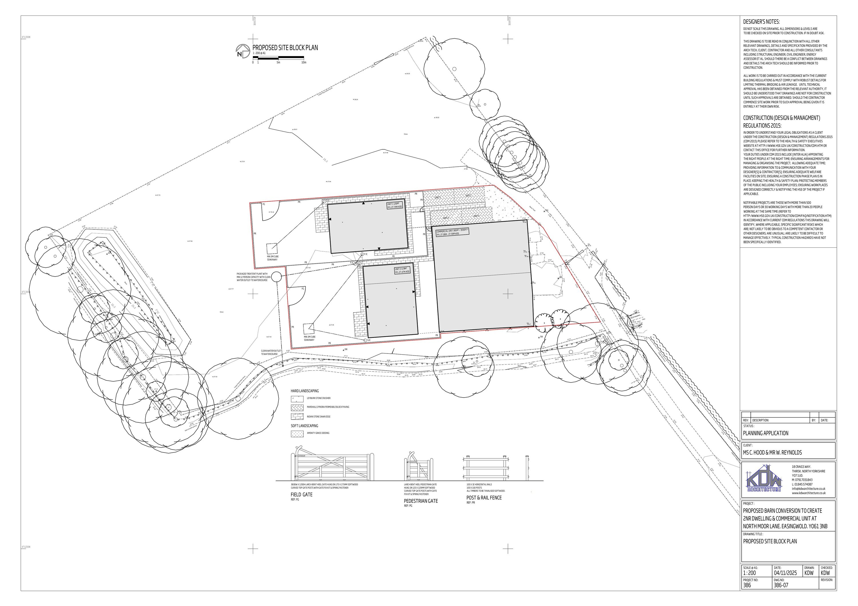
Proposed barn conversion to create 2no two-bedroom single-storey dwellings and 1no commercial unit for use by the occupiers of the proposed dwellings

Documents

386 Contamination Screening Assessment A4.pdf
NEW PALC FORM -MADE PUBLIC
Not archived · Council Link
386 Planning and Design Statement A4.pdf
Design & Access Statement
Not archived · Council Link
386-03 EXISTING FLOOR PLAN 1TO100 A2.pdf
Existing Floor Plan
Not archived · Council Link
386-04 EXISTING ELEVATIONS 1TO100 A1.pdf
Elevations Existing
Not archived · Council Link
386-05A PROPOSED FLOOR PLAN 1TO100 A2.pdf
Proposed floor plan
Not archived · Council Link
386-06A PROPOSED ELEVATIONS 1TO100 A1 SK.pdf
Elevations Proposed
Not archived · Council Link
Proposed block plan
Archived · Council Link
ApplicationFormRedacted.pdf
Planning Application (public viewing)
Not archived · Council Link
Biodiversity Net Gain Assessment
Biodiversity Net Gain Assessment
Not archived · Council Link
Kyle and Ouse IDB
Statutory Consultation Reply
Not archived · Council Link
Lead local flood authority
Statutory Consultation Reply
Not archived · Council Link
Needs registering
Statutory Consultation Reply
Not archived · Council Link
NYC ECology
Statutory Consultation Reply
Not archived · Council Link
Preliminary Ecological Appraisal & Biodiversity Net Gain Assessment
Survey
Not archived · Council Link
RAF MoD
Statutory Consultation Reply
Not archived · Council Link
Structural Engineer report redacted
Word Document
Not archived · Council Link
Town Council
Statutory Consultation Reply
Not archived · Council Link
YOR-P004-RP-C-001-P01 Flood Risk Assessment.pdf
Flood Assessment
Not archived · Council Link
Yorkshire Water
Statutory Consultation Reply
Not archived · Council Link

Take Action

Make your voice heard. Authorities need to hear from people who support new homes.

✉️ Write Email in Support View on Council Portal