← Back to Hammersmith & Fulham

Status

Pending Decision Change of use
Received
n/a
New dwellings
1

Full Proposal

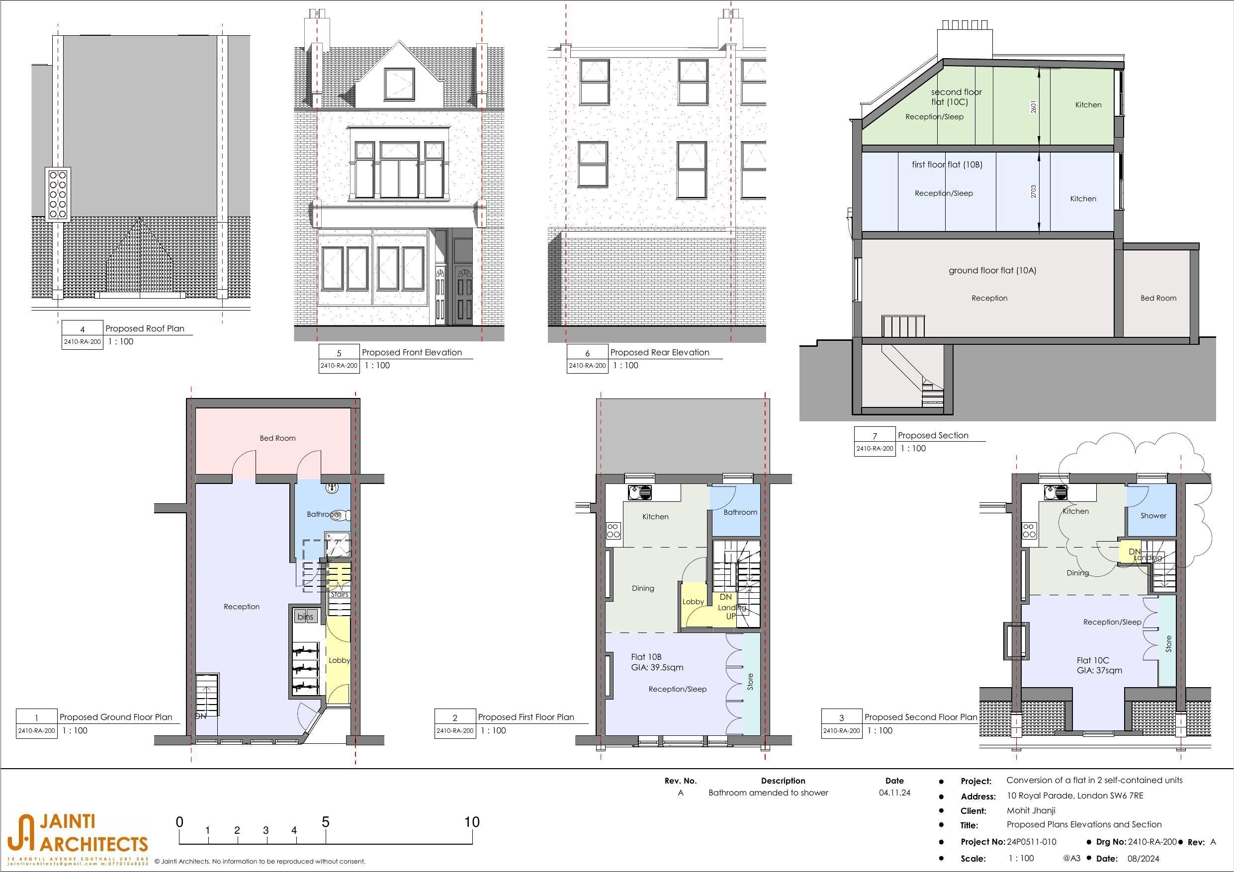
Conversion of the first and second floor level from 1 x 2 bedroom self-contained flat into 2no self-contained studio flats.

Documents

10_ROYAL_PARADE_SW6_7RE_FORM_1_CIL
Drawing
Not archived · Council Link
2410-RA-100 - EXISTING PLANS ELEVATIONS AND SECTION
Drawing
Not archived · Council Link
ACKNOWLEDGEMENT VALID APPLICATION
Correspondence
Not archived · Council Link
ACKNOWLEDGEMENT VALID APPLICATION
Correspondence
Not archived · Council Link
APPLICATIONFORMREDACTED
Application Form
Not archived · Council Link
DESIGN AND ACCESS STATEMENT - 10 ROYAL PARADE FULHAM SW6 7RE
Drawing
Not archived · Council Link
FLOOD RISK ASSESSMENT - 10 ROYAL PARADE FULHAM SW6 7RE
Drawing
Not archived · Council Link
INVALID LETTER PLANNING APPLICATIONS
Correspondence
Not archived · Council Link
INVALID LETTER PLANNING APPLICATIONS
Correspondence
Not archived · Council Link
OFFICER'S FILE NOTE
Report
Not archived · Council Link
REVISED PROPOSED HATCHED PLANS
Revised Drawing
Not archived · Council Link
THE LOCATION PLAN_INCLUDED_IN_SITEBLOCK PLAN - EXISTING
Drawing
Not archived · Council Link

Take Action

Make your voice heard. Authorities need to hear from people who support new homes.

✉️ Write Email in Support View on Council Portal