← Back to Hammersmith & Fulham

Status

Pending Consideration Change of use
Received
n/a
New dwellings
0

Full Proposal

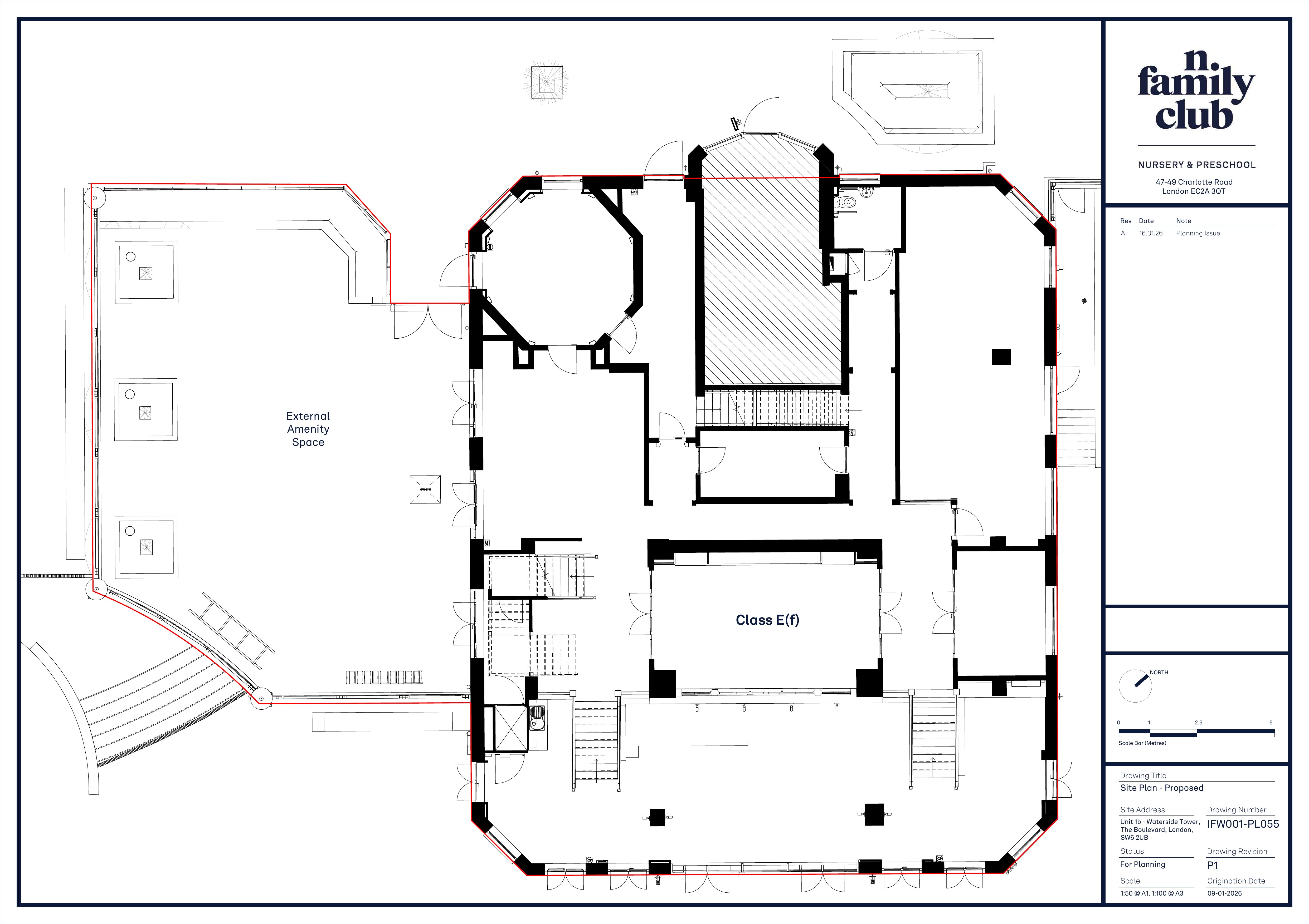
Change of use of the existing building and land from office (Class E(g)(i)) to a children's nursery (Use Class E(f)).

Documents

ACKNOWLEDGEMENT VALID APPLICATION
Correspondence
Not archived · Council Link
ACKNOWLEDGEMENT VALID APPLICATION
Correspondence
Not archived · Council Link
ACKNOWLEDGEMENT VALID APPLICATION
Correspondence
Not archived · Council Link
APPLICATIONFORMREDACTED
Application Form
Not archived · Council Link
COMPLETED CIL FORM UNIT 1B (1)
Drawing
Not archived · Council Link
IFW001-PL001_BLOCK PLAN
Drawing
Not archived · Council Link
IFW001-PL009_EXISTING BASEMENT PLAN
Drawing
Not archived · Council Link
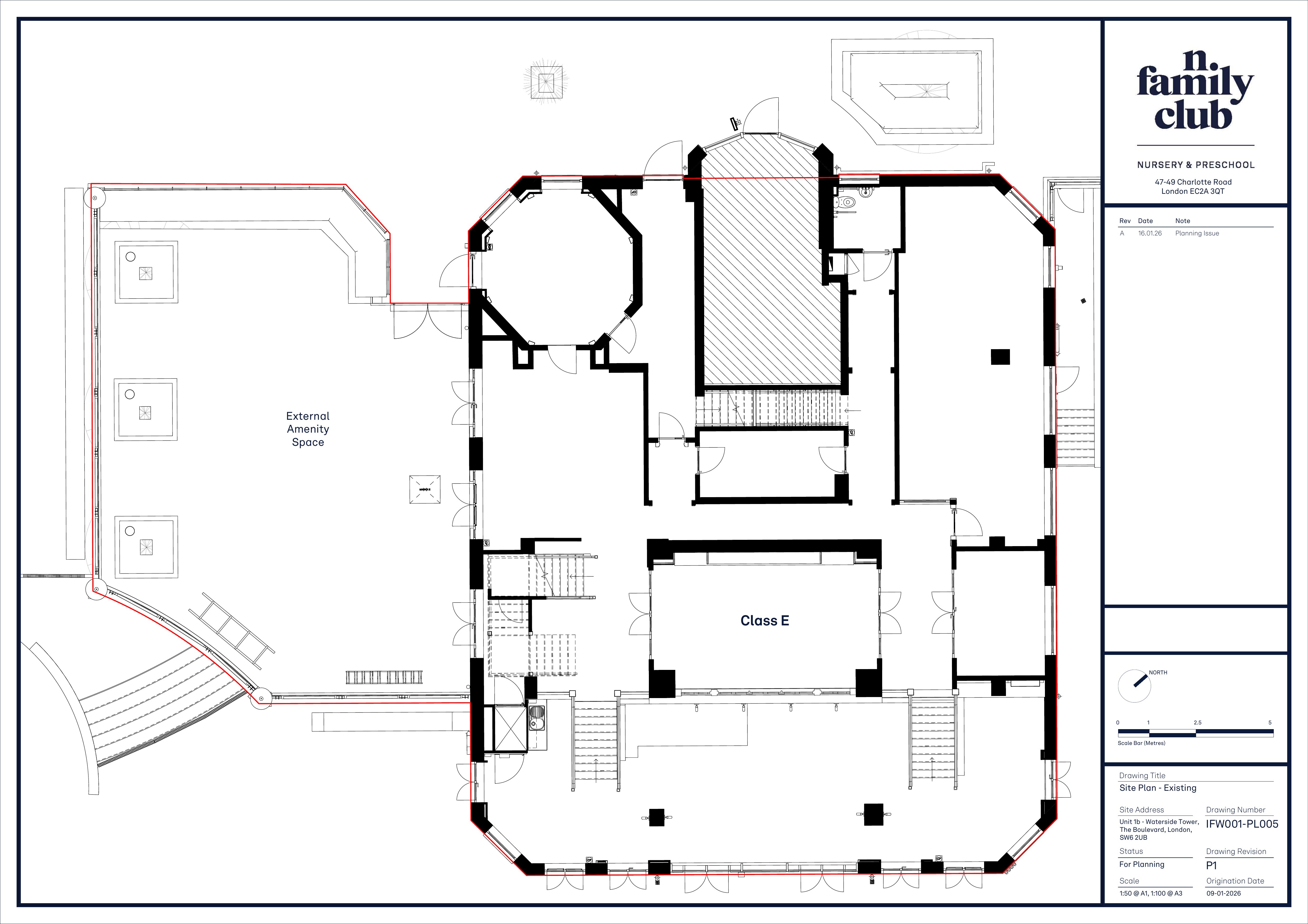
IFW001-PL010_EXISTING GROUND FLOOR PLAN
Drawing
Not archived · Council Link
IFW001-PL011_EXISTING FIRST FLOOR PLAN
Drawing
Not archived · Council Link
IFW001-PL049_PROPOSED BASEMENT PLAN
Drawing
Not archived · Council Link
IFW001-PL050_PROPOSED GROUND FLOOR PLAN
Drawing
Not archived · Council Link
IFW001-PL051_PROPOSED FIRST FLOOR PLAN
Drawing
Not archived · Council Link
IMPERIAL WHARF CLOPUD COVER LETTER (INCL APPENDIX)
Drawing
Not archived · Council Link
OFFICER'S FILE NOTE
Report
Not archived · Council Link

Take Action

Make your voice heard. Authorities need to hear from people who support new homes.

✉️ Write Email in Support View on Council Portal