← Back to Harborough District Council

Status

Pending Consideration New housing
Received
16 Dec 2025
New dwellings
1

Full Proposal

Erection of one custom and self build dwelling

Documents

APPLICATION FORM - WITHOUT PERSONAL DATA
Application Form
Not archived · Council Link
ARBORICULTURAL SURVEY
Supporting Information
Not archived · Council Link
Design & Access Statement
Design & Access Statement
Not archived · Council Link
ECOLOGICAL IMPACT ASSESSMENT
Ecology Survey
Not archived · Council Link
Existing Plans
Archived · Council Link
HDC ENV. SERVICES
Consultation Response
Not archived · Council Link
HDC REGULATORY SERVICES
Consultation Response
Not archived · Council Link
Heritage Report
Heritage Report
Not archived · Council Link
ILLUSTRATIVE VIEW - FRONT
Supporting Information
Not archived · Council Link
ILLUSTRATIVE VIEW - REAR
Supporting Information
Not archived · Council Link
Proposed Elevations
Proposed Elevations
Not archived · Council Link
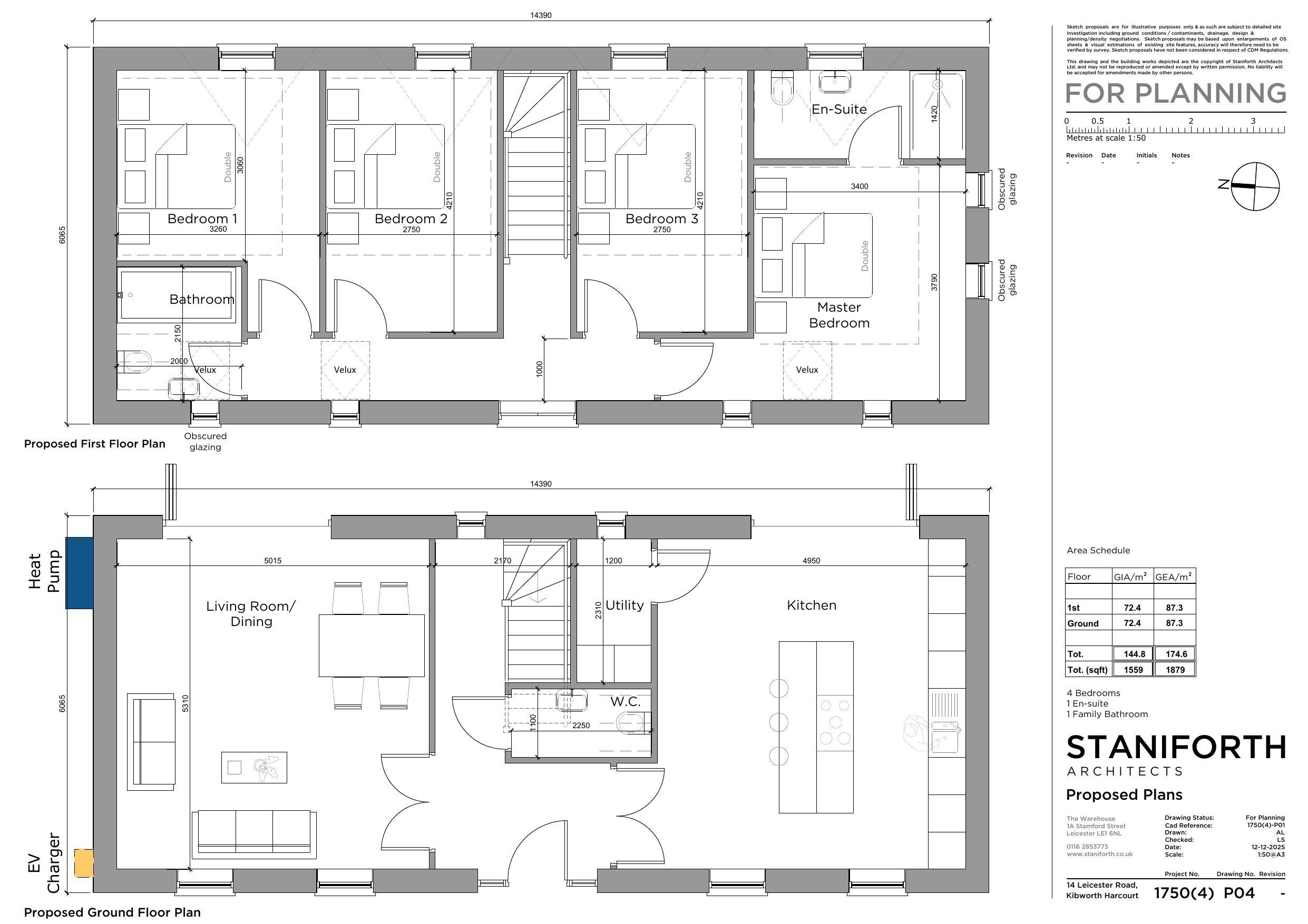
Proposed Floor Plans
Archived · Council Link
Proposed Plan
Archived · Council Link
ROOF PLAN - PROPOSED
Proposed Plan
Not archived · Council Link
THE LOCATION PLAN
Site Location
Not archived · Council Link

Take Action

Make your voice heard. Authorities need to hear from people who support new homes.

✉️ Write Email in Support View on Council Portal