HW/FUL/25/00481
Harlow Council · IDOX
Status
Unknown
Change of use
Received
12 Nov 2025
New dwellings
0
Summary
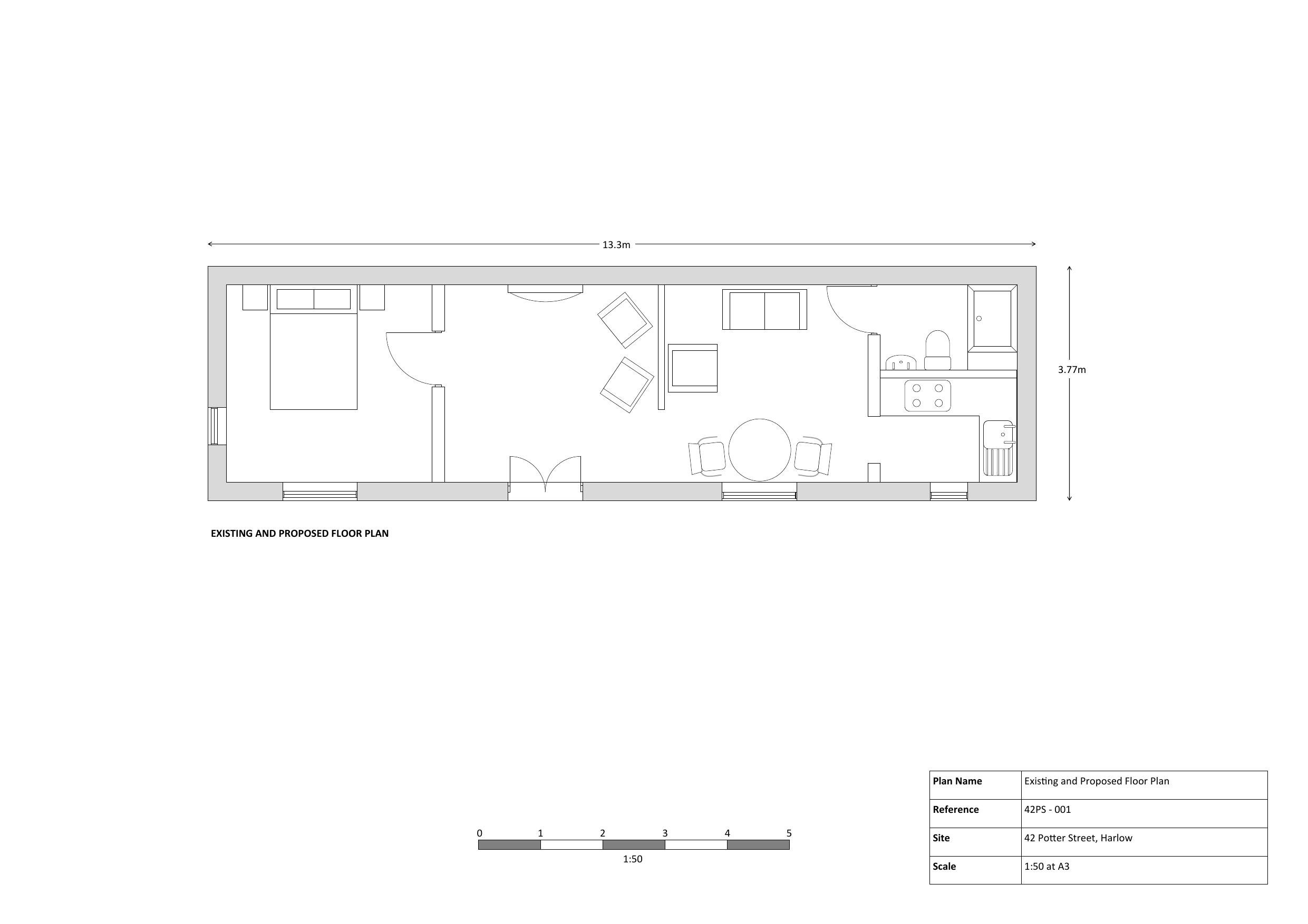
Change of use to allow residential annex six months annually and short-term holiday let for remainder.
Full Proposal
Change of use of an existing residential annex to a mixed use as an annex and short-term holiday let, to allow occupation as an annex for six months of the year and use as visitor accommodation for the remainder
Documents
ECC HERITAGE OFFICER PLACE SERVICES CONSULTATION RESPONSE
Consultees Response
Not archived
· Council Link
Take Action
Make your voice heard. Authorities need to hear from people who support new homes.