← Back to Harlow Council

Status

Unknown New housing
Received
Last month
New dwellings
2

Full Proposal

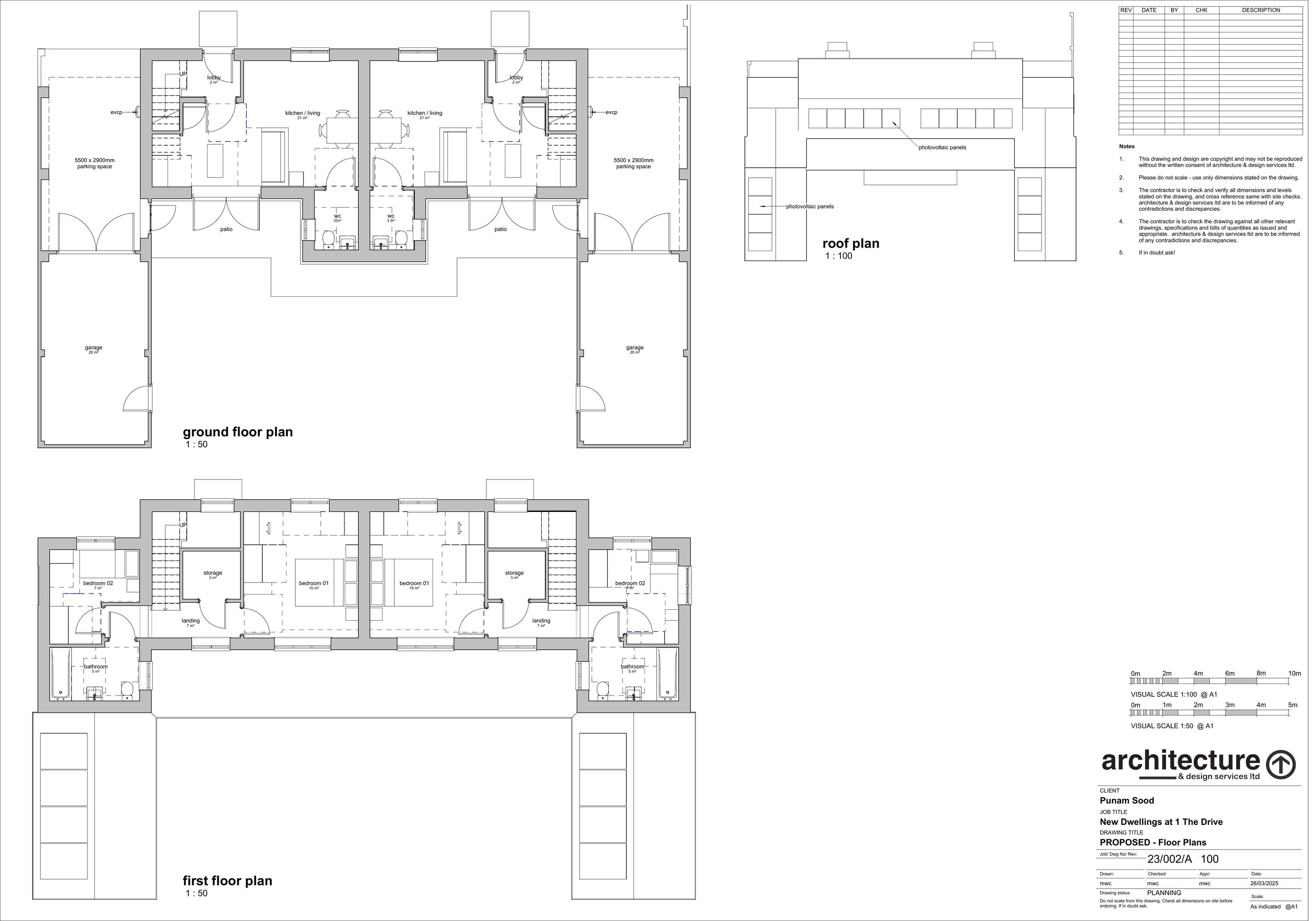
Construction of 2 no. semi-detached dwellings with associated hard and soft landscaping.

Documents

23-002-A WATER CALCULATOR
Statement
Not archived · Council Link
APPLICATION FORM - WITHOUT PERSONAL DATA
Application Form Redacted
Not archived · Council Link
APPLICATION LETTER
Application Letter
Not archived · Council Link
ARBORICULTURAL CONSULTATION RESPONSE
Consultees Response
Not archived · Council Link
BASELINE HABITATS
Drawing
Not archived · Council Link
BIO DIVERSITY NET GAIN ASSESSMENT DATED NOVEMBER 2025
Statement
Not archived · Council Link
Drawing
Archived · Council Link
DESIGN & ACCESS STATEMENT DATED NOVEMBER 2025
Statement
Not archived · Council Link
Drawing
Archived · Council Link
LANDSCAPE PROPOSALS
Drawing
Not archived · Council Link
LOCATION AND BLOCK PLANS
Drawing
Not archived · Council Link
PROPOSED ACCESSIBILITY
Drawing
Not archived · Council Link
PROPOSED ELEVATIONS
Drawing
Not archived · Council Link
Drawing
Archived · Council Link
PROPOSED LANDSCAPING
Drawing
Not archived · Council Link
Drawing
Archived · Council Link
SMALL SITES METRIC STATUTORY BIODIVERSITY METRIC CALCULATION TOOL
Supporting Document
Not archived · Council Link

Take Action

Make your voice heard. Authorities need to hear from people who support new homes.

✉️ Write Email in Support View on Council Portal