← Back to Harlow Council

Status

Unknown House extension
Received
13 Mar 2025
New dwellings
0

Summary

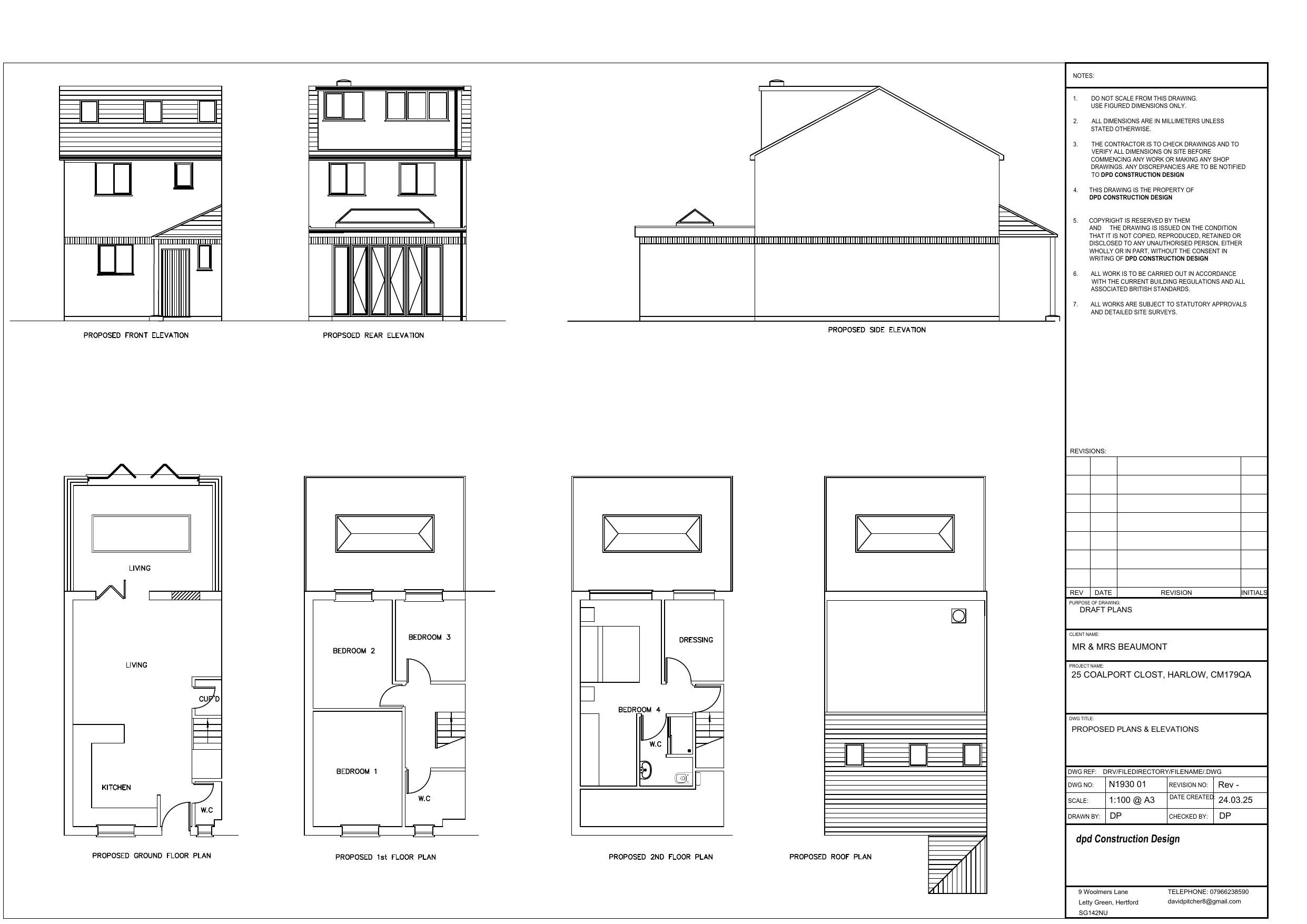
Single-storey rear extension with skylight in flat roof and rear doors.

Full Proposal

Construction of a single storey rear extension with skylight in the flat roof and rear doors.

Documents

APPLICATION FORM - WITHOUT PERSONAL DATA
Application Form Redacted
Not archived · Council Link
DECISION NOTICE
Decision Notice
Not archived · Council Link
DELEGATED OFFICER REPORT
Officer Report
Not archived · Council Link
EXISTING PLANS & ELEVATIONS
Drawing
Not archived · Council Link
Site Location Plan
Archived · Council Link

Take Action

Make your voice heard. Authorities need to hear from people who support new homes.

✉️ Write Email in Support View on Council Portal