← Back to Harlow Council

Status

Unknown House extension
Received
03 Feb 2025
New dwellings
0

Full Proposal

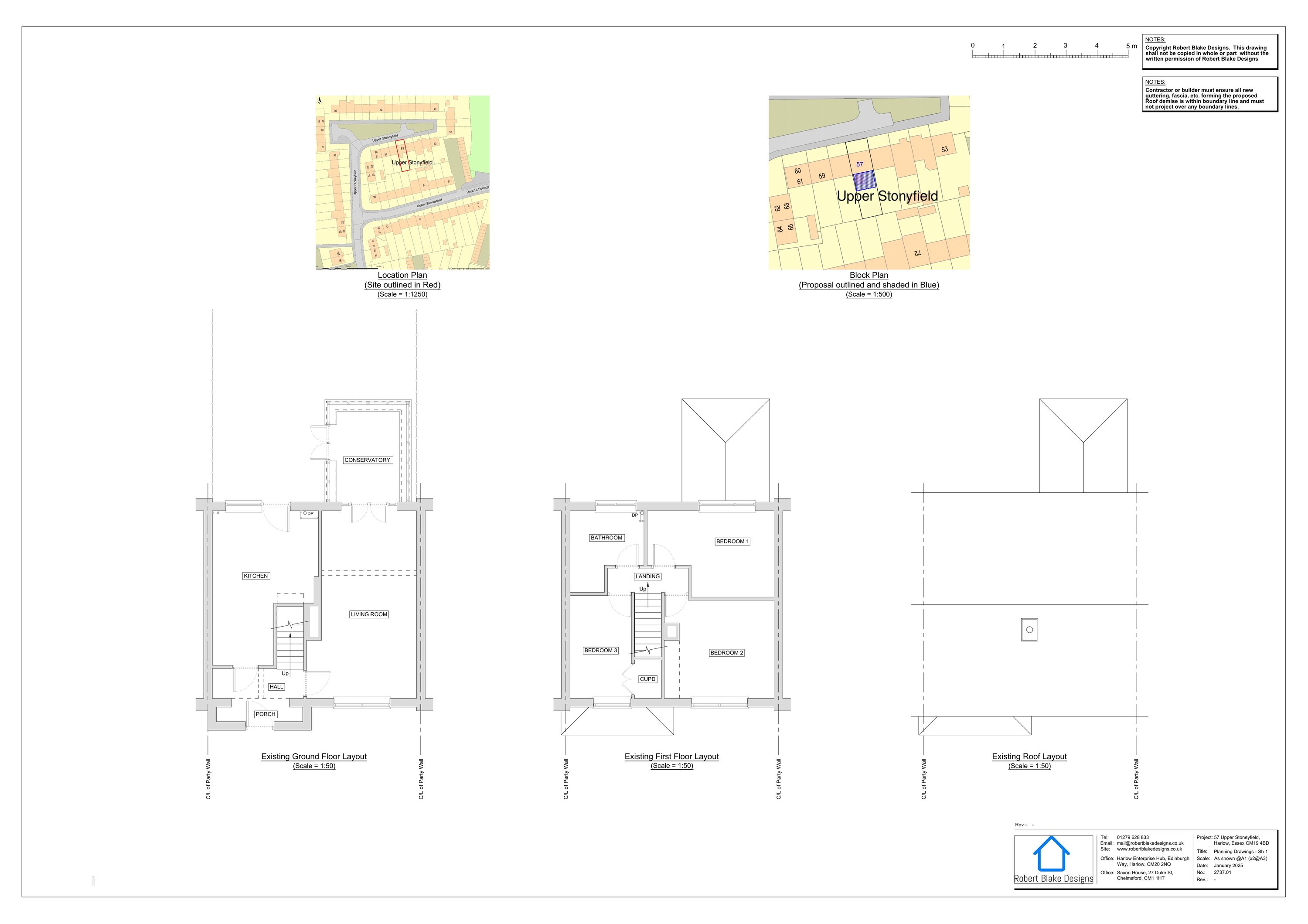
Construction of a single storey flat roof rear extension

Documents

APPLICATION FORM - WITHOUT PERSONAL DATA
Application Form Redacted
Not archived · Council Link
DECISION NOTICE
Decision Notice
Not archived · Council Link
DELEGATED OFFICER REPORT
Officer Report
Not archived · Council Link
EXISTING FRONT, REAR & SIDE ELEVATIONS
Drawing
Not archived · Council Link
FLOOD-MAP-PLANNING-2024-11-23T08_31_28.300Z
Supporting Document
Not archived · Council Link
PROPOSED FRONT, REAR & SIDE ELEVATIONS
Drawing
Not archived · Council Link

Take Action

Make your voice heard. Authorities need to hear from people who support new homes.

✉️ Write Email in Support View on Council Portal