← Back to North Yorkshire (Harrogate and Scarborough)

Status

Registered Change of use
Received
22 Sep 2025
New dwellings
1

Full Proposal

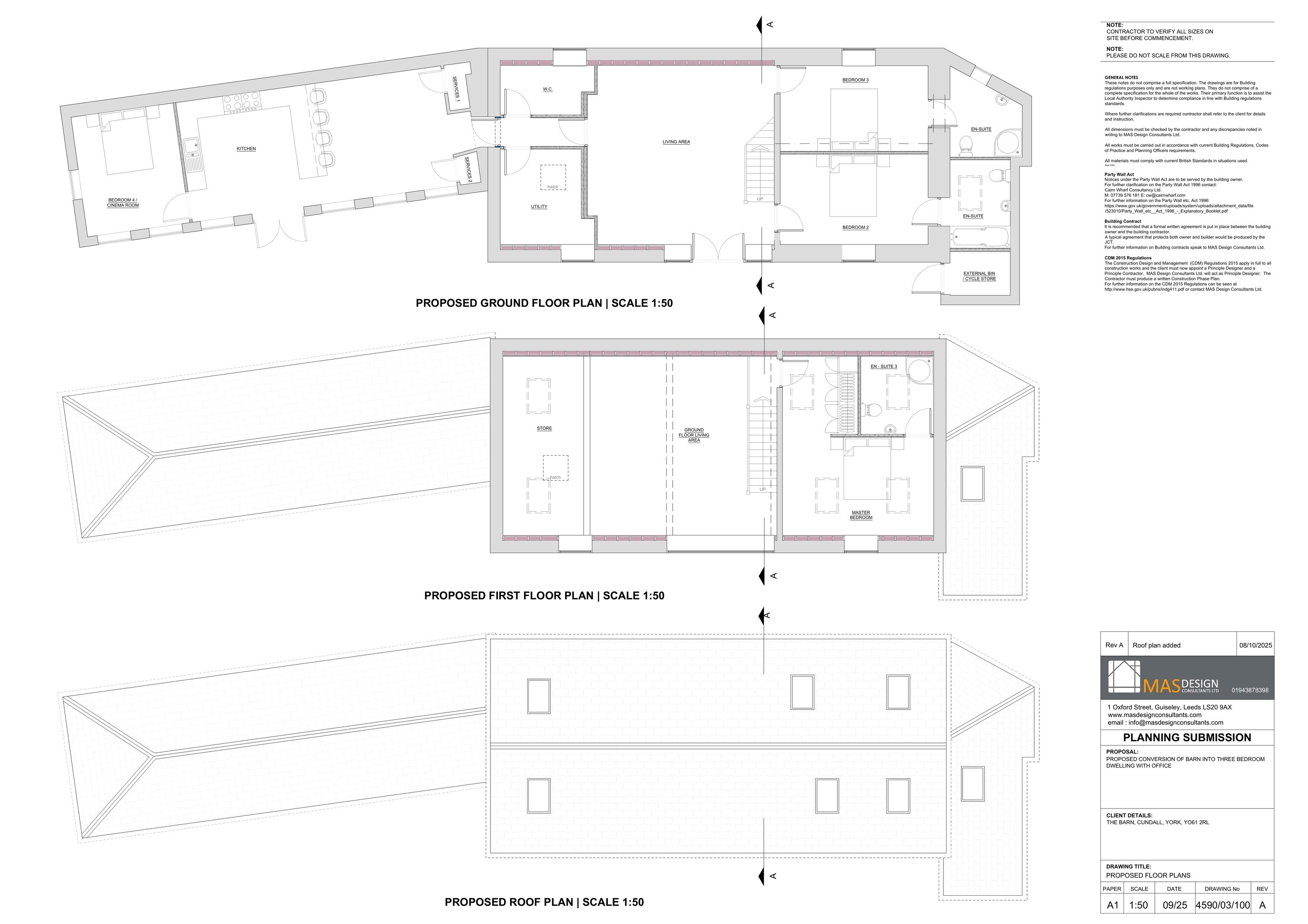
Proposed conversion of the barn into 1no. four bedroom dwelling.

Documents

APPLICATIONFORMREDACTED
Application Form
Not archived · Council Link
CASE OFFICER SITE VISIT NOTES
Case Notes
Not archived · Council Link
CASE OFFICER SITE VISIT NOTES
Case Notes
Not archived · Council Link
CIL FORM
Supporting Information
Not archived · Council Link
CONTAMINATED LAND
Consultee Comment
Not archived · Council Link
ECOLOGY
Consultee Comment
Not archived · Council Link
ENVIRONMENTAL HEALTH
Consultee Comment
Not archived · Council Link
EXISTING ELEVATION AND SECTION PLAN
Plan
Not archived · Council Link
EXISTING GROUND FLOOR AND FIRST FLOOR PLAN
Plan
Not archived · Council Link
EXISTING LOFT FLOOR AND ROOF PLAN
Plan
Not archived · Council Link
HIGHNY
Consultee Comment
Not archived · Council Link
LOCATION PLAN
Location Plan
Not archived · Council Link
NUTTALL, L
Public Comment
Not archived · Council Link
PLANNING STATEMENT
Supporting Information
Not archived · Council Link
PROPOSED ELEVATION AND SECTION PLAN
Plan
Not archived · Council Link
PROPOSED GROUND FLOOR AND FIRST FLOOR PLAN
Plan
Not archived · Council Link
Plan
Archived · Council Link
SITE NOTICE
Site Notice
Not archived · Council Link
SITE NOTICE
Site Notice
Not archived · Council Link
UPDAGT - 3 UPDATE AGT/APP
Case Notes
Not archived · Council Link
WISE, C
Public Comment
Not archived · Council Link

Take Action

Make your voice heard. Authorities need to hear from people who support new homes.

✉️ Write Email in Support View on Council Portal