← Back to North Yorkshire (Harrogate and Scarborough)

Status

Registered Change of use
Received
22 days ago
New dwellings
0

Full Proposal

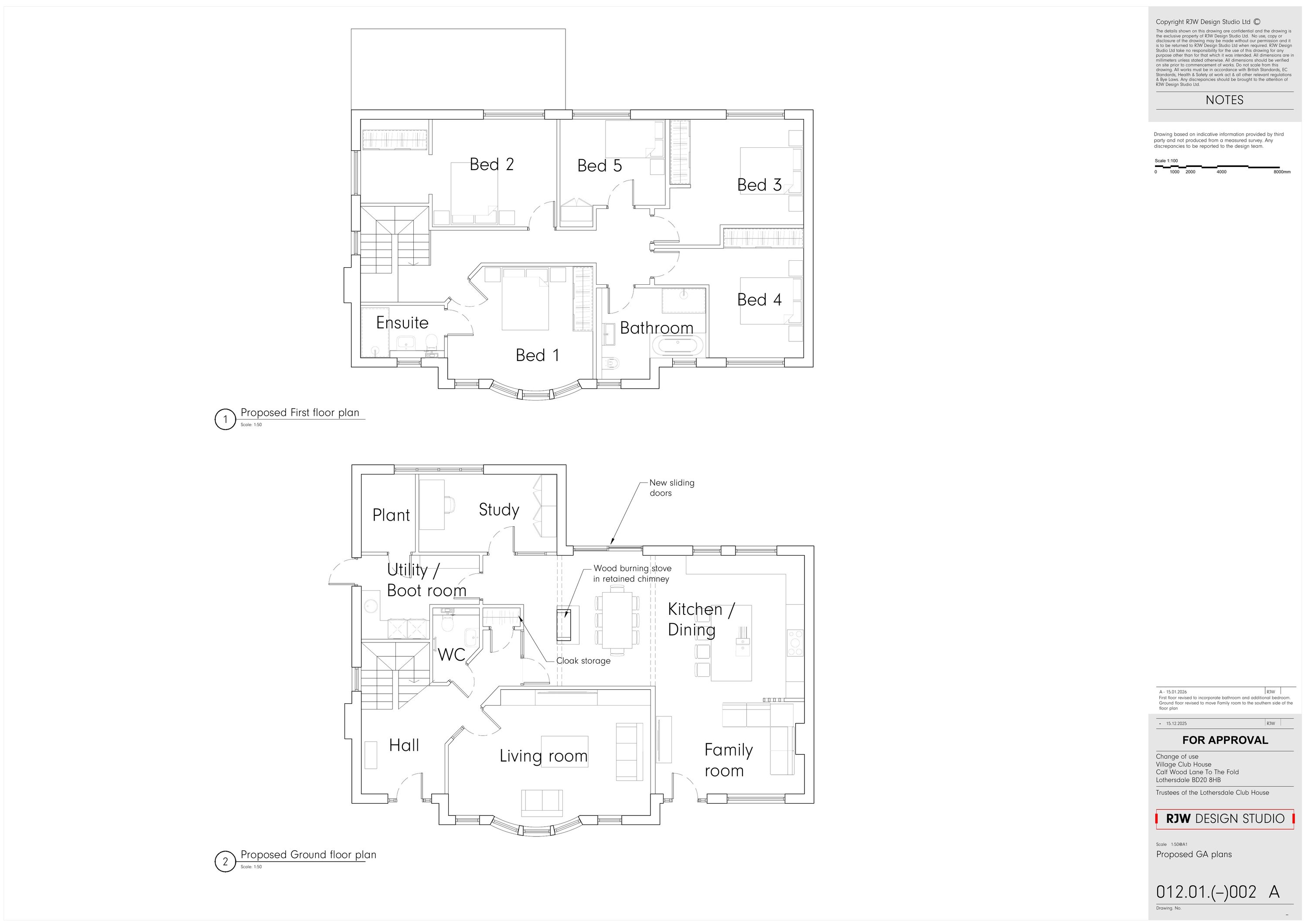
Full planning permission for a change of use of existing Class F2 (Local Community Use) and combining with adjoined Class C3 dwelling for form a single Class C3 dwelling

Documents

APPLICATIONFORMREDACTED
Application Form
Not archived · Council Link
BROWN, A
Public Comment
Not archived · Council Link
C A SITE NOTICE
Site Notice
Not archived · Council Link
DESIGN, ACCESS AND HERITAGE STATEMENT
Supporting Information
Not archived · Council Link
EXISTING ELEVATIONS
Plan
Not archived · Council Link
EXISTING FLOOR PLANS
Plan
Not archived · Council Link
Plan
Archived · Council Link
LOCATION PLAN
Location Plan
Not archived · Council Link
PROPOSED ELEVATIONS
Plan
Not archived · Council Link
Plan
Archived · Council Link

Take Action

Make your voice heard. Authorities need to hear from people who support new homes.

✉️ Write Email in Support View on Council Portal