← Back to North Yorkshire (Harrogate and Scarborough)

Status

Registered Agricultural
Received
09 Oct 2024
New dwellings
0

Full Proposal

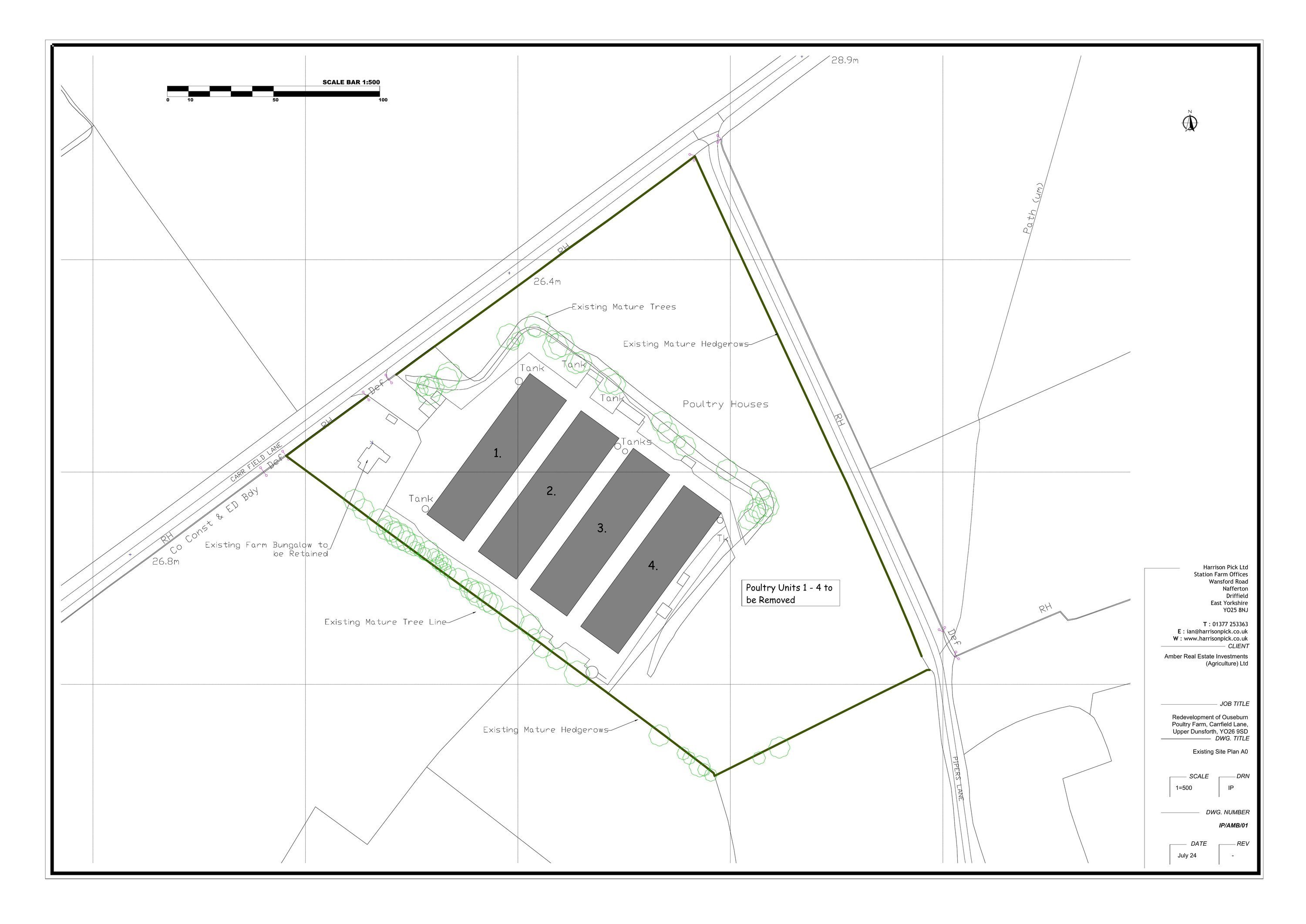
Demolition of existing poultry farm followed by the erection of a replacement poultry farm including six poultry houses with solar panels on their roofs, feed bins, heat exchangers, concrete apron, dirty water tanks, gas tanks, hardstanding, gate house and drainage attenuation pond.

Documents

APPLICATIONFORMREDACTED
Application Form
Not archived · Council Link
ARBOR RESPONSE
Consultee Comment
Not archived · Council Link
ARBOR RESPONSE
Consultee Comment
Not archived · Council Link
ARBORICULTURAL IMPACT ASSESSENT - DECEMBER 2024
Amended Details
Not archived · Council Link
ARBORICULTURAL METHOD STATEMENT
Supporting Information
Not archived · Council Link
ARBORICULTURAL SURVEY
Supporting Information
Not archived · Council Link
ATTENUATION POND SECTIONS-A1
Plan
Not archived · Council Link
BIODIVERSITY NET GAIN ASSESSMENT
Supporting Information
Not archived · Council Link
BIODIVERSITY NET GAIN ASSESSMENT
Supporting Information
Not archived · Council Link
BIODIVERSITY_METRIC
Supporting Information
Not archived · Council Link
BNG BASELINE PLAN
Plan
Not archived · Council Link
BNG PLAN 1
Supporting Information
Not archived · Council Link
BNG PLAN 2
Supporting Information
Not archived · Council Link
BNG POST INTERVENTION PLAN
Plan
Not archived · Council Link
CASE OFFICER SITE VISIT NOTES
Case Notes
Not archived · Council Link
CASE OFFICER SITE VISIT NOTES
Case Notes
Not archived · Council Link
CIL FORM
Supporting Information
Not archived · Council Link
DESIGN AND ACCESS STATEMENT
Supporting Information
Not archived · Council Link
DIRTY WATER TANK SPECIFICATION
Supporting Information
Not archived · Council Link
DRAWING 10 SECTION LOCATIONS-A1.PDF
Amended Details
Not archived · Council Link
DRAWING 11 FENCING SECTION-A3.PDF
Amended Details
Not archived · Council Link
DRAWING 4 POUTRY HOUSE ELEVATIONS REV B-A1.PDF
Superseded
Not archived · Council Link
DRAWING 4 POUTRY HOUSE ELEVATIONS REV C-A1.PDF
Amended Details
Not archived · Council Link
DRAWING 5 PLAN VIEW REV A .PDF
Amended Details
Not archived · Council Link
DRAWING 8 EXISTING SITE LEVELS-A0.PDF
Amended Details
Not archived · Council Link
DRAWING 9 SITE SECTIONS-A0.PDF
Amended Details
Not archived · Council Link
ECOLOGIST
Consultee Comment
Not archived · Council Link
ECOLOGIST
Consultee Comment
Not archived · Council Link
ELEVATIONS ANCILLARY BUILDINGS
Plan
Not archived · Council Link
ENVIRONMENTAL AGENCY
Consultee Comment
Not archived · Council Link
ENVIRONMENTAL HEALTH
Consultee Comment
Not archived · Council Link
ENVIRONMENTAL STATEMENT
Supporting Information
Not archived · Council Link
ES APPENDIX 1 LOCATION PLAN
Plan
Not archived · Council Link
ES APPENDIX 2 NOISE IMPACT ASSESSMENT
Supporting Information
Not archived · Council Link
ES APPENDIX 3 ODOUR MANAGEMENT PLAN
Supporting Information
Not archived · Council Link
ES APPENDIX 4 PRELIMINARY ECOLOGICAL APPRAISAL REPORT
Supporting Information
Not archived · Council Link
ES APPENDIX 5 AMMONIA IMPACT ASSESSMENT
Supporting Information
Not archived · Council Link
ES APPENDIX 6 FLOOD RISK AND DRAINAGE ASSESSMENT
Superseded
Not archived · Council Link
Plan
Archived · Council Link
FLOOD RISK AND DRAINAGE ASSESSMENT V2.PDF
Amended Details
Not archived · Council Link
GLINT AND GLARE REPORT - OUSEBURN POULTRY.PDF
Supporting Information
Not archived · Council Link
GREAT OUSEBURN PARISH COUNCIL
Consultee Comment
Not archived · Council Link
HIGHWAYS
Consultee Comment
Not archived · Council Link
INDIRECT IMPACT ASSESSMENT .PDF
Supporting Information
Not archived · Council Link
INSECT MANAGEMENT PLAN
Supporting Information
Not archived · Council Link
LANDSCAPE AND VISUAL APPRAISAL
Supporting Information
Not archived · Council Link
LANDSCAPE OFFICER
Consultee Comment
Not archived · Council Link
LANDSCAPE OFFICER COMMENTS
Consultee Comment
Not archived · Council Link
LETTER TO THE SOS 231024
Correspondence
Not archived · Council Link
Location Plan
Location Plan
Not archived · Council Link
LOCATION PLAN
Superseded
Not archived · Council Link
MOD AIRFIELD SAFEGUARDING
Consultee Comment
Not archived · Council Link
MOD SAFEGUARDING
Consultee Comment
Not archived · Council Link
NATURAL ENGLAND
Consultee Comment
Not archived · Council Link
NYC LEAD LOCAL FLOOD AUTHORITY
Consultee Comment
Not archived · Council Link
NYC PLANNING SERVICES
Consultee Comment
Not archived · Council Link
PASTEDGRAPHIC-1.TIFF
Supporting Information
Not archived · Council Link
PHASE 1 LAND CONTAMINATION ASSESSMENT
Supporting Information
Not archived · Council Link
PLAN VIEW
Plan
Not archived · Council Link
POLICE ARCHITECTURAL LIAISON OFFICER
Consultee Comment
Not archived · Council Link
POUTRY HOUSE ELEVATIONS
Superseded
Not archived · Council Link
PRINCIPAL ECOLOGIST
Consultee Comment
Not archived · Council Link
PRINCIPAL ECOLOGIST
Consultee Comment
Not archived · Council Link
Superseded
Archived · Council Link
Superseded
Archived · Council Link
SITE NOTICE - ADVERTISED 24.10.24
Site Notice
Not archived · Council Link
SOFT LANDSCAPING PROPOSALS .PDF
Superseded
Not archived · Council Link
SOFT LANDSCAPING PROPOSALS REV A .PDF
Amended Details
Not archived · Council Link
SOLAR PANEL SPECIFICATION
Supporting Information
Not archived · Council Link
SUSTAINABILITY STATEMENT
Supporting Information
Not archived · Council Link
TRANSPORT STATEMENT
Supporting Information
Not archived · Council Link
TREE CONSTRAINTS PLAN
Plan
Not archived · Council Link
TREE PROTECTION PLAN
Plan
Not archived · Council Link
WASTE MANAGEMENT STRATEGY
Supporting Information
Not archived · Council Link
YORKSHIRE WATER
Consultee Comment
Not archived · Council Link
YORKSHIRE WILDLIFE TRUST
Consultee Comment
Not archived · Council Link

Take Action

Make your voice heard. Authorities need to hear from people who support new homes.

✉️ Write Email in Support View on Council Portal