← Back to North Yorkshire (Harrogate and Scarborough)

Status

Awaiting decision Change of use
Received
14 Oct 2024
New dwellings
2

Full Proposal

Change of use of redundant school (Use Class F1) to provide 2no. dwellings (Use Class C3).

Documents

APPLICATIONFORMREDACTED
Application Form
Not archived · Council Link
CASE OFFICER SITE VISIT NOTES
Case Notes
Not archived · Council Link
CASE OFFICER SITE VISIT NOTES
Case Notes
Not archived · Council Link
CIL FORM
Supporting Information
Not archived · Council Link
DESIGN, ACCESS AND HERITAGE STATEMENT
Supporting Information
Not archived · Council Link
DRAINAGE STRATEGY
Plan
Not archived · Council Link
ENVIRONMENTAL HEALTH
Consultee Comment
Not archived · Council Link
EXISTING FLOOR PLANS AND ELEVATIONS
Plan
Not archived · Council Link
Amended Details
Archived · Council Link
Plan
Archived · Council Link
EXISTING SITE SECTIONS
Plan
Not archived · Council Link
HIGHWAYS
Consultee Comment
Not archived · Council Link
HIGHWAYS AUTHORITY
Consultee Comment
Not archived · Council Link
HOUSING DEPARTMENT
Consultee Comment
Not archived · Council Link
JAC
Consultee Comment
Not archived · Council Link
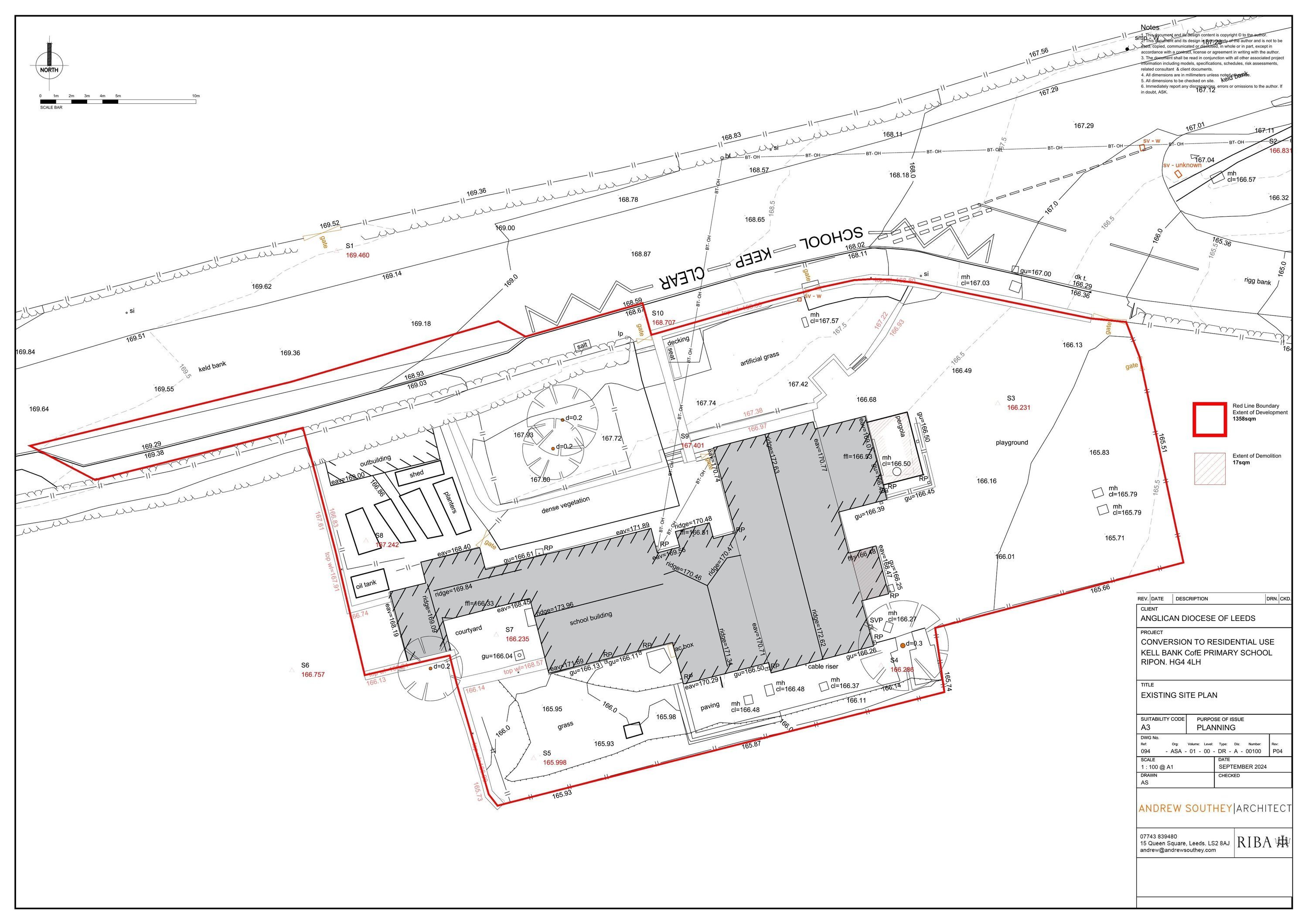
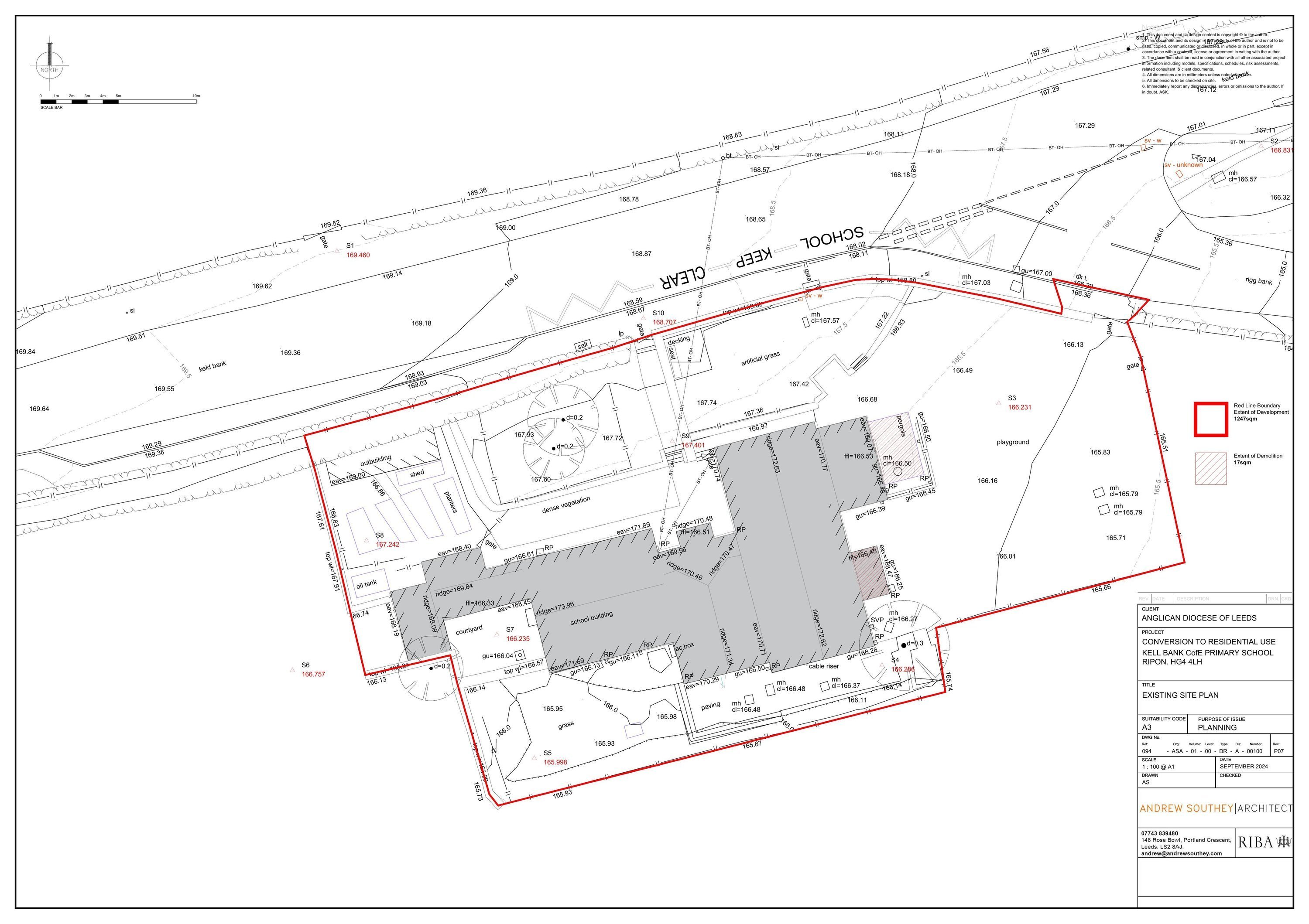
LOCATION PLAN
Amended Details
Not archived · Council Link
LOCATIONPLAN
Location Plan
Not archived · Council Link
MARKETING REPORT
Amended Details
Not archived · Council Link
MOD
Consultee Comment
Not archived · Council Link
PARISH COUNCIL
Consultee Comment
Not archived · Council Link
PLANNING STATEMENT
Supporting Information
Not archived · Council Link
PRELIMINARY ECOLOGICAL APPRAISAL AND BAT SURVEYS - SE
Supporting Information
Not archived · Council Link
PRIVATE HOUSING STANDARDS
Consultee Comment
Not archived · Council Link
PRIVATE HOUSING STANDARDS
Consultee Comment
Not archived · Council Link
PROPOSED ELEVATIONS
Plan
Not archived · Council Link
PROPOSED GROUND FLOOR PLANS
Plan
Not archived · Council Link
Plan
Archived · Council Link
Amended Details
Archived · Council Link
SITE NOTICE
Site Notice
Not archived · Council Link
SITE NOTICE
Site Notice
Not archived · Council Link
STORAGE CHECK
Supporting Information
Not archived · Council Link
UPDAGT - 3 UPDATE AGT/APP
Case Notes
Not archived · Council Link

Take Action

Make your voice heard. Authorities need to hear from people who support new homes.

✉️ Write Email in Support View on Council Portal