← Back to Hart District Council

Status

Refuse New housing
Received
04 Dec 2024
New dwellings
1

Planning Inspectorate

Appeal: Decided Dismissed
Ref6000531
TypePlanning Appeal
Decision19 Dec 2025

Full Proposal

Erection of a self-build replacement dwelling following demolition of the existing dwelling and garage.

Documents

. JOINT WASTE CLIENT TEAM
Consultee Comment
Not archived · Council Link
2024053 V1.0 ARB REPORT
Tree Survey / Arboricultural Assessment
Not archived · Council Link
2208_2209(PL)50-CROWN ROOF DETAIL-REV_P1
Plans
Not archived · Council Link
25-08-13 STATEMENT OF CASE-FINAL.
Appellant`s Case
Not archived · Council Link
25-08-14 APPEALFORM
Appeal Form
Not archived · Council Link
25-09-16 COMMENTS-FINAL.
Appeal Correspondence
Not archived · Council Link
55 57_STREETSCENE_FROM EAST
Drawing
Not archived · Council Link
55 57_STREETSCENE_FROM WEST
Drawing
Not archived · Council Link
57 DINORBEN CLOSE, FLEET, APPEAL DECISION - 6000531
Appeal Decision
Not archived · Council Link
APPEAL STATEMENT 6000531, 57 DINORBEN CLOSE, FLEET, GU52 7SJ, UNITED KINGDOM, LP
Council`s Case
Not archived · Council Link
APPENDIX 1 6000531, 57 DINORBEN CLOSE, FLEET, GU52 7SJ, UNITED KINGDOM, LPA REF
Council`s Case
Not archived · Council Link
APPENDIX 2 6000531, 57 DINORBEN CLOSE, FLEET, GU52 7SJ, UNITED KINGDOM, LPA REF
Council`s Case
Not archived · Council Link
APPENDIX 3 CONDITIONS 6000531, 57 DINORBEN CLOSE, FLEET, GU52 7SJ, UNITED KINGDO
Council`s Case
Not archived · Council Link
APPLICATIONFORMREDACTED
Application Form
Not archived · Council Link
BERS - 57 DINORBEN CLOSE GU52 7SJ
Bat Survey
Not archived · Council Link
Correspondence
Correspondence
Not archived · Council Link
CROWN ROOF DETAIL
Detail Drawing
Not archived · Council Link
Decision
Decision
Not archived · Council Link
DESIGN AND ACCESS STATEMENT
Design and Access Statement
Not archived · Council Link
DRAINAGE STRATEGY
Report
Not archived · Council Link
E25-02-13 FROM HDC PLANNINGOFFICER-INTENTIONTOGRANT
Appellant`s Case
Not archived · Council Link
ECOLOGY OFFICER
Consultee Comment
Not archived · Council Link
EXISTING FIRSTFLOORPLAN-REVP1
Plans
Not archived · Council Link
EXISTING GROUNDFLOORPLAN-REVP1
Plans
Not archived · Council Link
EXISTING NORTH AND EAST ELEVATIONS-REVP1
Plans
Not archived · Council Link
EXISTING ROOFPLAN-REVP1
Plans
Not archived · Council Link
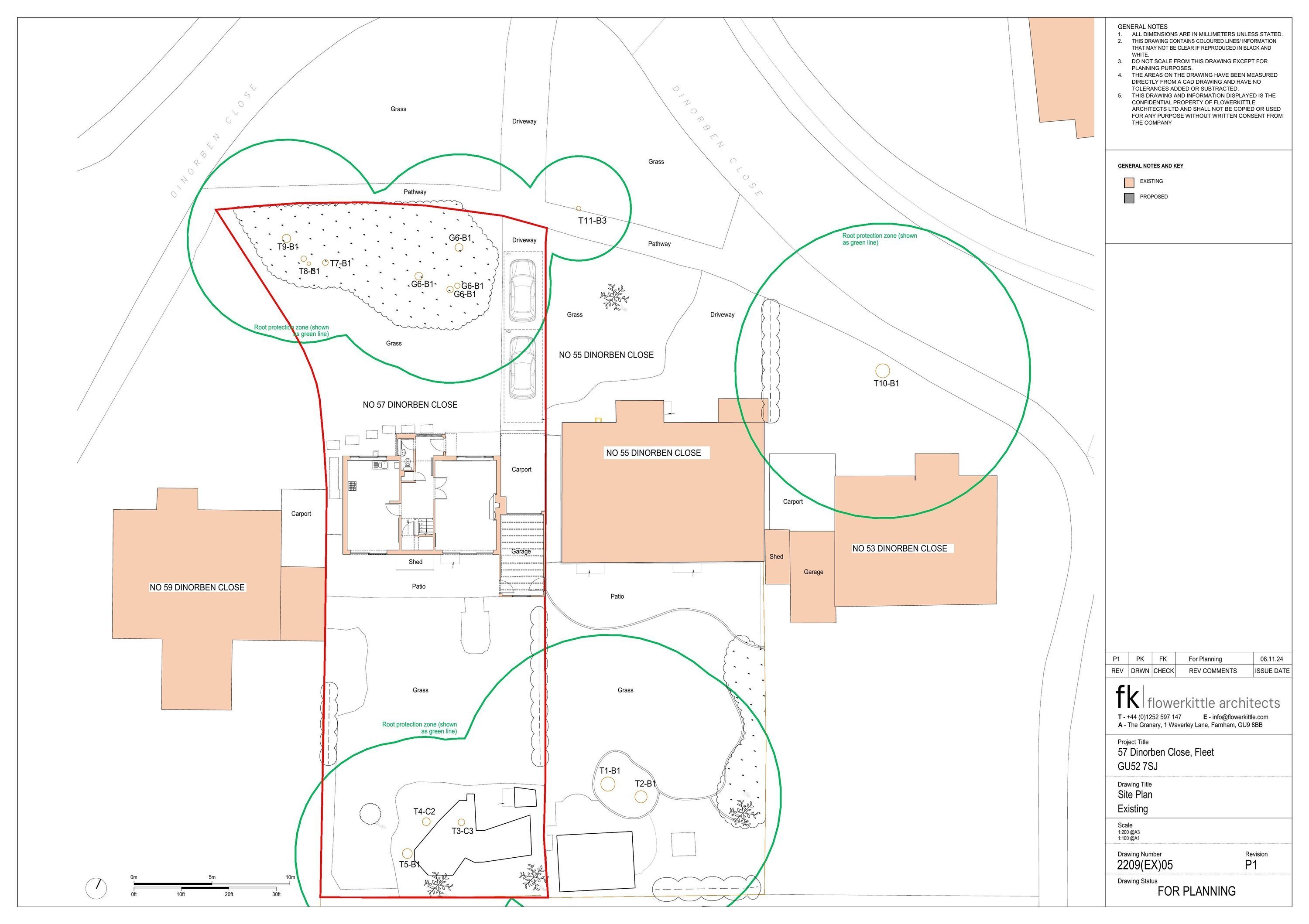
Block Plan
Archived · Council Link
EXISTING SOUTH AND WEST ELEVATIONS-REVP1
Plans
Not archived · Council Link
HAMPSHIRE COUNTY COUNCIL (HIGHWAYS)
Consultee Comment
Not archived · Council Link
LOCATIONPLAN
Location Plan
Not archived · Council Link
MR JOHN KELLY-OBJECTS(FULL)
Objection Comment
Not archived · Council Link
NEIGHBOUR LETTER
Correspondence
Not archived · Council Link
PARKING STATEMENT NO57
Supporting Statement / Letter
Not archived · Council Link
PENNY PROUDLOCK - OBJECTS
Objection Comment
Not archived · Council Link
PRA57DINORBENCLOSEFINAL
Bat Survey
Not archived · Council Link
PROPOSED FIRSTFLOORPLAN-REVP1
Plans
Not archived · Council Link
PROPOSED GROUNDFLOORPLAN-REVP1
Plans
Not archived · Council Link
PROPOSED NORTH AND EAST ELEVATIONS-REVP1
Plans
Not archived · Council Link
PROPOSED ROOFPLAN-REVP1
Plans
Not archived · Council Link
Block Plan
Archived · Council Link
PROPOSED SOUTH AND WEST ELEVATIONS-REVP1
Plans
Not archived · Council Link
Report
Report
Not archived · Council Link
RESPONSE TO CROWN ROOF COMMENTS - EMAIL
Correspondence
Not archived · Council Link
RESPONSE TO CROWN ROOF COMMENTS - PHOTO 1
Correspondence
Not archived · Council Link
RESPONSE TO CROWN ROOF COMMENTS - PHOTO 2
Correspondence
Not archived · Council Link
SECTIONS
Plans
Not archived · Council Link
START LETTER
Appeal Correspondence
Not archived · Council Link
STREETSCENE(55) AND (57)-REVP1
Plans
Not archived · Council Link
UTILITIES ASSESSMENT
Report
Not archived · Council Link
WEBFORM SUBMISSION FROM: FLOODING IMPACT FORM
Supporting Statement / Letter
Not archived · Council Link
WEBFORM SUBMISSION FROM: FLOODING IMPACT FORM - DRAINAGE PLAN
Supporting Statement / Letter
Not archived · Council Link
WEBFORM SUBMISSION FROM: FLOODING IMPACT FORM - DRAINAGE STRATEGY
Supporting Statement / Letter
Not archived · Council Link

Take Action

Make your voice heard. Authorities need to hear from people who support new homes.

✉️ Write Email in Support View on Council Portal