← Back to Hart District Council

Status

Grant Commercial
Received
20 Dec 2024
New dwellings
0

Full Proposal

Planning application for external alterations including: -North elevation - Installation of black-painted metal staircase; removal of window grilles at ground level; replacement of existing window at first floor with a fire escape door; -South elevation - Installation of black-painted metal staircase; replacement of existing window at first floor with a fire escape door, replacement of an existing window at ground floor level with a fire escape door and relocation of an existing metal canopy -West Elevation - Removal of existing metal staircase and fire escape door; installation of a black painted metal Juliette balcony and vertical sliding sash window to match existing; insertion of new timber framed window at ground floor (reused from the south elevation); -Removal of existing paving slab steps and insertion of a retaining wall to the south of Junior House. -Removal of an existing canopy over external play area to the north of Junior House (Amended description of development)

Documents

. ASSISTANT CONSERVATION OFFICER
Consultee Comment
Not archived · Council Link
. ASSISTANT CONSERVATION OFFICER
Consultee Comment
Not archived · Council Link
. ASSISTANT CONSERVATION OFFICER
Consultee Comment
Not archived · Council Link
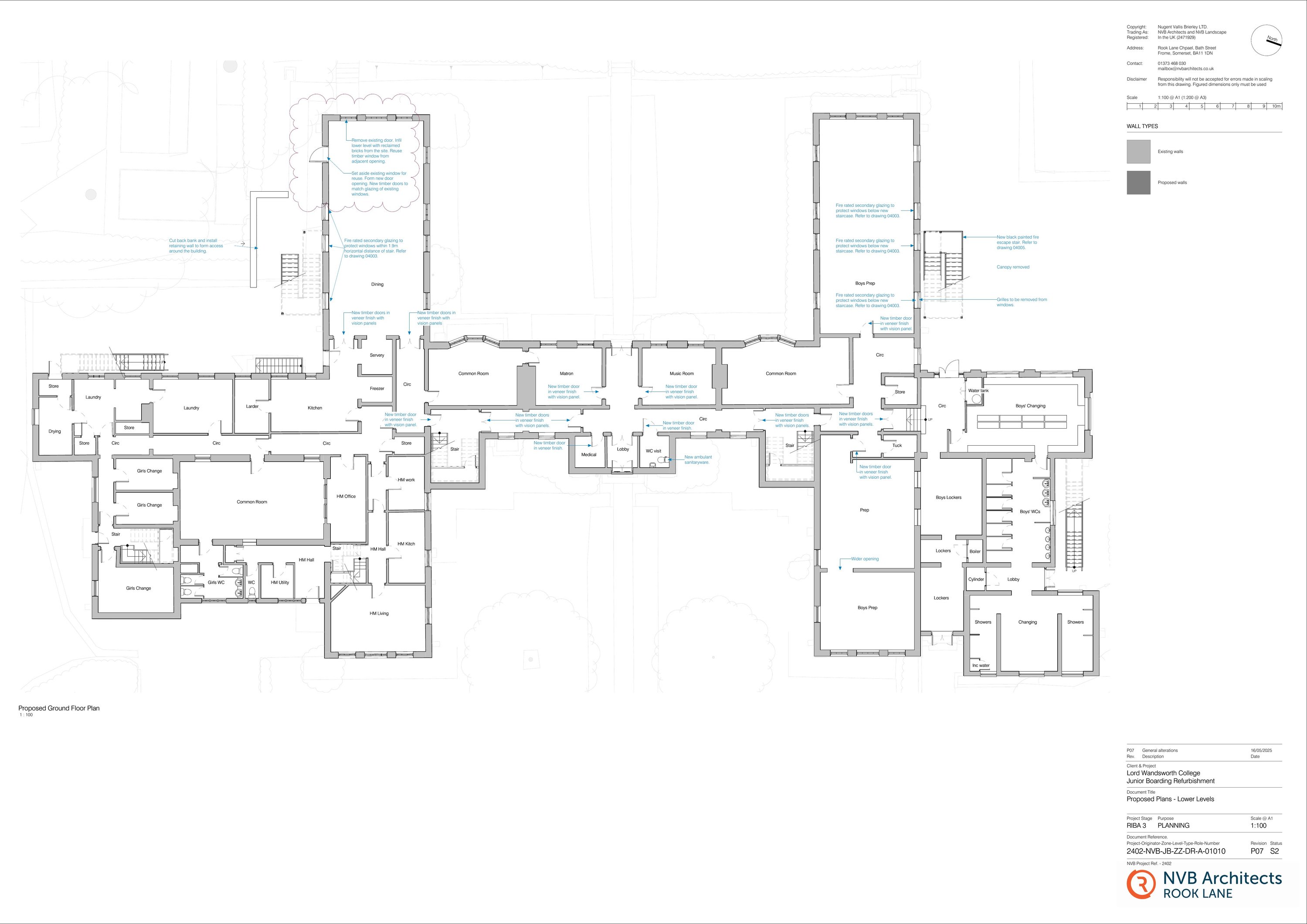
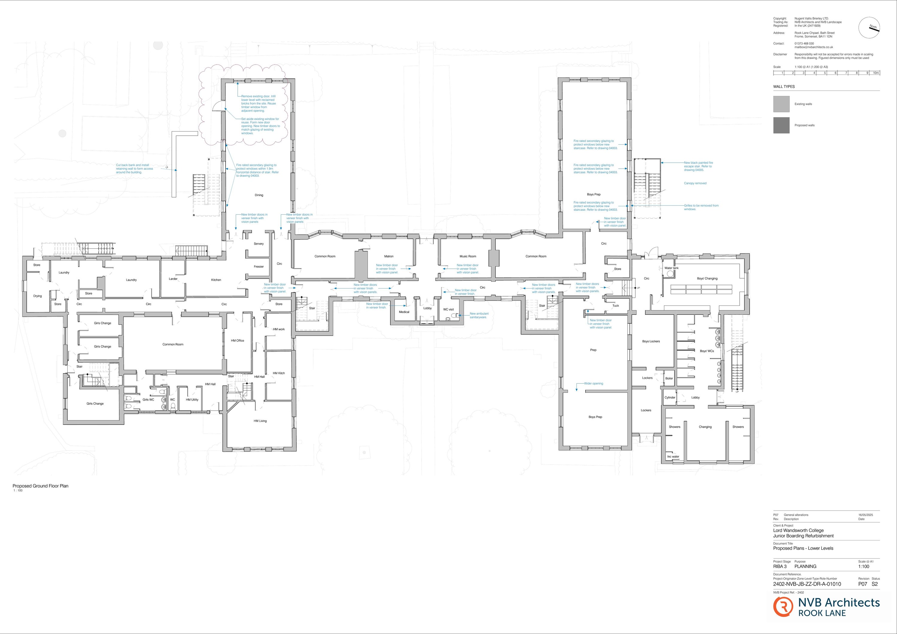
05.06.25 2402-NVB-JB-ZZ-DR-A-01005-S2-P04-DEMOLITION PLANS - LOWER LEVELS
Drawing
Not archived · Council Link
05.06.25 2402-NVB-JB-ZZ-DR-A-03005-S2-P04-ELEVATIONS - DEMOLITIONS
Drawing
Not archived · Council Link
05.06.25 2402-NVB-JB-ZZ-DR-A-44005-S2-P03-EXTERNAL STAIR DETAILS - STAIR B
Drawing
Not archived · Council Link
11.06.25 REVISED 2402-NVB-JB-ZZ-DR-A-00011-S2-P03-SITE PROPOSED PLAN
Drawing
Not archived · Council Link
11.06.25 REVISED 2402-NVB-JB-ZZ-DR-A-04004-S2-P04-EXTERNAL STAIR DETAILS - STAIR
Drawing
Not archived · Council Link
1262 - HERITAGE REPORT - REV 3_COMPRESSED
Report
Not archived · Council Link
1262 JR 12122024 PLANNING STATEMENT FV
Report
Not archived · Council Link
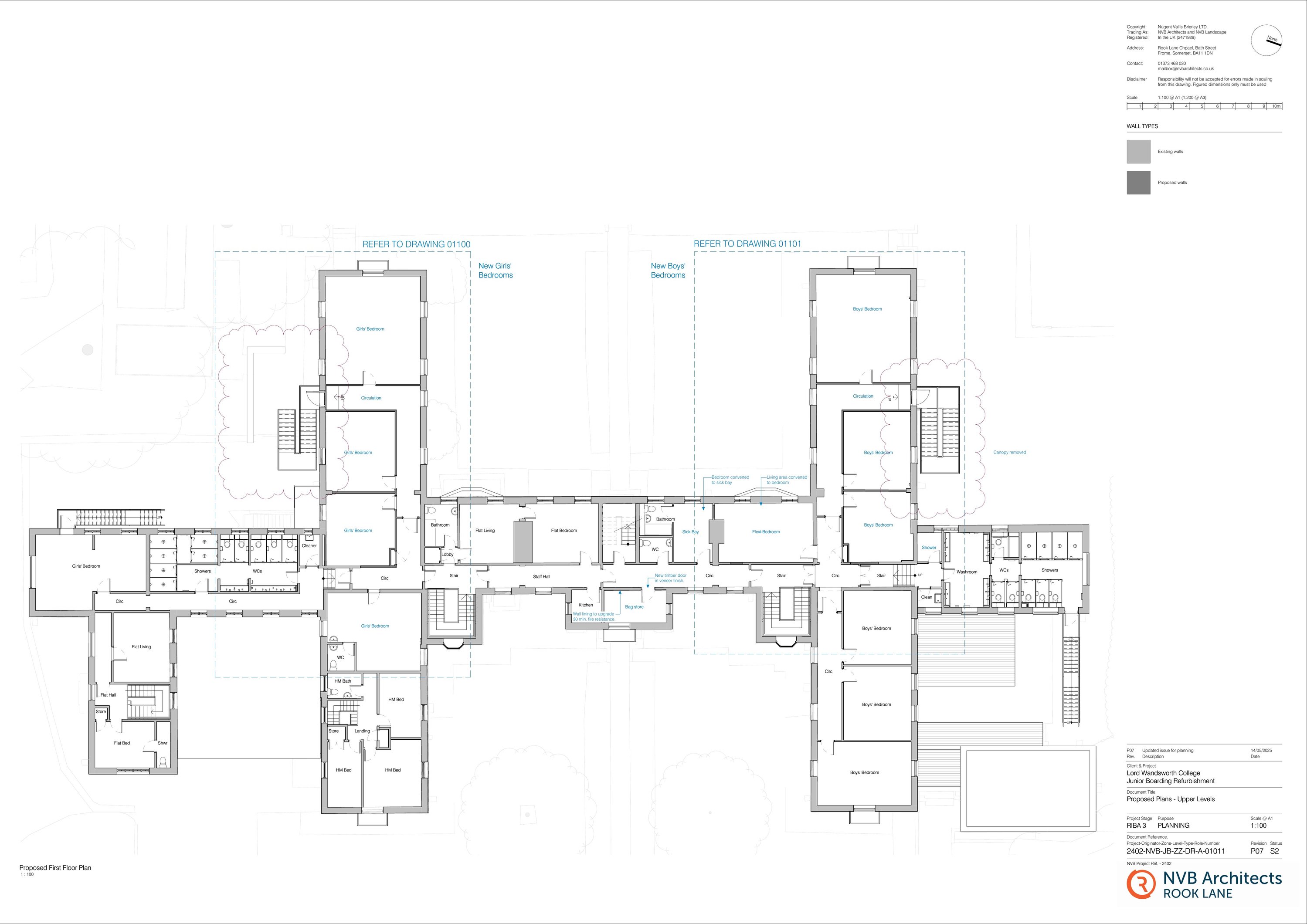
16.05.25 REVISED 2402-NVB-JB-01-DR-A-01100-S2-P06-DETAILED PLANS - GIRLS' WING
Drawing
Not archived · Council Link
16.05.25 REVISED 2402-NVB-JB-01-DR-A-01101-S2-P06-DETAILED PLANS - BOYS WING
Drawing
Not archived · Council Link
16.05.25 REVISED 2402-NVB-JB-ZZ-DR-A-03010-S2-P06-ELEVATIONS
Drawing
Not archived · Council Link
18.02.25 STATEMENT OF NEEDS AND BENEFITS
---------------
Not archived · Council Link
2402-NVB-JB-00-DR-A-04002-S2-P01-GROUND FLOOR SASH WINDOW DETAILS
Plans
Not archived · Council Link
2402-NVB-JB-00-DR-A-04006-S2-P01-FLAT ROOF CANOPY DETAILS
Plans
Not archived · Council Link
2402-NVB-JB-00-DR-A-44006-S2-T02-FLAT ROOF CANOPY DETAILS18
Drawing
Not archived · Council Link
2402-NVB-JB-01-DR-A-04000-S2-P02-TYPICAL EXTERNAL DOOR DETAILS
Plans
Not archived · Council Link
2402-NVB-JB-01-DR-A-04001-S2-P02-FIRST FLOOR SASH WINDOW AND JULIET BALCONY DETA
Plans
Not archived · Council Link
2402-NVB-JB-RF-DR-A-01002-S2-P02-EXISTING PLANS - ROOF
Plans
Not archived · Council Link
2402-NVB-JB-XX-RP-A-09010-P02-S2-DESIGN AND ACCESS STATEMENT-COMPRESSED
Report
Not archived · Council Link
2402-NVB-JB-ZZ-DR-A-00010-S2-P01-SITE EXISTING PLAN
Plans
Not archived · Council Link
2402-NVB-JB-ZZ-DR-A-00011-S2-P01-SITE PROPOSED PLAN
Plans
Not archived · Council Link
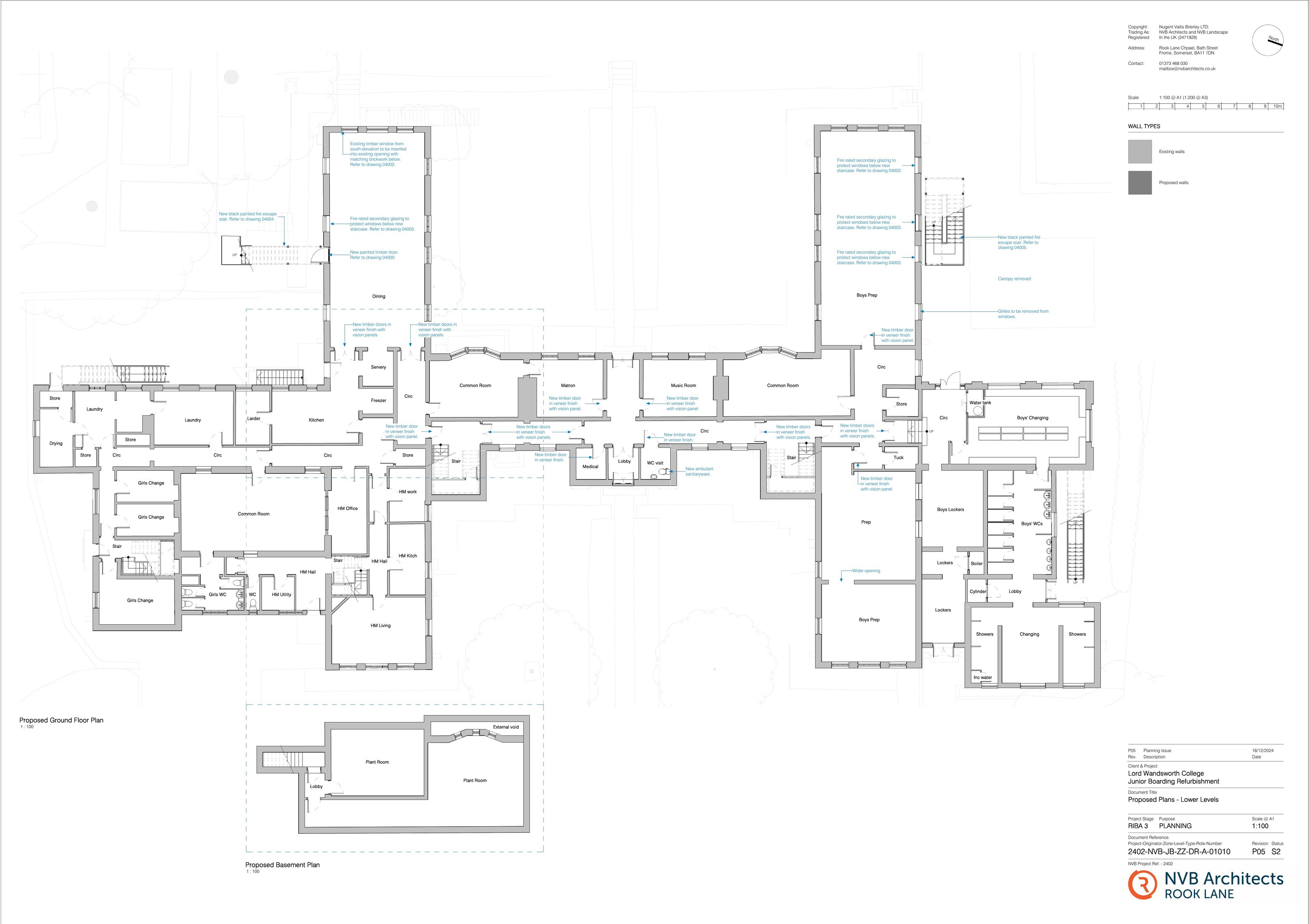
2402-NVB-JB-ZZ-DR-A-01000-S2-P03-EXISTING PLANS - LOWER LEVELS
Plans
Not archived · Council Link
2402-NVB-JB-ZZ-DR-A-01001-S2-P02-EXISTING PLANS - UPPER LEVELS
Plans
Not archived · Council Link
2402-NVB-JB-ZZ-DR-A-01005-S2-P03-DEMOLITION PLANS - LOWER LEVELS
Plans
Not archived · Council Link
2402-NVB-JB-ZZ-DR-A-01006-S2-P04-DEMOLITION PLANS - UPPER LEVELS
Plans
Not archived · Council Link
2402-NVB-JB-ZZ-DR-A-03000-S2-P03-ELEVATIONS - EXISTING
Plans
Not archived · Council Link
2402-NVB-JB-ZZ-DR-A-03005-S2-P03-ELEVATIONS - DEMOLITIONS
Plans
Not archived · Council Link
2402-NVB-JB-ZZ-DR-A-04003-S2-P02-TYPICAL FIRE-RATED SECONDARY GLAZING DETAILS
Plans
Not archived · Council Link
2402-NVB-JB-ZZ-DR-A-04004-S2-P02-EXTERNAL STAIR DETAILS - STAIR A
Plans
Not archived · Council Link
2402-NVB-JB-ZZ-DR-A-04005-S2-P02-EXTERNAL STAIR DETAILS - STAIR B
Plans
Not archived · Council Link
29.05.25 METHOD STATEMENT SASH WINDOWS
---------------
Not archived · Council Link
APPLICATIONFORMREDACTED
Application Form
Not archived · Council Link
Decision
Decision
Not archived · Council Link
HCC COUNTY RIGHTS OF WAY GROUP
Consultee Comment
Not archived · Council Link
NEIGHBOUR LETTER
Correspondence
Not archived · Council Link
NO LONGER FOR CONSIDERATION PG079-JBH-00-RCP REVC
Plans
Not archived · Council Link
Report
Report
Not archived · Council Link
SUPERSEDED 05.06.25 2402-NVB-JB-ZZ-DR-A-00011-S2-P02-SITE PROPOSED PLAN
Superseded Drawing
Not archived · Council Link
SUPERSEDED 05.06.25 2402-NVB-JB-ZZ-DR-A-44004-S2-P03-EXTERNAL STAIR DETAILS - ST
Superseded Drawing
Not archived · Council Link
SUPERSEDED 07.02.25 DETAILED PLAN BOYS WING 2402-NVB-JB-01-DR-A-01101-S2-P04
Superseded Drawing
Not archived · Council Link
SUPERSEDED 07.02.25 DETAILED PLAN GIRLS WING 2402-NVB-JB-01-DR-A-01100-S2-P04
Superseded Drawing
Not archived · Council Link
SUPERSEDED 15.05.25 REVISED 2402-NVB-JB-01-DR-A-0110-S2-P05 DETAILED PLANS BOYS
Superseded Drawing
Not archived · Council Link
SUPERSEDED 15.05.25 REVISED 2402-NVB-JB-01-DR-A-01100-S2-P05-DETAILED PLANS - GI
Superseded Drawing
Not archived · Council Link
SUPERSEDED 15.05.25 REVISED 2402-NVB-JB-ZZ-DR-A-03010-S2-P05-ELEVATIONS - PROPOS
Superseded Drawing
Not archived · Council Link
SUPERSEDED 2402-NVB-JB-01-DR-A-01100-S2-P03-DETAILED PLANS - GIRLS' WING
Superseded Drawing
Not archived · Council Link
SUPERSEDED 2402-NVB-JB-01-DR-A-01101-S2-P03-DETAILED PLANS - BOYS' WING
Superseded Drawing
Not archived · Council Link
SUPERSEDED 2402-NVB-JB-ZZ-DR-A-03010-S2-P04-ELEVATIONS - PROPOSED
Superseded Drawing
Not archived · Council Link
VALIDATION EMAIL 1
Correspondence
Not archived · Council Link
VALIDATION EMAIL 2
Correspondence
Not archived · Council Link

Take Action

Make your voice heard. Authorities need to hear from people who support new homes.

✉️ Write Email in Support View on Council Portal