← Back to Hart District Council

Status

Registered New housing
Received
23 Oct 2025
New dwellings
3

Full Proposal

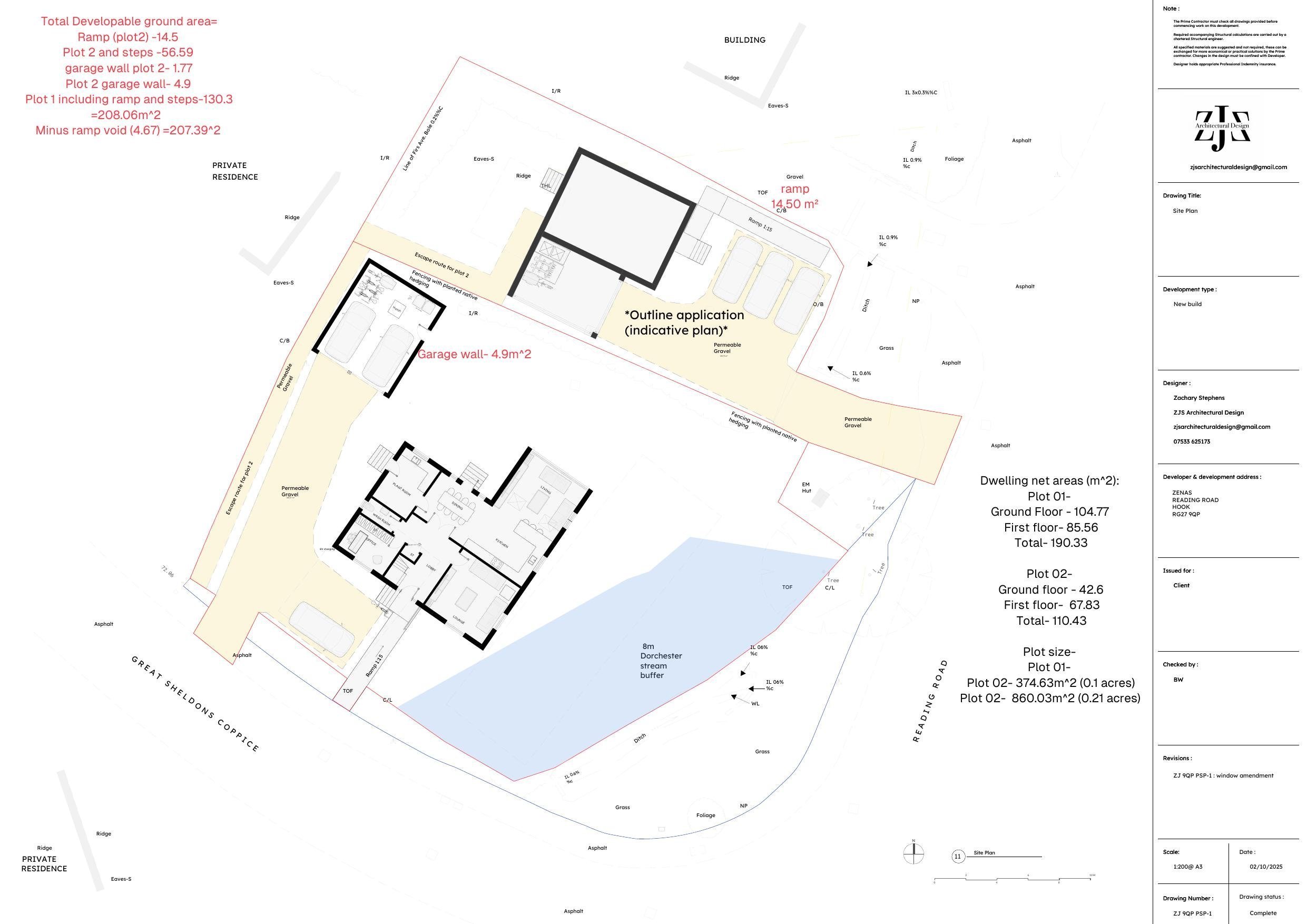
Hybrid planning application for part full and part outline planning permission for the erection of two three-bedroom custom self-build dwellings: Full planning permission for the erection of one three-bedroom dwelling and a detached garage with store above following demolition of the three existing buildings with associated works to include hardstanding, cycle parking, fencing, ramp and new access Outline planning permission for the erection of one three-bedroom dwelling and infilling of the redundant sewage pumping station tanks using existing access with principle and scale to be considered

Documents

. HOOK PARISH COUNCIL
Consultee Comment
Not archived · Council Link
21820310
Correspondence
Not archived · Council Link
APPLICATIONFORMREDACTED
Application Form
Not archived · Council Link
BLOCKED DOORS 1 OF 2
Correspondence
Not archived · Council Link
BLOCKED DOORS 2 OF 2
Correspondence
Not archived · Council Link
BLOCKED DOORWAYS
Correspondence
Not archived · Council Link
ENVIRONMENT AGENCY
Consultee Comment
Not archived · Council Link
FALLBACK POSITION JUSTIFICATION
Report
Not archived · Council Link
FLOOD RISK ASSESSMENT - MARCH 2022
Flood Risk Assessment
Not archived · Council Link
FLOOD RISK ASSESSMENT REPORT 20 OCT 25
Report
Not archived · Council Link
HAMPSHIRE HIGHWAYS
Consultee Comment
Not archived · Council Link
HART DC BIODIVERSITY
Consultee Comment
Not archived · Council Link
INCLUDING CLIMATE MITIGATION AND ECONOMIC STATEMENT AND SANG MITIGATION
Report
Not archived · Council Link
LETTER TO LPA RE ZENAS FLOOD RISK 18 DEC 25 A
Correspondence
Not archived · Council Link
MR ANTON SCHEMBRI-SUPPORTS(FULL)
Support Comment
Not archived · Council Link
MR BARRY HOLTON-SUPPORTS(FULL)
Support Comment
Not archived · Council Link
MR JOHN CHAMPION-SUPPORTS(FULL)
Support Comment
Not archived · Council Link
MR SCOTT BLOFELD-SUPPORTS(FULL)
Support Comment
Not archived · Council Link
MR TIM SLATER-SUPPORTS(FULL)
Support Comment
Not archived · Council Link
NATURAL ENGLAND
Consultee Comment
Not archived · Council Link
NATURAL ENGLAND ANNEX A
Consultee Comment
Not archived · Council Link
NEIGHBOUR LETTER
Correspondence
Not archived · Council Link
PEA_ZENAS_2025-1903926
Report
Not archived · Council Link
SANG - APPLICATION FORM
Correspondence
Not archived · Council Link
SANG - CERTIFICATE 2025
Correspondence
Not archived · Council Link
THAMES WATER
Consultee Comment
Not archived · Council Link
THUMBNAIL_IMAGE001
Photo
Not archived · Council Link
THUMBNAIL_IMAGE002
Photo
Not archived · Council Link
VALIDATION EMAIL 1
Correspondence
Not archived · Council Link
VALIDATION EMAIL 2
Correspondence
Not archived · Council Link
VALIDATION EMAIL 3
Correspondence
Not archived · Council Link
VALIDATION EMAIL 4
Correspondence
Not archived · Council Link
ZJ 9QP EB1 EXISTING BUILDING
Plans
Not archived · Council Link
ZJ 9QP EB2 EXISTING BUILDING
Plans
Not archived · Council Link
ZJ 9QP EB3 EXISTING BUILDING
Plans
Not archived · Council Link
ZJ 9QP ELP LOCATION PLAN
Location Plan
Not archived · Council Link
ZJ 9QP ESL EXISTING SITE LEVELS
Plans
Not archived · Council Link
Block Plan
Archived · Council Link
ZJ 9QP FV FLOOD VOID JUSTIFICATION
Plans
Not archived · Council Link
ZJ 9QP PE PROPOSED ELEVATION
Plans
Not archived · Council Link
ZJ 9QP PG -1 PROPOSED GARAGE
Plans
Not archived · Council Link
ZJ 9QP PP-1 PROPOSED PLAN
Plans
Not archived · Council Link
ZJ 9QP PRP-1 PROPOSED ROOF PLAN
Plans
Not archived · Council Link
ZJ 9QP PSL PROPOSED SITE LEVEL PLAN
Plans
Not archived · Council Link
ZJ 9QP PSL PZJ 9QP SEC SECTIONSROPOSED SITE LEVEL PLAN
Plans
Not archived · Council Link
ZJ 9QP SS PROPOSED STREET SCENE
Plans
Not archived · Council Link

Take Action

Make your voice heard. Authorities need to hear from people who support new homes.

✉️ Write Email in Support View on Council Portal