← Back to Hart District Council

Status

Registered New housing
Received
11 Dec 2025
New dwellings
1

Full Proposal

Erection of a new dwellinghouse, detached garage, creation of new access from the public highway and associated landscaping

Documents

. DRAINAGE OFFICER
Consultee Comment
Not archived · Council Link
. EXECUTIVE CLERK HARTLEY WINTNEY PARISH COUNCIL
Consultee Comment
Not archived · Council Link
. JOINT WASTE CLIENT TEAM
Consultee Comment
Not archived · Council Link
APPENDIX 3 TREE CONSTRAINTS PLAN RMT1178 TCP
Tree Survey / Arboricultural Assessment
Not archived · Council Link
APPENDIX 4TREE PROTECTION PLAN RMT1178 TPP
Tree Survey / Arboricultural Assessment
Not archived · Council Link
APPLICATIONFORMREDACTED
Application Form
Not archived · Council Link
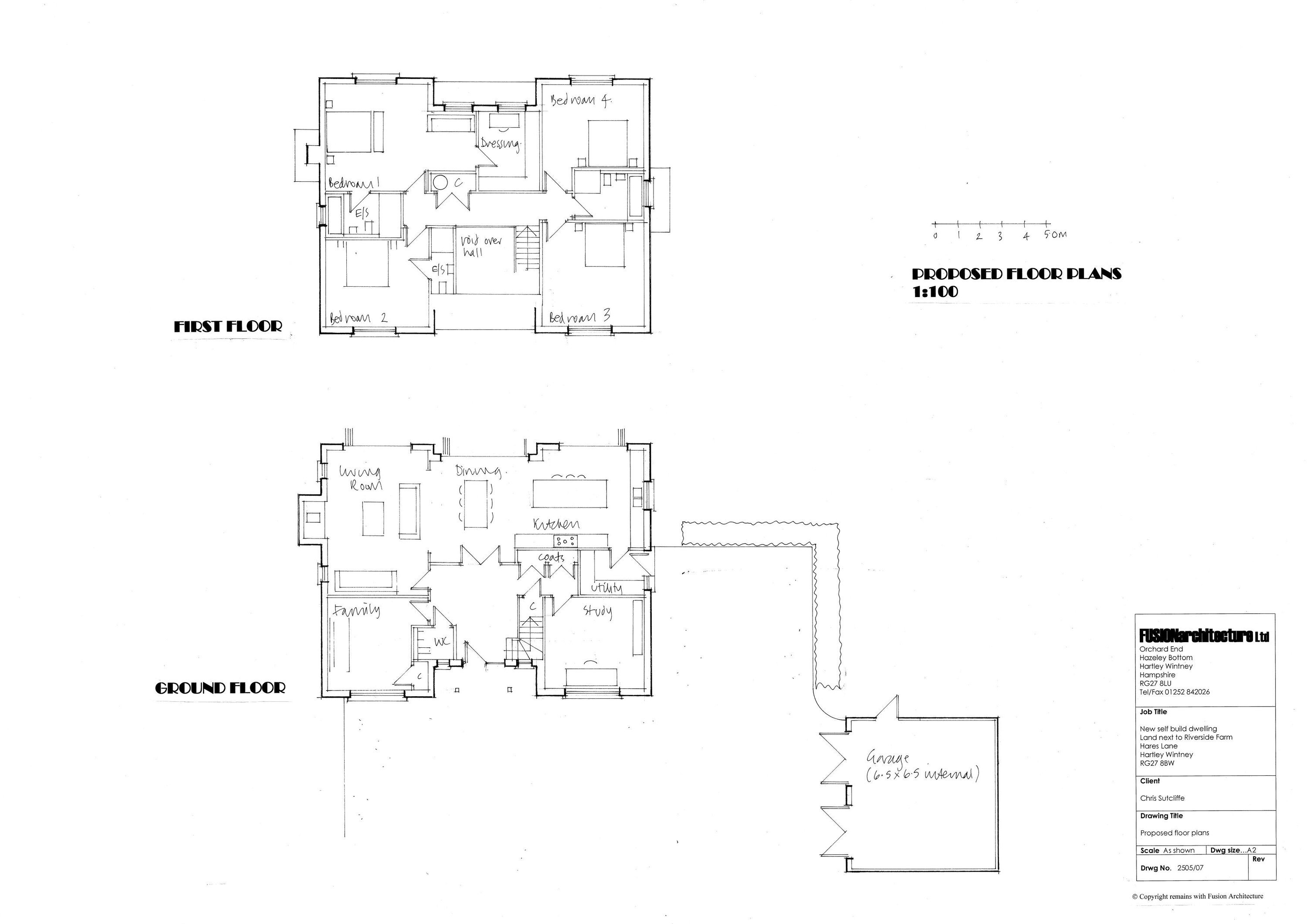
BLOCK PLAN
Block Plan
Not archived · Council Link
ECOLOGICAL IMPACT ASSESSMENT FINAL 101225
Report
Not archived · Council Link
HART DC BIODIVERSITY
Consultee Comment
Not archived · Council Link
HCC HIGHWAYS COMMENTS
Consultee Comment
Not archived · Council Link
LOCATION PLAN
Location Plan
Not archived · Council Link
MISS JOANNE MASSEY-NEUTRAL(FULL)
General Comment
Not archived · Council Link
MR CHRIS CAIRNEY-NEUTRAL(FULL)
General Comment
Not archived · Council Link
MR DAN BROOM-SUPPORTS(FULL)
Support Comment
Not archived · Council Link
MR KIERAN TRILL-SUPPORTS(FULL)
Support Comment
Not archived · Council Link
MRS CLAIR CHENEY-NEUTRAL(FULL)
General Comment
Not archived · Council Link
MRS JACQUELINE VOWLES-SUPPORTS(FULL)
Support Comment
Not archived · Council Link
MRS JOSEPHINE SHIPMAN-OBJECTS(FULL)
Objection Comment
Not archived · Council Link
MS JACQUIE PERRYMAN-NEUTRAL(FULL)
General Comment
Not archived · Council Link
NATURAL ENGLAND
Consultee Comment
Not archived · Council Link
NEIGHBOUR LETTER
Correspondence
Not archived · Council Link
PLANNING STATEMENT
Report
Not archived · Council Link
PROPOSED ELEVATIONS
Plans
Not archived · Council Link
Plans
Archived · Council Link
RMT1178 - LAND AT HARES LANE HARTLEY WINTNEY HOOK HAMPSHIRE - TREE REPORT
Tree Survey / Arboricultural Assessment
Not archived · Council Link
RMT1178 - LAND AT HARES LANE HARTLEY WINTNEY HOOK HAMPSHIRE - TREE SURVEY
Tree Survey / Arboricultural Assessment
Not archived · Council Link
TREE OFFICER
Consultee Comment
Not archived · Council Link

Take Action

Make your voice heard. Authorities need to hear from people who support new homes.

✉️ Write Email in Support View on Council Portal