← Back to Hastings Borough Council
Status
Registered
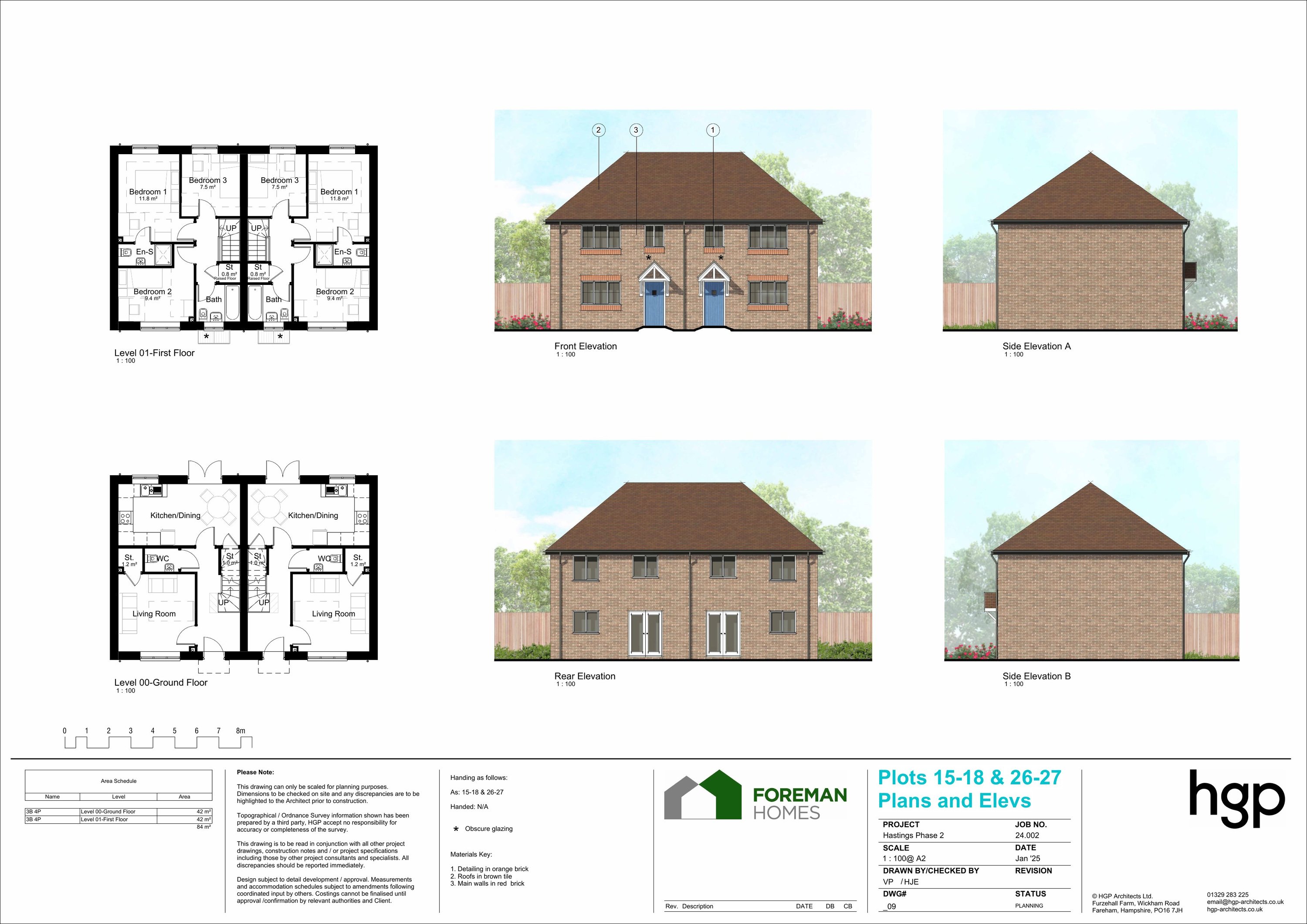
New housing
Full Proposal
Detailed planning application for the erection of 31 dwellings with associated infrastructure, access and landscaping.
Documents
ACTIVE TRAVEL
Consultee Comment
AFFORDABLE HOUSING STATEMENT
Other
AIR QUALITY EMISSION STATEMENT
Other
Application Form
Application Form
ARBORICULTURAL IMPACT ASSESSMENT
Other
BOROUGH ARBORICULTURIST
Consultee Comment
CONSERVATION OFFICER COMMENTS (CONS OFFICER)
Consultee Comment
COUNTY ARCHAEOLOGIST
Consultee Comment
D2335 FRA 1.0 APPENFLOOD RISK ASSESSMENET - APPENDICES (6 OF 8)
Other
DESIGN & ACCESS STATEMENT
Other
DRAFT S106 HEADS OF TERMS
Other
DRAINAGE LAYOUT (4 OF 4)
Drawing
ENVIRONMENT AGENCY
Consultee Comment
ENVIRONMENTAL HEALTH
Consultee Comment
ESCC COUNTY 106 CONTRIBUTIONS
Consultee Comment
ESCC PUBLIC HEALTH
Consultee Comment
ESCC SUDS
Consultee Comment
ESTATES
Consultee Comment
EV CHARGING STRATEGY PLAN
Drawing
EXISTING BLOCK PLAN
Drawing
EXTERNAL WORKS (4 OF 4)
Drawing
FIRE BRIGADE
Consultee Comment
FIRE STRATEGY PLAN
Drawing
FLOOD RISK ASSESSMENET - APPENDICES (2 OF 8)
Other
FLOOD RISK ASSESSMENET - APPENDICES (3 OF 8)
Other
FLOOD RISK ASSESSMENET - APPENDICES (4 OF 8)
Other
FLOOD RISK ASSESSMENET - APPENDICES (5 OF 8)
Other
FLOOD RISK ASSESSMENET - APPENDICES (6 OF 8)
Other
FLOOD RISK ASSESSMENET - APPENDICES (7 OF 8)
Other
FLOOD RISK ASSESSMENET - APPENDICES (8 OF 8)
Other
FLOOD RISK ASSESSMENT
Other
FLOOD RISK ASSESSMENT - APPENDICES (1 OF 8)
Other
FLOOD RISK ASSESSMENT DRAWINGS
Other
GEO-ENVIRONMENTAL SITE ASSESSMENT
Other
HA ALLOCATION PLAN
Drawing
HIGHWAYS
Consultee Comment
INDEPENDANT WATER NETWORKS
Consultee Comment
NATIONAL HIGHWAYS
Consultee Comment
NATURAL ENGLAND
Consultee Comment
NATURAL ENGLAND - ANNEX A STANDING ADVICE
Consultee Comment
NATURE SPACE
Consultee Comment
PARKING STRATEGY PLAN
Drawing
PARKS AND OPEN SPACES
Consultee Comment
PARKS AND OPEN SPACES
Consultee Comment
PROPOSED BOUNDARY TREATMENT PLAN
Drawing
PROPOSED LEVELS LAYOUT (4 OF 4)
Drawing
PROPOSED LEVELS LAYOUT (4 OF 4)
Drawing
PROPOSED STREET SCENES
Drawing
REFUSE STRATEGY PLAN
Drawing
RIGHTS OF WAY TEAM
Consultee Comment
ROTHER DISTRICT COUNCIL
Consultee
SOUTHERN WATER LETTER
Consultee Comment
SOUTHERN WATER PLAN
Consultee Comment
STATEMENT OF COMMUNITY INVOLVEMENT
Other
TECHNICAL NOTE - BNG SUMMARY
Other
TRANSPORT STATEMENT
Other
WASTE SERVICES
Consultee Comment
WIDE SINGLE GARAGE - FLOOR PLANS AND ELEVATIONS
Drawing
Take Action
Make your voice heard. Authorities need to hear from people who support new homes.