← Back to Hastings Borough Council
HS/FA/25/00570
Hastings Borough Council · IDOX
Status
Registered
Change of use
Received
01 Oct 2025
New dwellings
10
Full Proposal
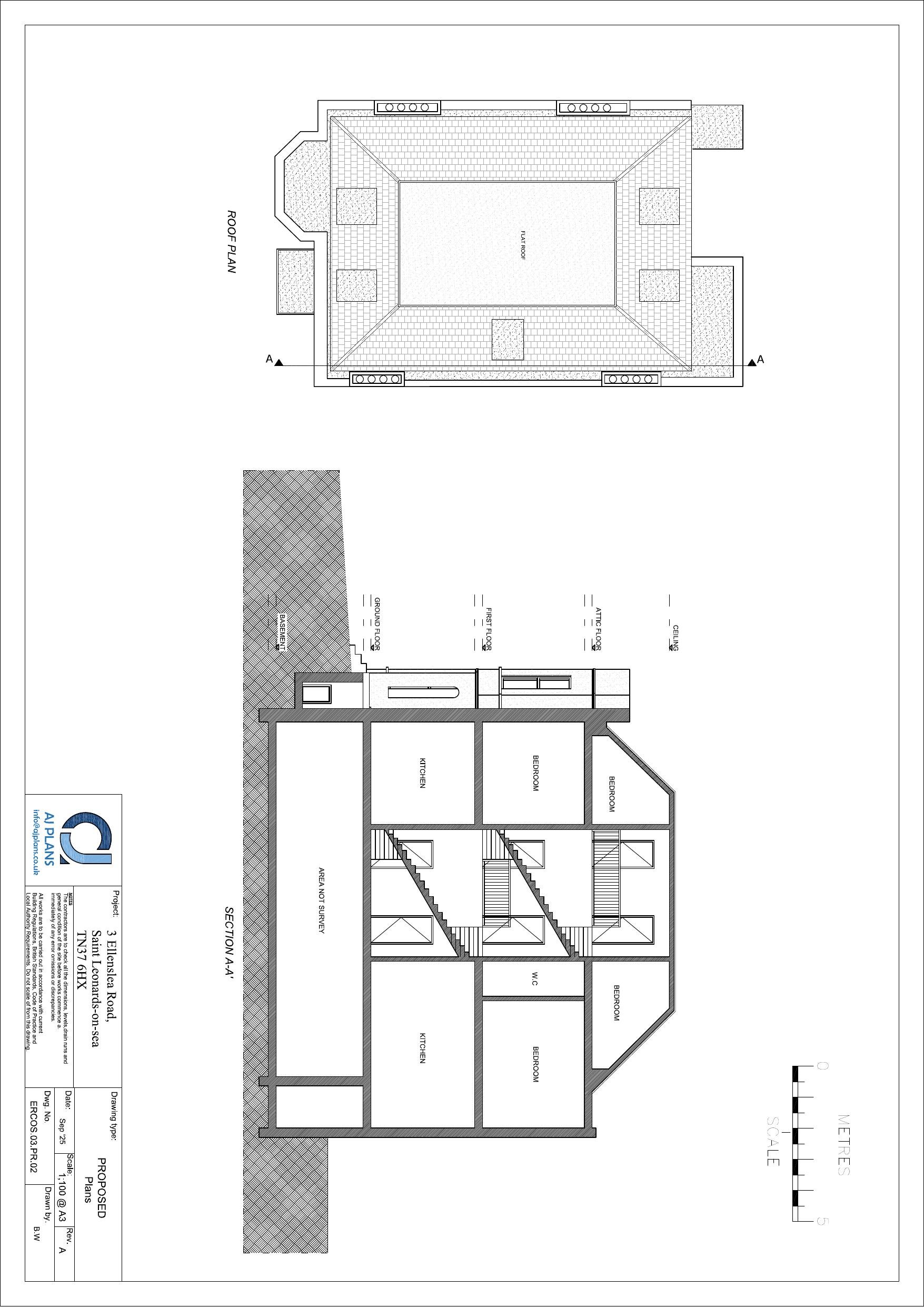
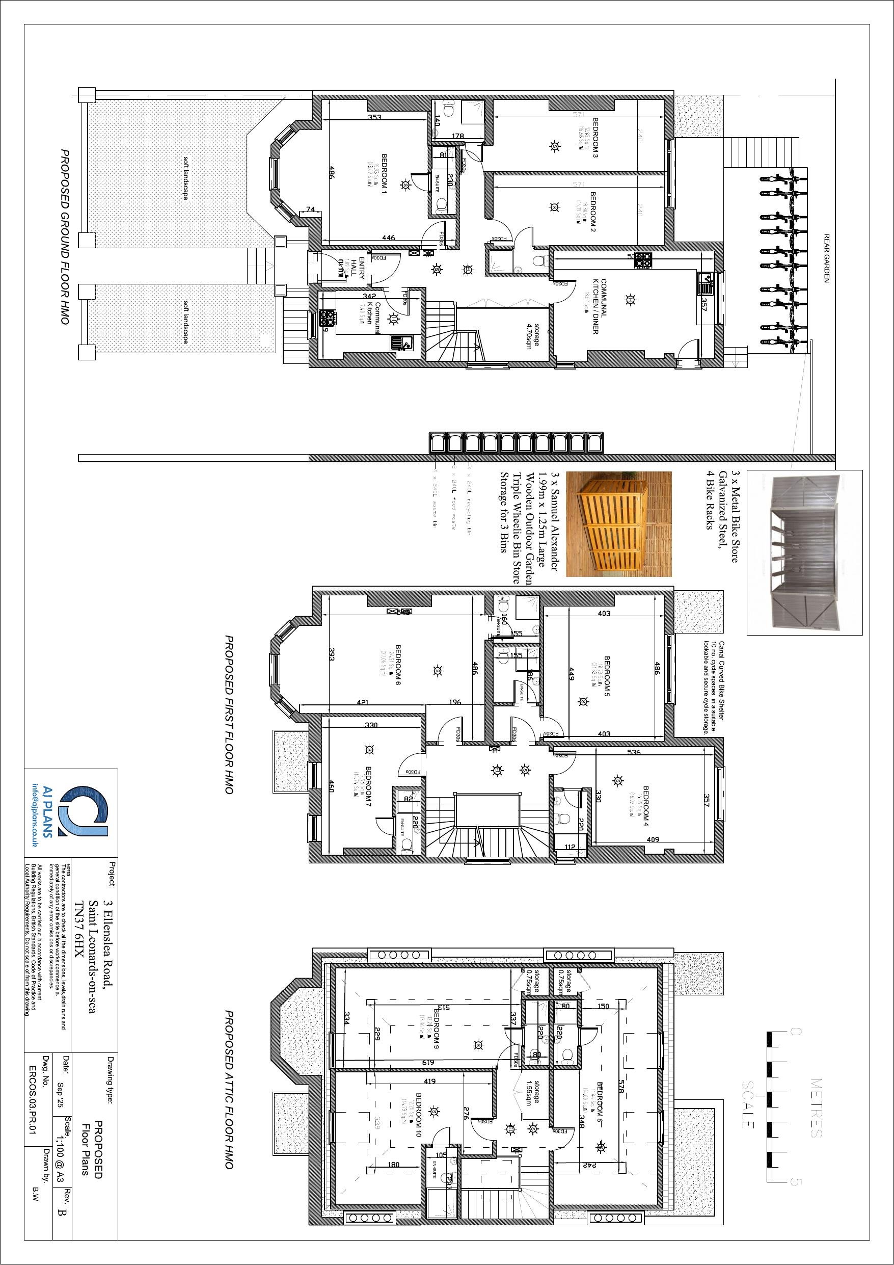
Change of Use from residential house (C3) to a 10 bedroom House of Multiple occupation (HMO) (sui generis).
Documents
SENIOR SUSTAINABLE URBAN DRAINAGE AND FLOOD RISK OFFICER
Consultee Comment
Not archived
· Council Link
Take Action
Make your voice heard. Authorities need to hear from people who support new homes.