← Back to Hastings Borough Council

Status

Registered New housing
Received
23 May 2025
New dwellings
78

Summary

Outline (landscaping reserved) for 78 homes with access, parking and open space.

Full Proposal

Outline Permission (Landscaping only reserved matter) for the erection of 78 residential units, associated works, access, parking and provision of open space.

Documents

AIR QUALITY ASSESSMENT
Other
Not archived · Council Link
APPENDIX 1 - LEAFLET SENT TO RESIDENTS AND COUNCILLORS
Other
Not archived · Council Link
Application Form
Application Form
Not archived · Council Link
ARBORICULTURAL REPORT
Other
Not archived · Council Link
ARCHAEOLOGICAL REPORT
Other
Not archived · Council Link
BAT SURVEY REPORT
Other
Not archived · Council Link
BNG METRIC
Other
Not archived · Council Link
BNG REPORT
Other
Not archived · Council Link
BOROUGH ARBORICULTURIST
Consultee Comment
Not archived · Council Link
BREEDING BIRD SURVEY REPORT
Other
Not archived · Council Link
COUNTY 106 CONTRIBUTIONS
Consultee Comment
Not archived · Council Link
COUNTY ARCHAEOLOGY
Consultee Comment
Not archived · Council Link
COUNTY ARCHAEOLOGY
Consultee Comment
Not archived · Council Link
COVERING LETTER INCLUDING DRAWING REGISTER
Other
Not archived · Council Link
DESIGN & ACCESS STATEMENT PART 1
Other
Not archived · Council Link
DESIGN & ACCESS STATEMENT PART 2
Other
Not archived · Council Link
DOCUMENT REGISTER
Other
Not archived · Council Link
DRAINAGE REPORT
Other
Not archived · Council Link
ECOLOGY REPORT (JULY 2022)
Other
Not archived · Council Link
ENVIRONMENT AGENCY
Consultee Comment
Not archived · Council Link
ENVIRONMENTAL HEALTH
Consultee Comment
Not archived · Council Link
ESCC ECOLOGY
Consultee Comment
Not archived · Council Link
ESCC SUDS
Consultee Comment
Not archived · Council Link
ESTATES
Consultee Comment
Not archived · Council Link
Drawing
Archived · Council Link
EXISTING SITE SECTIONS - SHEET 01
Drawing
Not archived · Council Link
EXISTING SITE SECTIONS - SHEET 02
Drawing
Not archived · Council Link
FIG 1 FIRTREE ROAD BASELINE HABITAT PLAN
Drawing
Not archived · Council Link
FIG 2 FIRTREE ROAD POST-INTERVENTION HABITAT PLAN
Drawing
Not archived · Council Link
FLOOD RISK ASSESSMENT
Other
Not archived · Council Link
GEOTECHNICAL AND GROUND CONTAMINATION RISK ASSESSMENT
Other
Not archived · Council Link
HEALTH AND SAFETY EXECUTIVE
Consultee Comment
Not archived · Council Link
HIGHWAYS
Consultee Comment
Not archived · Council Link
LAND STABILITY REPORT
Other
Not archived · Council Link
LAND STABILITY REPORT - MILVIUM - DATED 31/08/2025
Consultee Comment
Not archived · Council Link
MR SCOTT ISABELL
Objection Comment
Not archived · Council Link
NATURAL ENGLAND
Consultee Comment
Not archived · Council Link
NATURAL ENGLAND ANNEX A
Consultee Comment
Not archived · Council Link
NATURE SPACE
Consultee Comment
Not archived · Council Link
NETWORK RAIL
Consultee Comment
Not archived · Council Link
NETWORK RAIL ASPRO INFORMATIVES
Consultee Comment
Not archived · Council Link
PARKS AND OPEN SPACES
Consultee Comment
Not archived · Council Link
PLANNING POLICY
Consultee Comment
Not archived · Council Link
PLANNING STATEMENT AMENDED FOR OUTLINE 16.5.25
Other
Not archived · Council Link
POLICE
Consultee Comment
Not archived · Council Link
POLICE APPENDIX 1
Consultee Comment
Not archived · Council Link
POLICE APPENDIX 2
Consultee Comment
Not archived · Council Link
POLICE APPENDIX 3
Consultee Comment
Not archived · Council Link
POLICE APPENDIX 4
Consultee Comment
Not archived · Council Link
POLICE APPENDIX 5
Consultee Comment
Not archived · Council Link
POLICE APPENDIX 6
Consultee Comment
Not archived · Council Link
PROPOSED ELEVATIONS - HOUSE TYPE A1_2B3P
Drawing
Not archived · Council Link
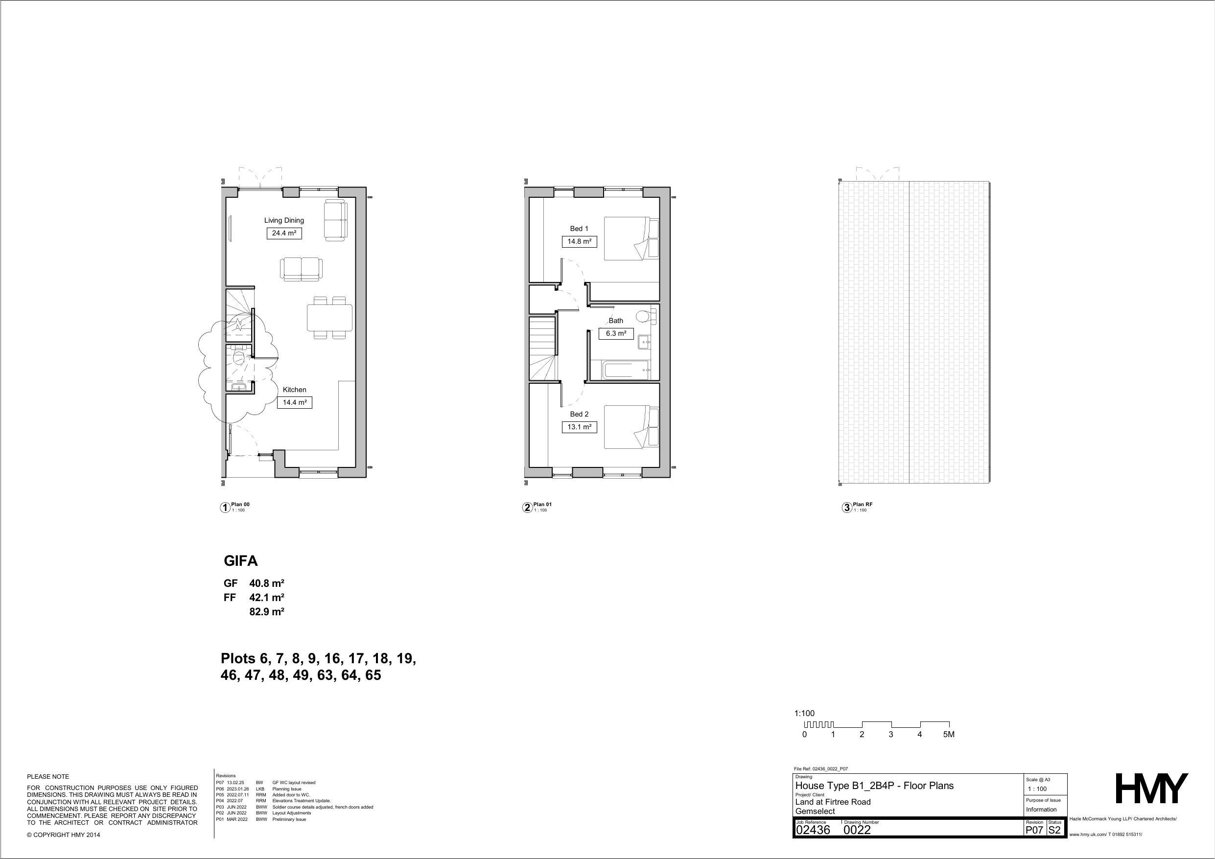
PROPOSED ELEVATIONS - HOUSE TYPE B1_2B4P
Drawing
Not archived · Council Link
PROPOSED ELEVATIONS - HOUSE TYPE B2_2B4P
Drawing
Not archived · Council Link
PROPOSED ELEVATIONS - HOUSE TYPE B3_2B4P
Drawing
Not archived · Council Link
PROPOSED ELEVATIONS - HOUSE TYPE C1_3B5P
Drawing
Not archived · Council Link
PROPOSED ELEVATIONS FLAT BLOCK -
Drawing
Not archived · Council Link
PROPOSED ELEVATIONS HOUSE TYPE 1
Drawing
Not archived · Council Link
PROPOSED ELEVATIONS HOUSE TYPE 1
Drawing
Not archived · Council Link
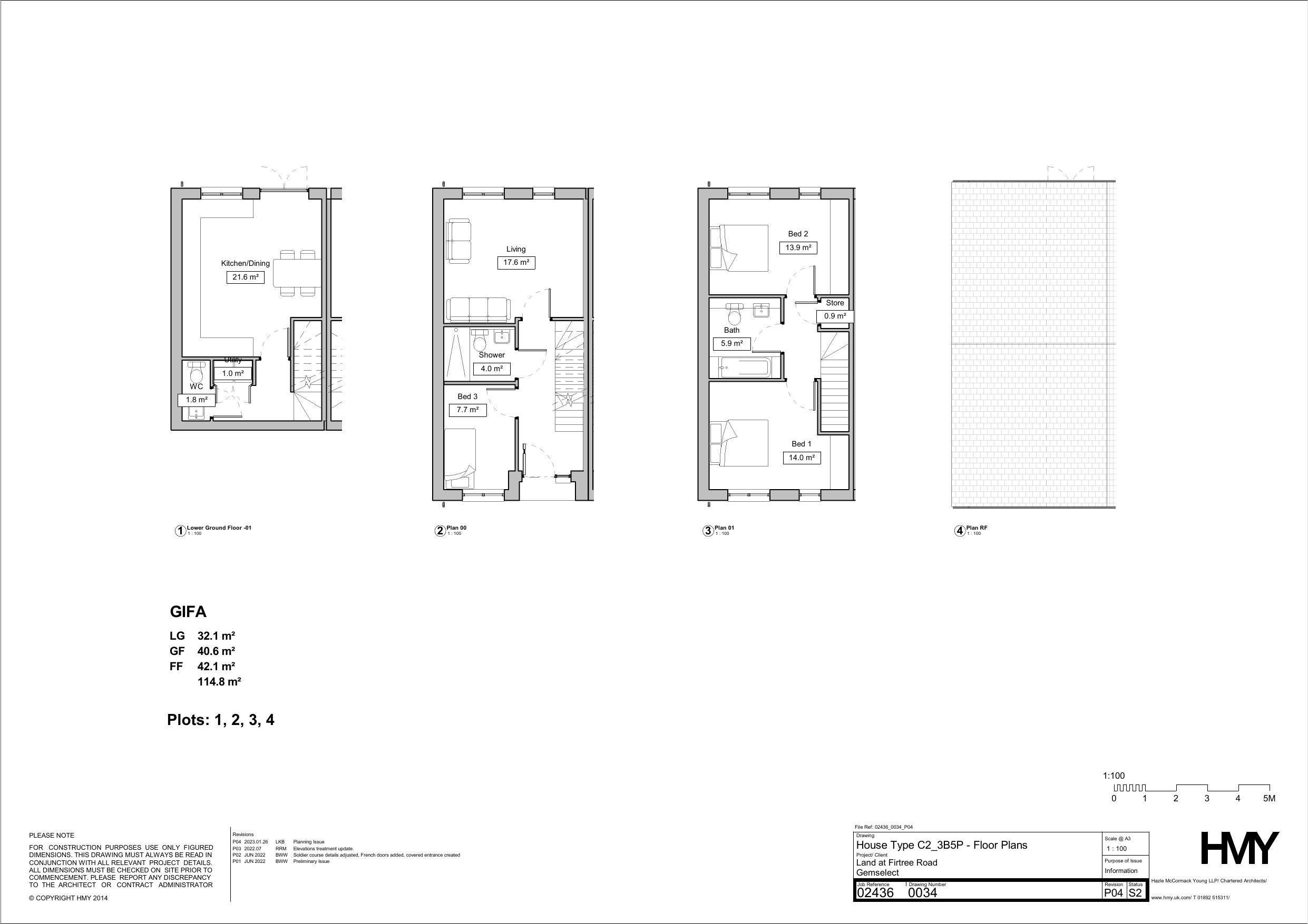
PROPOSED ELEVATIONS HOUSE TYPE C2_3B5P
Drawing
Not archived · Council Link
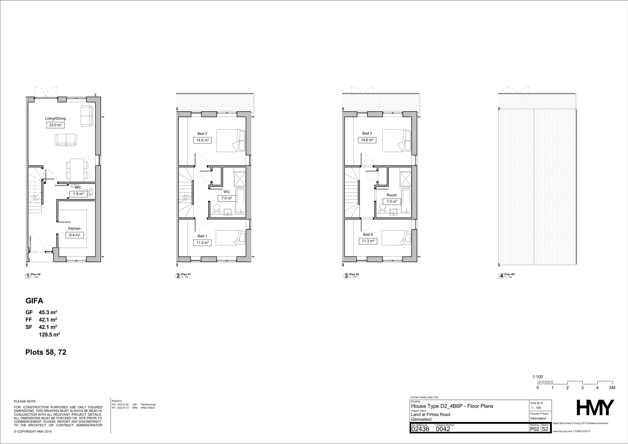
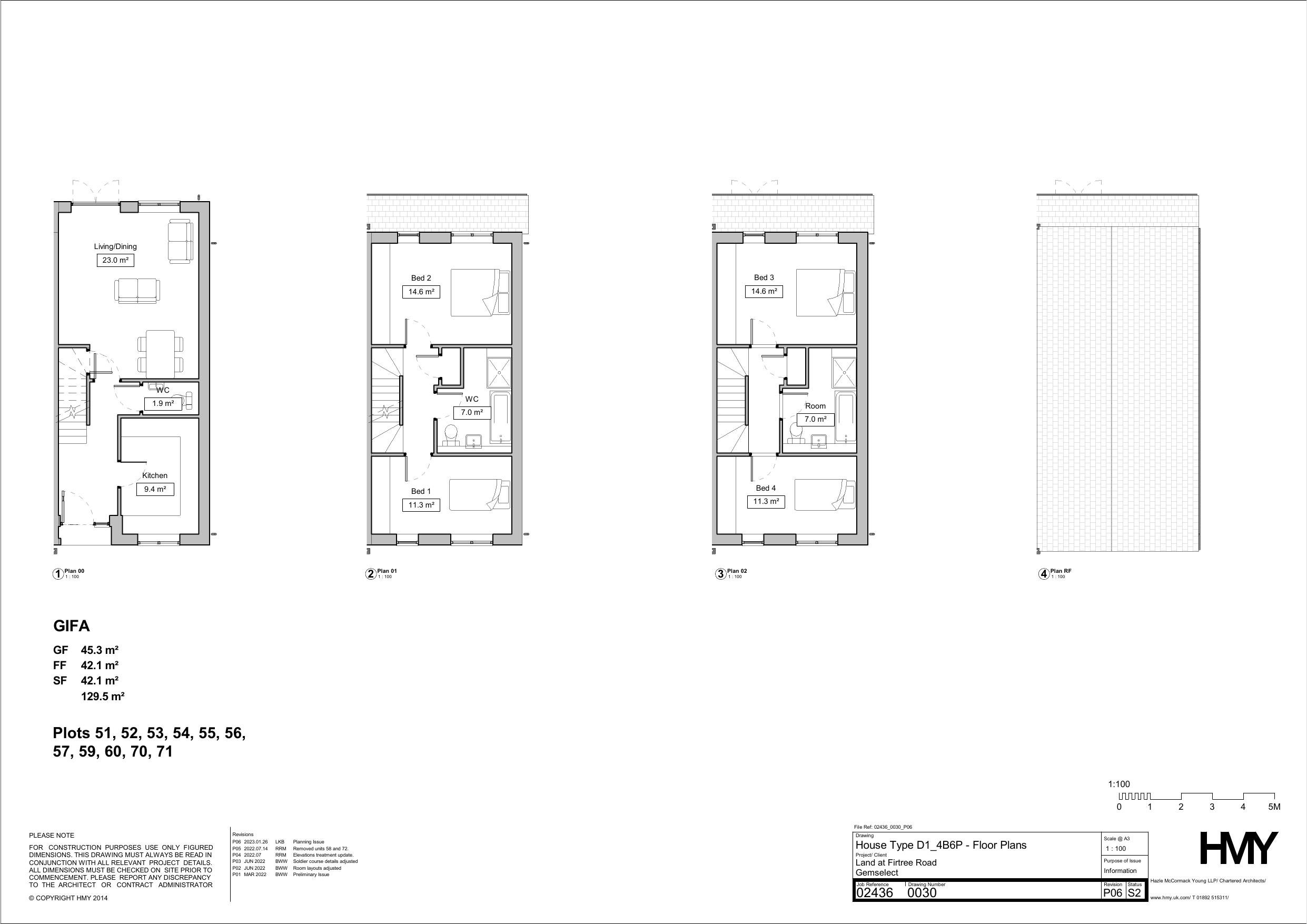
PROPOSED ELEVATIONS HOUSE TYPE D2_4B6P
Drawing
Not archived · Council Link
PROPOSED ELEVATIONS HOUSE TYPE SB_2BSB
Drawing
Not archived · Council Link
PROPOSED FLAT BLOCK_2B4P - PLANS
Drawing
Not archived · Council Link
PROPOSED SITE SECTIONS - SHEET 01
Drawing
Not archived · Council Link
PROPOSED SITE SECTIONS - SHEET 02
Drawing
Not archived · Council Link
PROPOSED STREET ELEVATIONS - SHEET 02
Drawing
Not archived · Council Link
PROPOSED STREET ELEVATIONS - SHEET 03
Drawing
Not archived · Council Link
PROPOSED STREET ELEVATIONS - SHEET 1
Drawing
Not archived · Council Link
REPTILE AND GREAT CRESTED NEWT SURVEY
Other
Not archived · Council Link
Site Notice
Site Notice
Not archived · Council Link
SOUTHERN WATER
Consultee Comment
Not archived · Council Link
SOUTHERN WATER
Consultee Comment
Not archived · Council Link
SOUTHERN WATER MAP
Consultee Comment
Not archived · Council Link
SOUTHERN WATER PLAN
Consultee Comment
Not archived · Council Link
STATUTORY BIODIVERSITY METRIC CONDITION ASSESSMENTS -BASELINE
Other
Not archived · Council Link
STATUTORY BIODIVERSITY METRIC CONDITION ASSESSMENTS POST INTERVENTION
Other
Not archived · Council Link
SUPPLEMENTARY GROUND GAS
Other
Not archived · Council Link
TOPOGRAPHICAL SURVEY
Drawing
Not archived · Council Link
TRANSPORT ASSESSMENT
Other
Not archived · Council Link
UPDATED ECOLOGY REPORT (NOVEMBER 2022)
Other
Not archived · Council Link
UPDATED PRELIMINARY ECOLOGICAL
Other
Not archived · Council Link
WASTE
Consultee Comment
Not archived · Council Link

Take Action

Make your voice heard. Authorities need to hear from people who support new homes.

✉️ Write Email in Support View on Council Portal