← Back to Hertsmere Borough Council

Status

Decided Change of use
Received
15 Aug 2025
New dwellings
1

Summary

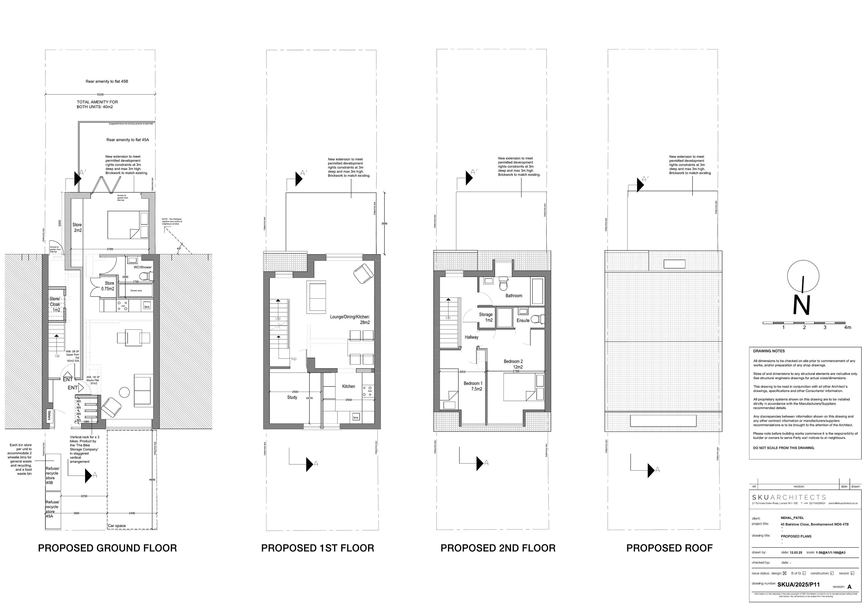
Conversion of dwelling to two flats with single-storey rear extension and fenestration alterations.

Full Proposal

Conversion of dwelling to 2x flats including single storey rear extension and alterations to fenestration.

Documents

Applicationformredacted
Application Form
Not archived · Council Link
Cil comments
Consultee replies
Not archived · Council Link
Cil form
CIL
Not archived · Council Link
Consultee comment submitted online
Consultee Comment
Not archived · Council Link
Decision
Decision
Not archived · Council Link
Delegated report
Delegated Report
Not archived · Council Link
Design statement
Supporting Documents
Not archived · Council Link
Existing elevations
Superseded plan
Not archived · Council Link
Existing elevations
Amended Plan
Not archived · Council Link
Existing floor plans
Drawing/Plans
Not archived · Council Link
Growth and infrastructure comments
Consultee replies
Not archived · Council Link
Highways response
Consultee replies
Not archived · Council Link
Location and block plans
Drawing/Plans
Not archived · Council Link
Proposed elevations
Drawing/Plans
Not archived · Council Link
Superseded plan
Archived · Council Link
Amended Plan
Archived · Council Link

Take Action

Make your voice heard. Authorities need to hear from people who support new homes.

✉️ Write Email in Support View on Council Portal