← Back to Hertsmere Borough Council

Status

Awaiting decision New housing
Received
16 Dec 2025
New dwellings
1

Full Proposal

Demolition of Non-Designated Heritage Asset (NDHA) detached dwelling and construction of replacement two storey detached dwelling with rooflights, air source heat pump, solar panels and alterations to boundary treatments, hard and soft landscaping.

Documents

24/0679/hse - appeal decision
Supporting Documents
Not archived · Council Link
Access strategy rev2
Drawing/Plans
Not archived · Council Link
Air source heat pump
Drawing/Plans
Not archived · Council Link
Appendix 1 - evidence for extent of original (pre-1948) house
Supporting Documents
Not archived · Council Link
Appendix 2
Supporting Documents
Not archived · Council Link
Applicationformredacted
Application Form
Not archived · Council Link
Asbestos survey
Supporting Documents
Not archived · Council Link
Building survey
Supporting Documents
Not archived · Council Link
Building survey photo sheet
Supporting Documents
Not archived · Council Link
Cil form 1
CIL
Not archived · Council Link
Cil form 2
CIL
Not archived · Council Link
Cil form 7
CIL
Not archived · Council Link
Conservation comment
Consultee replies
Not archived · Council Link
Consultee comment submitted online
Consultee Comment
Not archived · Council Link
Decision_notice-1731783
Supporting Documents
Not archived · Council Link
Delegated_report-1731782
Supporting Documents
Not archived · Council Link
Demolition plan
Drawing/Plans
Not archived · Council Link
Design and access statement rev2
Supporting Documents
Not archived · Council Link
Drainage plan
Supporting Documents
Not archived · Council Link
Drainage strategy
Drawing/Plans
Not archived · Council Link
Existing elevations
Drawing/Plans
Not archived · Council Link
Existing first floor plan
Drawing/Plans
Not archived · Council Link
Existing ground floor plan
Drawing/Plans
Not archived · Council Link
Existing roof plan
Drawing/Plans
Not archived · Council Link
Drawing/Plans
Archived · Council Link
Heritage statement rev2
Supporting Documents
Not archived · Council Link
Landscape plan rev2
Drawing/Plans
Not archived · Council Link
Local list appendix 5 bushey
Supporting Documents
Not archived · Council Link
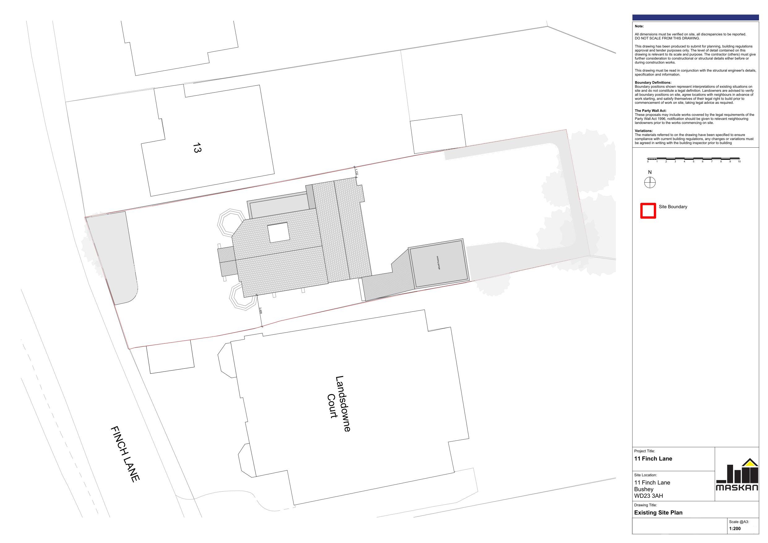
Location plan
Drawing/Plans
Not archived · Council Link
Preapplication advice
Supporting Documents
Not archived · Council Link
Proposed first floor plan rev2
Drawing/Plans
Not archived · Council Link
Proposed front and rear elevations rev2
Drawing/Plans
Not archived · Council Link
Proposed ground floor plan rev2
Drawing/Plans
Not archived · Council Link
Proposed roof plan rev2
Drawing/Plans
Not archived · Council Link
Proposed side elevations rev2
Drawing/Plans
Not archived · Council Link
Drawing/Plans
Archived · Council Link
Drawing/Plans
Archived · Council Link
Proposed street scene
Drawing/Plans
Not archived · Council Link
Refuse strategy rev2
Drawing/Plans
Not archived · Council Link
Thames water response
Consultee replies
Not archived · Council Link

Take Action

Make your voice heard. Authorities need to hear from people who support new homes.

✉️ Write Email in Support View on Council Portal