← Back to Hinckley & Bosworth Borough Council

Status

Awaiting decision New housing
Received
21 Jul 2025
New dwellings
1

Summary

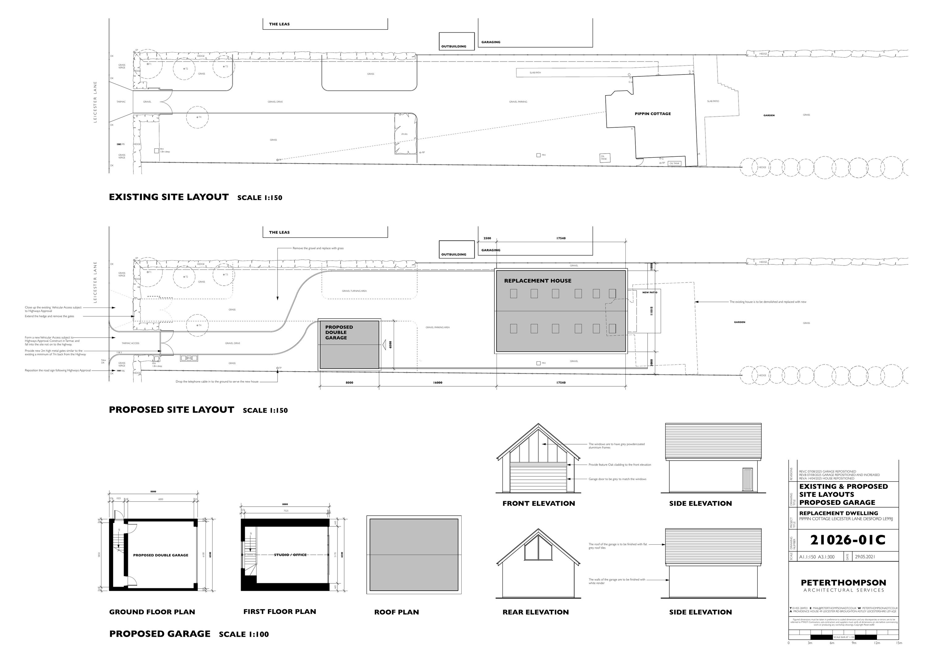
Demolition of existing dwelling and erection of one self-build dwelling.

Full Proposal

Demolition of existing dwelling and erection of one self-build dwelling

Documents

Amended application Section 17
1APP Public Form
Not archived · Council Link
Amended application Section 24
1APP Public Form
Not archived · Council Link
Application Form
1APP Public Form
Not archived · Council Link
Covering email to photos
Additional Information
Not archived · Council Link
HBBC Drainage
Consultation Response
Not archived · Council Link
HBBC ES Pollution 2
Consultation Response
Not archived · Council Link
LCC Ecology
Consultation Response
Not archived · Council Link
LCC Ecology
Consultation Response
Not archived · Council Link
LCC Ecology
Consultation Response
Not archived · Council Link
LCC Highways
Consultation Response
Not archived · Council Link
Photo
Additional Information
Not archived · Council Link
Photo
Additional Information
Not archived · Council Link
Photo
Additional Information
Not archived · Council Link
Photo
Additional Information
Not archived · Council Link
Photo
Additional Information
Not archived · Council Link
Photo
Additional Information
Not archived · Council Link
Photo
Additional Information
Not archived · Council Link
Photo
Additional Information
Not archived · Council Link
Photo
Additional Information
Not archived · Council Link
Photo
Additional Information
Not archived · Council Link
Preliminary Roost Assessment
Additional Tech Assessments/Appraisals/Surveys
Not archived · Council Link
Proposed Elevations 21026-03A
Development Control Plans
Not archived · Council Link
Development Control Plans
Archived · Council Link
Site Location Plans
Archived · Council Link

Take Action

Make your voice heard. Authorities need to hear from people who support new homes.

✉️ Write Email in Support View on Council Portal