← Back to Hinckley & Bosworth Borough Council

Status

Awaiting decision New housing
Received
26 Aug 2025
New dwellings
1

Summary

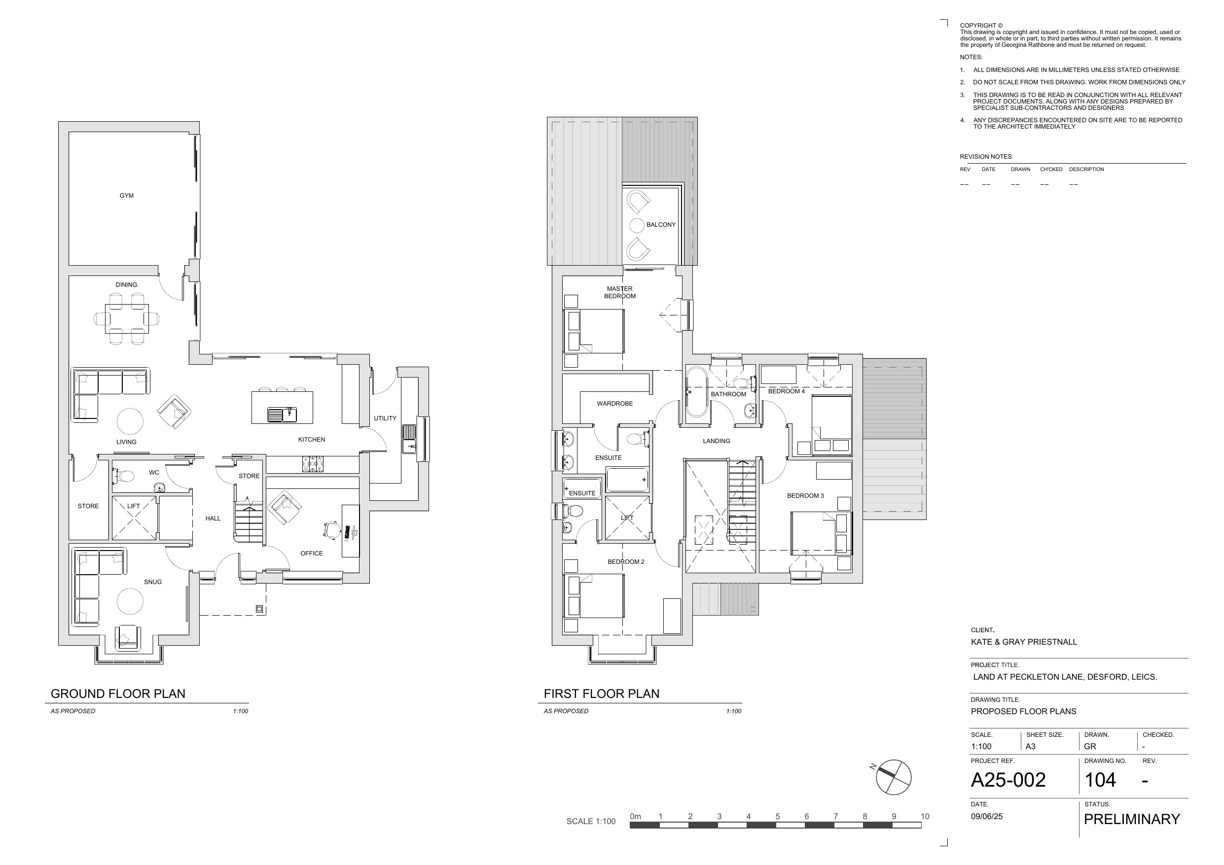
Erection of one self-build dwelling; demolition of garages and parking alterations.

Full Proposal

Erection of a self-build dwelling, demolition of existing garages and alteration of parking arrangements

Documents

Application Form
1APP Public Form
Not archived · Council Link
Biodiversity Enhancement Plan (200 88B)
Technical Assessments/Appraisals/Surveys
Not archived · Council Link
Design and Access Statement
Design Statement
Not archived · Council Link
Existing Block Plan (02A)
Amended Plans
Not archived · Council Link
HBBC Drainage
Consultation Response
Not archived · Council Link
HBBC ES Pollution 2
Consultation Response
Not archived · Council Link
LCC Ecology
Consultation Response
Not archived · Council Link
LCC Ecology
Consultation Response
Not archived · Council Link
LCC Highways
Consultation Response
Not archived · Council Link
LCC Minerals
Consultation Response
Not archived · Council Link
Location Plan (01B)
Amended Plans
Not archived · Council Link
Planning Statement
Technical Assessments/Appraisals/Surveys
Not archived · Council Link
Preliminary Bat and Bird Assessments (200 128)
Technical Assessments/Appraisals/Surveys
Not archived · Council Link
Proposed Elevations 1/2, Drg No. A25-002 110
Development Control Plans
Not archived · Council Link
Proposed Elevations 2/2, Drg No. A25-002 111
Development Control Plans
Not archived · Council Link
Development Control Plans
Archived · Council Link
Development Control Plans
Archived · Council Link
Site Location Plans
Archived · Council Link
Site Notice
Public Notice
Not archived · Council Link

Take Action

Make your voice heard. Authorities need to hear from people who support new homes.

✉️ Write Email in Support View on Council Portal