← Back to Hinckley & Bosworth Borough Council

Status

Permitted Change of use
Received
08 Sep 2025
New dwellings
0

Full Proposal

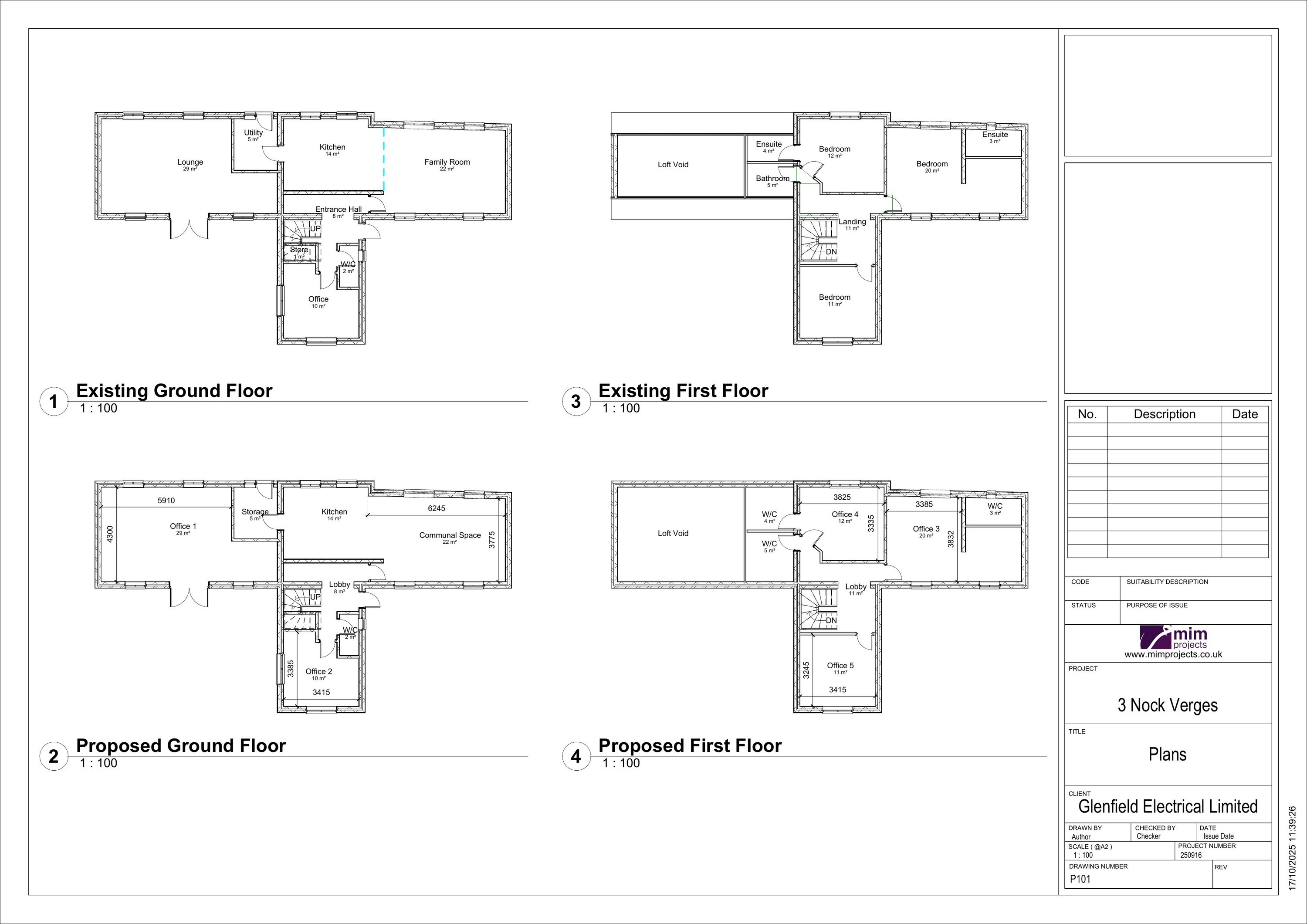
Change of use from residential dwelling to offices

Documents

Application Form
1APP Public Form
Not archived · Council Link
Decision Notice
Decision Notice
Not archived · Council Link
Development Control Plans
Archived · Council Link
HBBC Drainage
Consultation Response
Not archived · Council Link
HBBC ES Pollution
Consultation Response
Not archived · Council Link
Highway Technical Note
Technical Assessments/Appraisals/Surveys
Not archived · Council Link
Officer Report
Delegated Report - Officer
Not archived · Council Link
Planning, Design and Access Statement
Technical Assessments/Appraisals/Surveys
Not archived · Council Link
Site Location Plans
Archived · Council Link

Take Action

Make your voice heard. Authorities need to hear from people who support new homes.

✉️ Write Email in Support View on Council Portal