← Back to Hinckley & Bosworth Borough Council

Status

Permitted New housing
Received
13 Oct 2025
New dwellings
1

Full Proposal

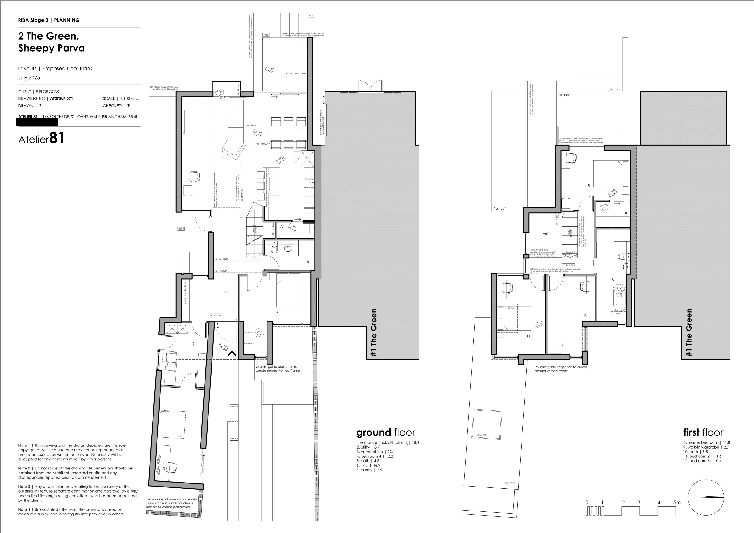
Retrospective planning application for demolition of the existing semi-detached property and replacement with a new-build dwelling (incl. associated parking, boundary treatment and landscaping) designed around the principles of planning approval ref 21/01342/HOU.

Documents

Application Form
1APP Public Form
Not archived · Council Link
Decision Notice
Decision Notice
Not archived · Council Link
Delegated Officer Report
Delegated Report - Officer
Not archived · Council Link
Demolition Plan, Drg No. AT2TG.P.074
Development Control Plans
Not archived · Council Link
Design and Access, Planning Statement
Design Statement
Not archived · Council Link
Front, Rear Elevations, Drg No. AT2TG.P.072
Development Control Plans
Not archived · Council Link
Measured Survey, Floor Plan, Elevation, Drg No. 1000cv-01
Development Control Plans
Not archived · Council Link
Development Control Plans
Archived · Council Link
Development Control Plans
Archived · Council Link
Side Elevation, Drg No. AT2TG.P.073
Development Control Plans
Not archived · Council Link
Site Location Plans
Archived · Council Link
Site Location Plans
Archived · Council Link

Take Action

Make your voice heard. Authorities need to hear from people who support new homes.

✉️ Write Email in Support View on Council Portal