← Back to Hinckley & Bosworth Borough Council

Status

Awaiting decision New housing
Received
27 Oct 2025
New dwellings
5

Summary

Demolish three barns; erect three new dwellings and convert two barns to dwellings.

Full Proposal

Demolition of 3 agricultural barns, erection of 3 new residential dwellings and change of use 2 agricultural barns to residential dwellings

Documents

Access Arrangements with Visibility Splays, Drg No. ADL-6851-01
Amended Plans
Not archived · Council Link
Access Arrangements with Visibility Splays, Drg No. ADL-6851-01
Amended Plans
Not archived · Council Link
Advert
Public Notice
Not archived · Council Link
Application Form
1APP Public Form
Not archived · Council Link
Bat Survey
Technical Assessments/Appraisals/Surveys
Not archived · Council Link
Bat Survey
Superseded Plan
Not archived · Council Link
Bio Diversity Metric
Design Statement
Not archived · Council Link
Building 3 Existing Plans Dwg no 240-310
Development Control Plans
Not archived · Council Link
Building 3 Existing Elevations Dwg no 240-311
Development Control Plans
Not archived · Council Link
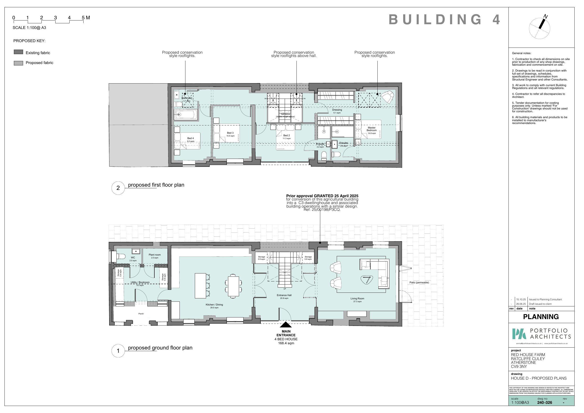
Building 4 Existing Elevations Dwg no 240-313
Development Control Plans
Not archived · Council Link
Building 4 Existing Plans Dwg no 240-312
Development Control Plans
Not archived · Council Link
Building 5 Existing Elevations Dwg no 240-315
Development Control Plans
Not archived · Council Link
Building 5 Existing Plans Dwg no 240-314
Development Control Plans
Not archived · Council Link
Building 6 Existing Elevations Dwg no 240-317
Development Control Plans
Not archived · Council Link
Building 6 Existing Plans Dwg no 240-316
Development Control Plans
Not archived · Council Link
Building 7 Existing Elevations Dwg no 240-319
Development Control Plans
Not archived · Council Link
Building 7 Existing plans Dwg no 240-318
Development Control Plans
Not archived · Council Link
Contaminated Land Risk Assessment Phase 1 Desk Study Report
Technical Assessments/Appraisals/Surveys
Not archived · Council Link
Design & Access Statement
Design Statement
Not archived · Council Link
Development Control Plans
Archived · Council Link
Grassland Condition/Habitat
Technical Assessments/Appraisals/Surveys
Not archived · Council Link
HBBC Drainage
Consultation Response
Not archived · Council Link
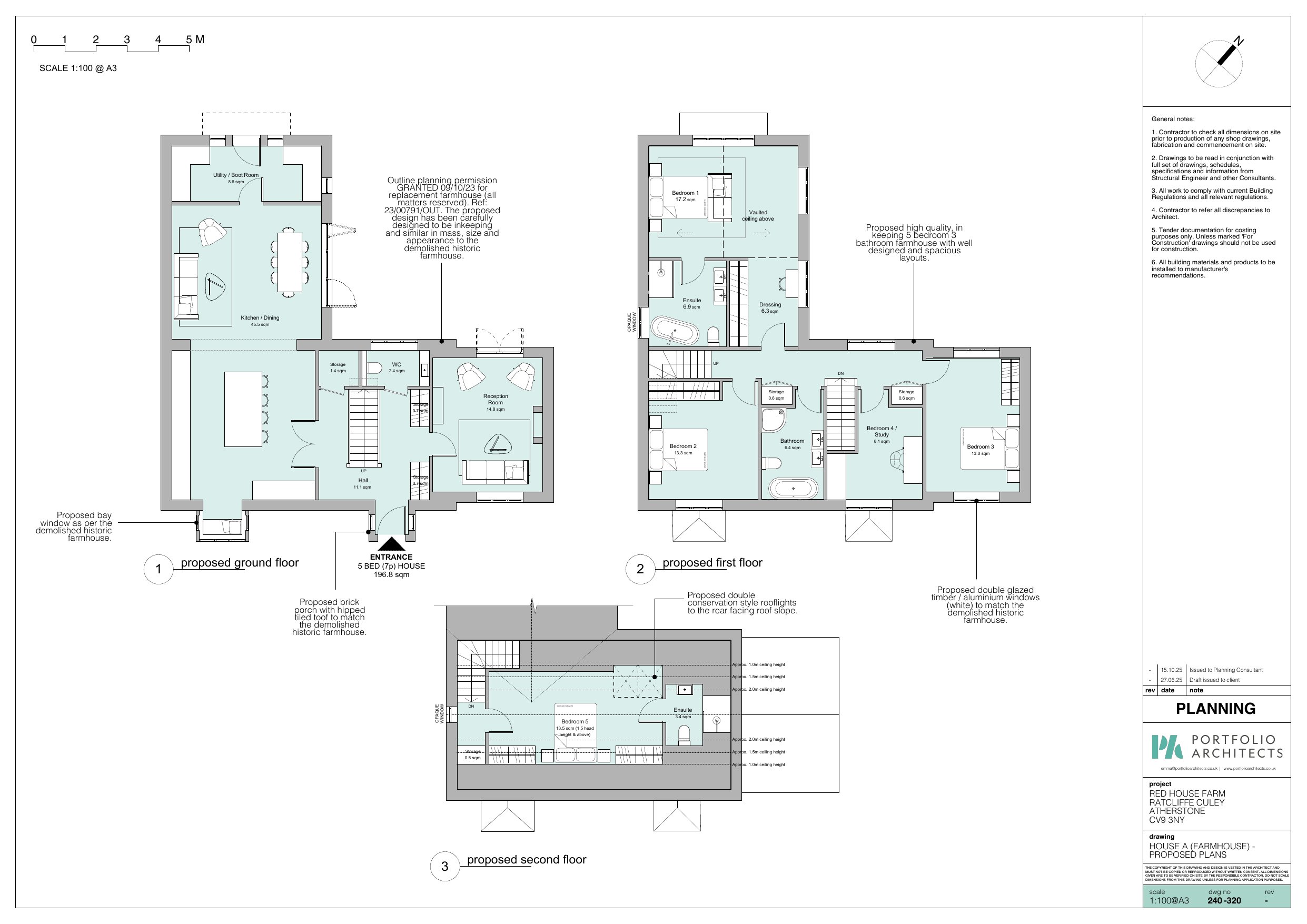
House A Farmhouse Proposed Elevations Dwg no 240-321
Development Control Plans
Not archived · Council Link
Development Control Plans
Archived · Council Link
House B Farmhouse Proposed Elevations Dwg no 240-323
Development Control Plans
Not archived · Council Link
Development Control Plans
Archived · Council Link
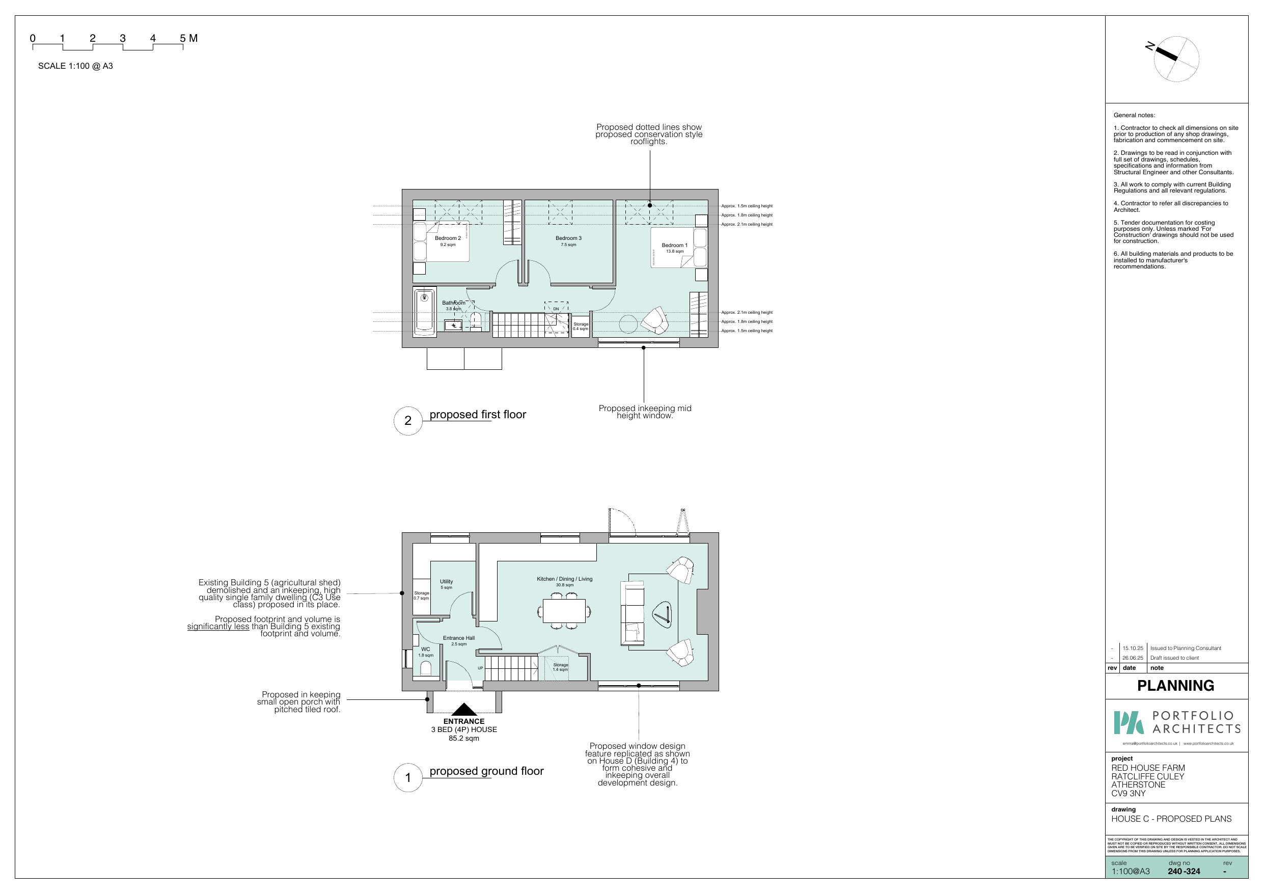
House C Farmhouse Proposed Elevations dwg no 240-325
Development Control Plans
Not archived · Council Link
Development Control Plans
Archived · Council Link
House D Farmhouse Proposed Elevations dwg no 240-327
Development Control Plans
Not archived · Council Link
Development Control Plans
Archived · Council Link
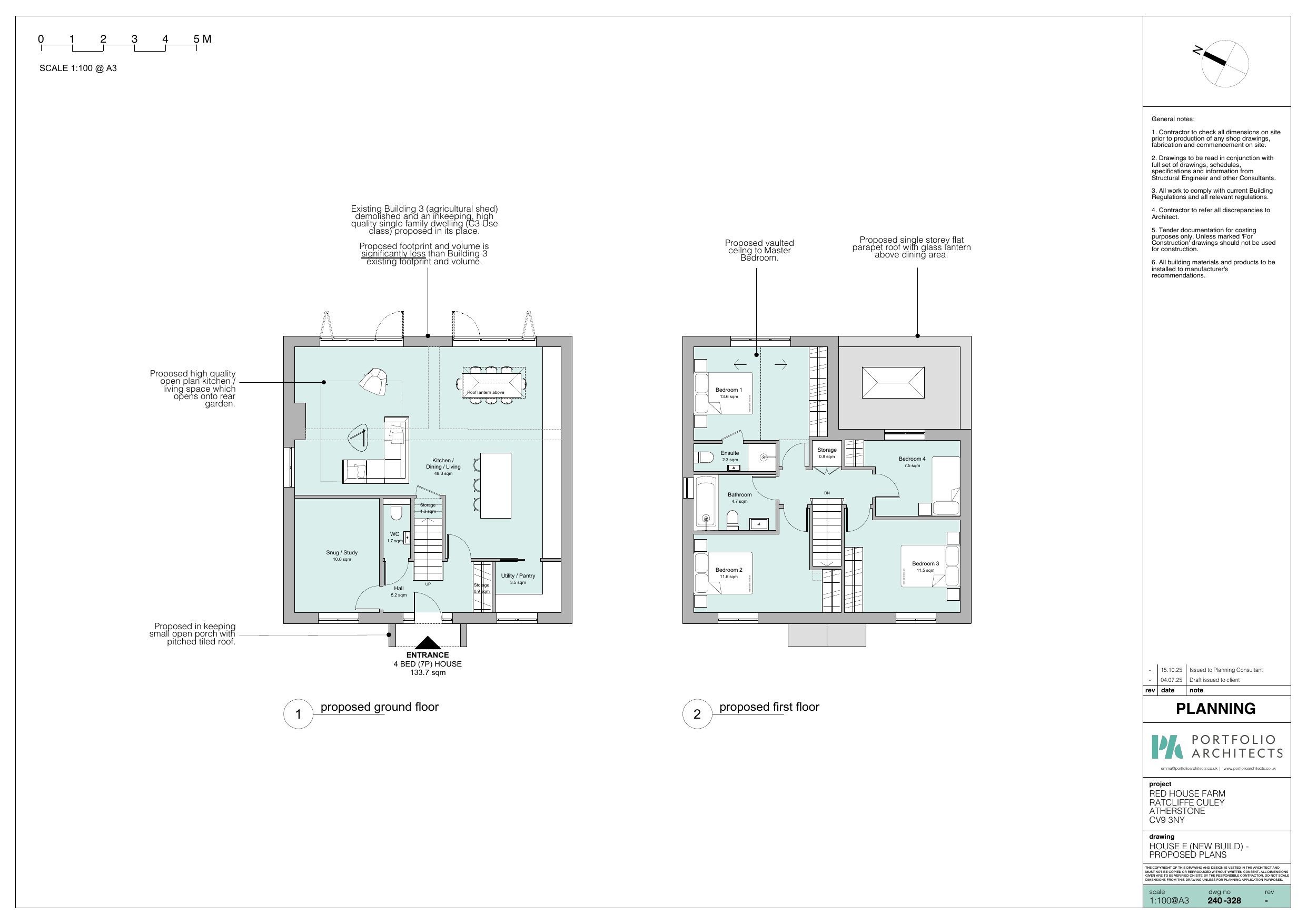
House E Farmhouse Proposed Elevations dwg no 240-329
Development Control Plans
Not archived · Council Link
Development Control Plans
Archived · Council Link
LCC Ecology
Consultation Response
Not archived · Council Link
LCC Ecology
Consultation Response
Not archived · Council Link
LCC Highways
Consultation Response
Not archived · Council Link
LCC Highways
Consultation Response
Not archived · Council Link
Planning Statement
Design Statement
Not archived · Council Link
Preliminary Ecological Appraisal
Technical Assessments/Appraisals/Surveys
Not archived · Council Link
Site Location Plans
Archived · Council Link
Structural Inspection Building 4 Project no. 24-21204 0-032
Technical Assessments/Appraisals/Surveys
Not archived · Council Link
Uk Habitat -Baseline
Technical Assessments/Appraisals/Surveys
Not archived · Council Link

Take Action

Make your voice heard. Authorities need to hear from people who support new homes.

✉️ Write Email in Support View on Council Portal