← Back to Hinckley & Bosworth Borough Council

Status

Awaiting decision New housing
Received
Last month
New dwellings
1

Full Proposal

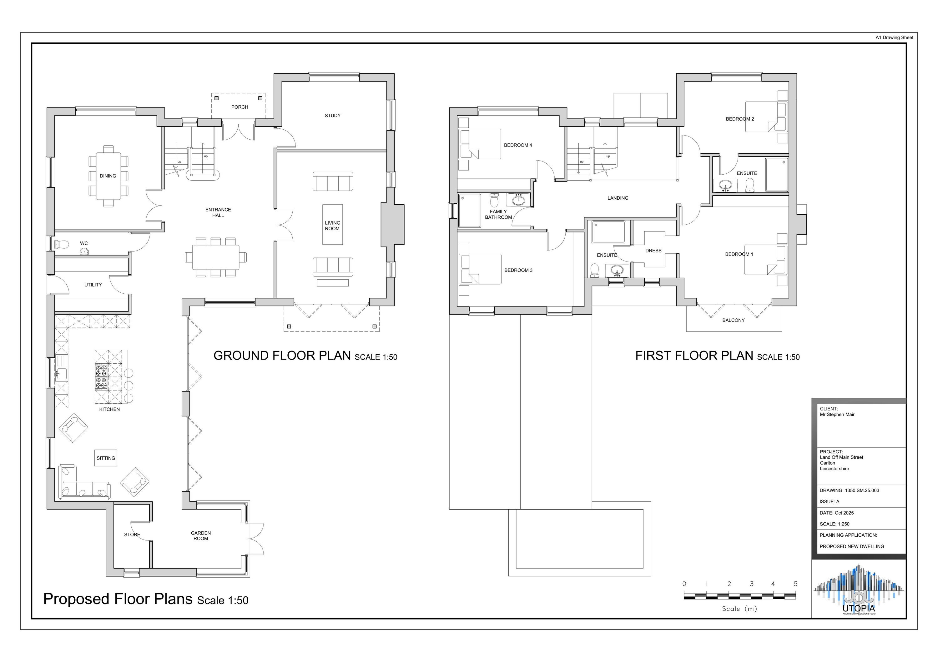
Outline planning permission for a the erection of a single self-build dwelling (All matters reserved except access)

Documents

Application Form
1APP Public Form
Not archived · Council Link
Design and Access, Planning Statement
Design Statement
Not archived · Council Link
Development Control Plans
Archived · Council Link
HBBC ES Pollution 2.
Consultation Response
Not archived · Council Link
Preliminary Ecological Appraisal Report
Technical Assessments/Appraisals/Surveys
Not archived · Council Link
Development Control Plans
Archived · Council Link

Take Action

Make your voice heard. Authorities need to hear from people who support new homes.

✉️ Write Email in Support View on Council Portal