← Back to Hinckley & Bosworth Borough Council

Status

Awaiting decision New housing
Received
Last month
New dwellings
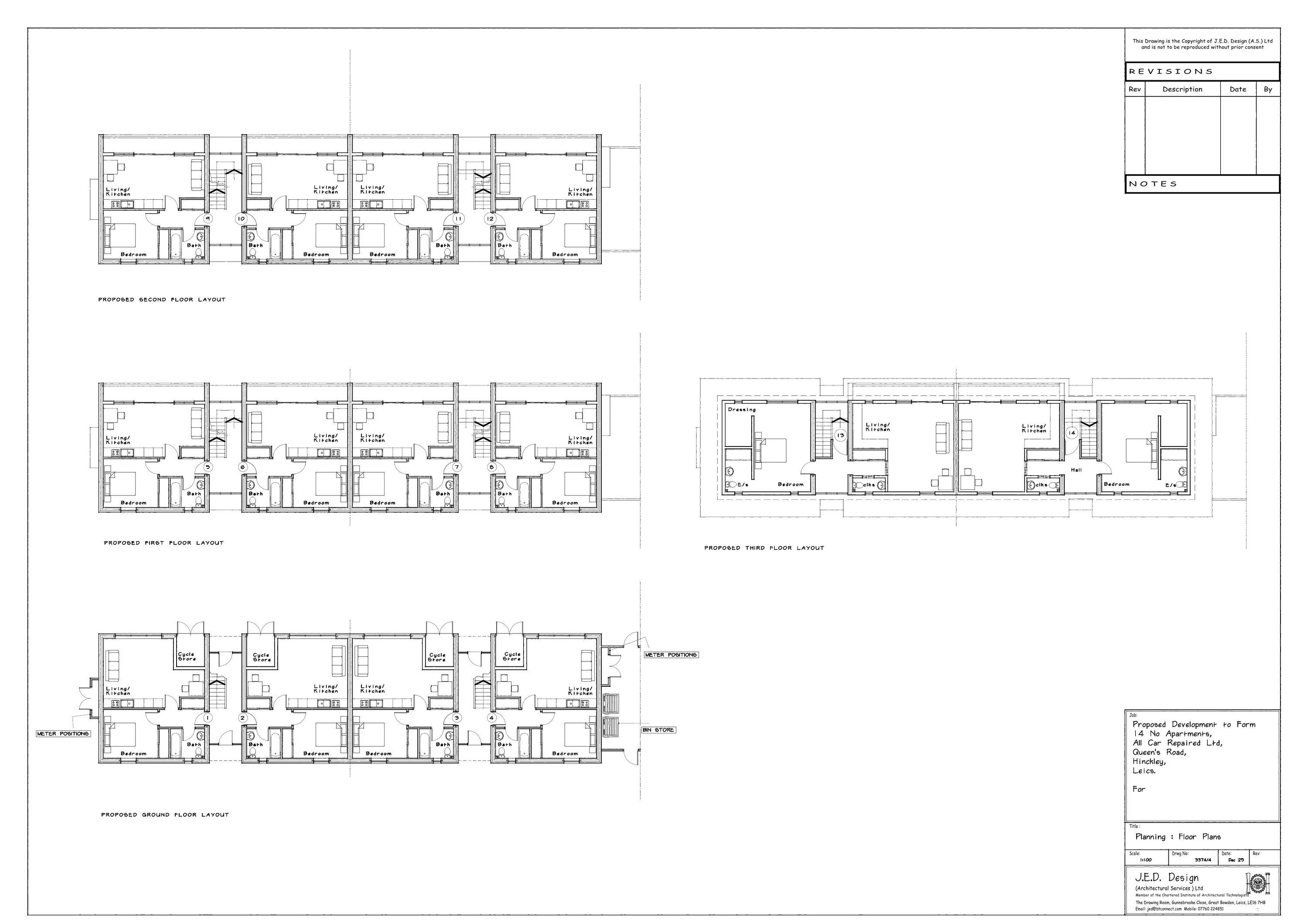
14

Full Proposal

Demolition of existing garage and erection of 14 self contained flats with ancillary car parking and landscaping

Documents

Advert
Public Notice
Not archived · Council Link
Application Form
1APP Public Form
Not archived · Council Link
Bat Survey
Technical Assessments/Appraisals/Surveys
Not archived · Council Link
Design and Access, Planning Statement
Design Statement
Not archived · Council Link
Environmental Report
Technical Assessments/Appraisals/Surveys
Not archived · Council Link
Existing Site Layout, Drg No. 3374/2
Development Control Plans
Not archived · Council Link
HBBC Drainage
Consultation Response
Not archived · Council Link
HBBC ES Pollution 1.
Consultation Response
Not archived · Council Link
Highways and Car Parking Statement
Technical Assessments/Appraisals/Surveys
Not archived · Council Link
LCC Archaeology
Consultation Response
Not archived · Council Link
LCC Ecology
Consultation Response
Not archived · Council Link
LCC HIGHWAYS
Consultation Response
Not archived · Council Link
Parking provision
Technical Assessments/Appraisals/Surveys
Not archived · Council Link
Proposed Elevations, Drg No. 3374/5
Development Control Plans
Not archived · Council Link
Development Control Plans
Archived · Council Link
Proposed Site Layout, Drg No. 3374/3
Development Control Plans
Not archived · Council Link
Site Location, Block Plan,Drg No. 3374/1
Site Location Plans
Not archived · Council Link
Waste Management Statement
Technical Assessments/Appraisals/Surveys
Not archived · Council Link

Take Action

Make your voice heard. Authorities need to hear from people who support new homes.

✉️ Write Email in Support View on Council Portal