← Back to Horsham District Council

Status

Decided New housing
Received
13 Jan 2025
New dwellings
1

Summary

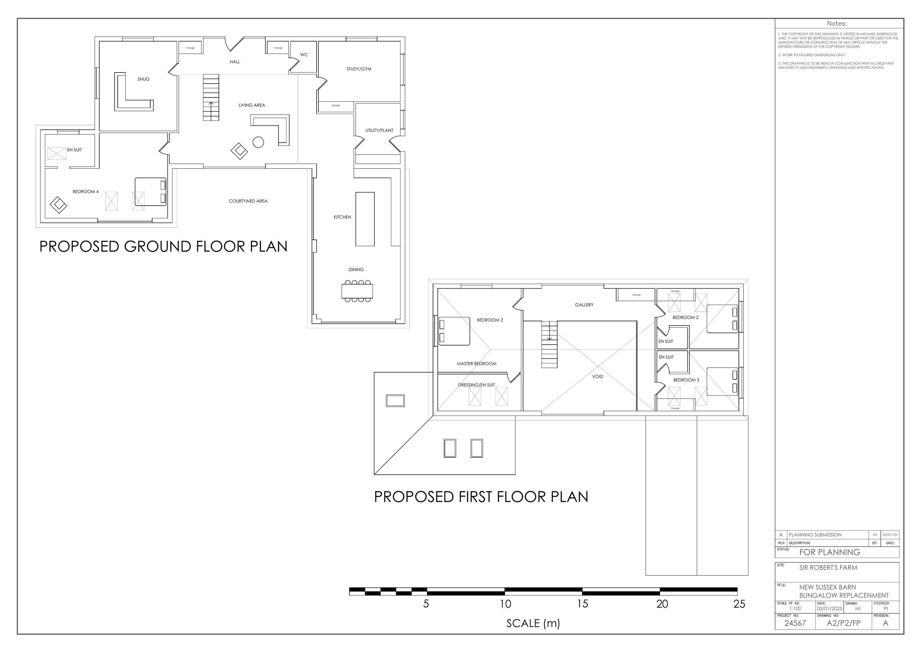
Demolish existing dwelling and erect replacement four-bedroom barn-style house with detached garage.

Full Proposal

Demolition of existing dwelling, change of use of land from paddock to residential curtilage, and erection of a replacement four-bed barn style dwelling with detached garage.

Documents

Additional comments regarding fire safety
Correspondence
Not archived · Council Link
APPLICATION FORM
Application form
Not archived · Council Link
Arboricultural Impact Assessment and Method Statement (Duckworths Arboriculture Ltd, 14 April 2025)
Supporting statement
Not archived · Council Link
ARBORICULTURAL RESPONSE
Consultation Response
Not archived · Council Link
ARBORICULTURE RESPONSE
Consultation Response
Not archived · Council Link
Bat Preliminary Roost Assessment
Supporting statement
Not archived · Council Link
Bat Preliminary Roost Assessment (Arun Ecology, April 2025)
Supporting statement
Not archived · Council Link
BLOCK PLAN
Latest plan
Not archived · Council Link
CIL FORM
CIL Additional Info Form
Not archived · Council Link
Latest plan
Archived · Council Link
Decision Notice
Decision notice
Not archived · Council Link
DESIGN AND ACCESS STATEMENT
Design and Access Statement
Not archived · Council Link
ECOLOGY
Consultation Response
Not archived · Council Link
ECOLOGY RESPONSE
Consultation Response
Not archived · Council Link
ECOLOGY RESPONSE
Consultation Response
Not archived · Council Link
ECOLOGY RESPONSE
Consultation Response
Not archived · Council Link
ECOLOGY RESPONSE
Consultation Response
Not archived · Council Link
EMAIL FROM APPLICANT RE FIRE ACCESS
Correspondence
Not archived · Council Link
ENVH COMMENTS AND PRE-COMMENCEMENT CONDITIONS AGREED
Consultation Response
Not archived · Council Link
ENVH CONSULTATION RESPONSE - NO FURTHER COMMENTS
Consultation Response
Not archived · Council Link
ENVH RE-CONSULT REQUEST
Correspondence
Not archived · Council Link
ENVIRONMENTAL HEALTH - NEEDS TO COMMENT STILL
Correspondence
Not archived · Council Link
ENVIRONMENTAL HEALTH RESPONSE
Consultation Response
Not archived · Council Link
ENVIRONMENTAL HEALTH RESPONSE
Consultation Response
Not archived · Council Link
ENVRONMENTAL HEALTH RESPONSE
Consultation Response
Not archived · Council Link
EXISTING ELEVATIONS: A2/E1/E, REV A
Latest plan
Not archived · Council Link
EXISTING FLOOR PLAN: A2/E2/FP, REV A
Latest plan
Not archived · Council Link
FIRE SAFETY CONSULTATION RESPONSE
Consultation Response
Not archived · Council Link
HDC - CONSERVATION OFFICER
Consultation Response
Not archived · Council Link
HDC ARBORICULTURAL RESPONSE
Consultation Response
Not archived · Council Link
HDC LANDSCAPE RESPONSE
Consultation Response
Not archived · Council Link
HDC LANDSCAPE RESPONSE
Consultation Response
Not archived · Council Link
IMAGES OF ACCESS POINT
Photograph - Applicant Provided
Not archived · Council Link
IMAGES OF ACCESS POINT
Photograph - Applicant Provided
Not archived · Council Link
IMAGES OF ACCESS POINT
Photograph - Applicant Provided
Not archived · Council Link
IMAGES OF ACCESS POINT
Photograph - Applicant Provided
Not archived · Council Link
IMAGES OF ACCESS POINT
Photograph - Applicant Provided
Not archived · Council Link
IMPACT PLAN
Supporting statement
Not archived · Council Link
LOCAL PROPERTIES
Supporting statement
Not archived · Council Link
LOCATION PLAN
Superseded plan
Not archived · Council Link
LOCATION PLAN
Superseded plan
Not archived · Council Link
LOCATION PLAN EXISTING
Latest plan
Not archived · Council Link
NATURE SPACE CORRESPONDENCE
Correspondence
Not archived · Council Link
NATURE SPACE EMAIL CHASE RESPONSE
Correspondence
Not archived · Council Link
NATURE SPACE RESPONSE
Consultation Response
Not archived · Council Link
NATURESPACE BEST PRACTICE PRINCIPLES
Supporting statement
Not archived · Council Link
NATURESPACE RESPONSE
Consultation Response
Not archived · Council Link
NATURESPACE RESPONSE
Consultation Response
Not archived · Council Link
NEW LOCATION PLAN
Latest plan
Not archived · Council Link
NSP CERTIFICATE
Supporting statement
Not archived · Council Link
OFFICER REPORT
Delegated report
Not archived · Council Link
PARISH COUNCIL RESPONSE
Consultation Response
Not archived · Council Link
PHOTOS OF EXISTING BUILDINGS AND ACCESS
Supporting statement
Not archived · Council Link
Preliminary Ecological Appraisal (Phlorum, 15/07/2022)
Supporting statement
Not archived · Council Link
PROPOSED ELEVATIONS: A2/P2/E, REV A
Latest plan
Not archived · Council Link
PROPOSED GARAGE ELEVATIONS: A2/G3/E, REV A
Latest plan
Not archived · Council Link
PROPOSED GARAGE FLOOR PLAN: A2/G3/FP, REV A
Latest plan
Not archived · Council Link
Superseded plan
Archived · Council Link
Site Notice
Site Notice
Not archived · Council Link
SOUTHERN WATER
Consultation Response
Not archived · Council Link
Tree Protection Plan ref: SIR ROBERTS FARM TPP 06670 2025 0.2
Latest plan
Not archived · Council Link
WATER NEUTRALITY STATEMENT
Supporting statement
Not archived · Council Link
WEST SUSSEX FIRE & RESCUE RESPONSE
Consultation Response
Not archived · Council Link
WSCC - HIGHWAYS
Consultation Response
Not archived · Council Link

Take Action

Make your voice heard. Authorities need to hear from people who support new homes.

✉️ Write Email in Support View on Council Portal