← Back to Horsham District Council

Status

Registered Commercial
Received
09 Jul 2025
New dwellings
0

Summary

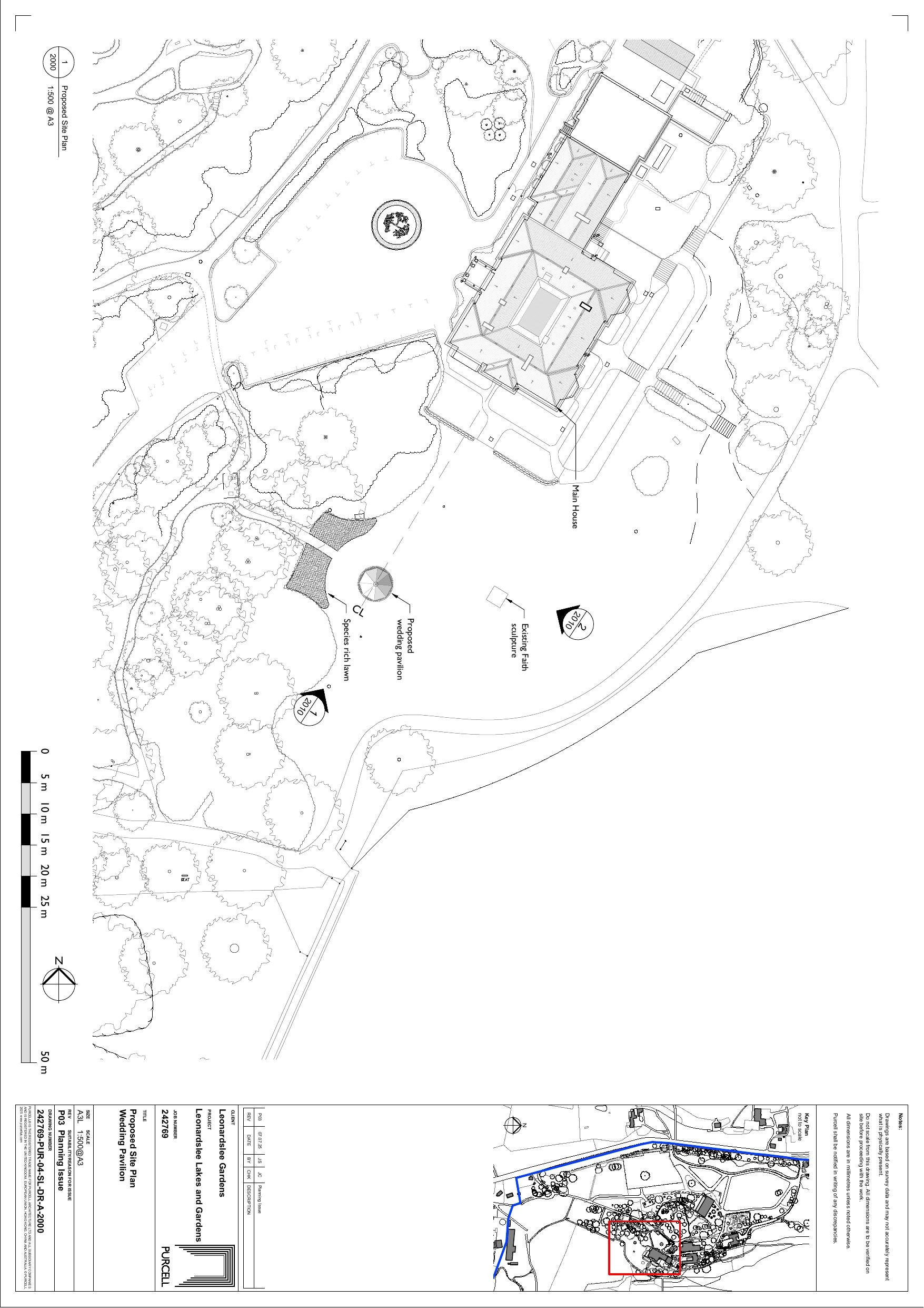
Extensions, re-roofing and works to provide ticket area, café, guest and staff accommodation, pavilion and landscaping.

Full Proposal

Extension to the visitor entrance building to house a new ticket sales area and café; Infil-ling roof to the former generator block courtyard, re-roofing of the Alpine House and in-ternal/external reconfigurations and link extension; Single storey winter garden conserv-atory to the Stable Block; Terrace extension to the east and internal/ external reconfigu-rations; Change of use from redundant staff offices and staff accommodation within the stable block to guest accommodation including extension to Honey Cottage; Change of use to the partial first floor of the Red House to staff accommodation; Small WC exten-sion, reinstated chimney stack, and roof alterations to the Engine House; Lightweight wedding pavilion to the lawn, south of Leonardslee House; Landscaping changes in-cluding to the forecourt of Leonardslee House.

Documents

10 ACACIA AVENUE WORTHING
Representation letter
Not archived · Council Link
10 BLACKBRIDGE LANE HORSHAM
Representation letter
Not archived · Council Link
113 RUSHAMS ROAD HORSHAM
Representation letter
Not archived · Council Link
123 THE WELKIN LINDFIELD
Representation letter
Not archived · Council Link
128 NEW STREET HORSHAM
Representation letter
Not archived · Council Link
14 IRWIN DRIVE HORSHAM
Representation letter
Not archived · Council Link
14 KNAPP DRIVE SHERMANBURY
Representation letter
Not archived · Council Link
17 ARTHUR ROAD HORSHAM
Representation letter
Not archived · Council Link
18 BUNTING CLOSE HORSHAM
Representation letter
Not archived · Council Link
18 SERRIN WAY HORSHAM
Representation letter
Not archived · Council Link
19 CURZON AVENUE HORSHAM
Representation letter
Not archived · Council Link
2 HERRING COTTAGES WARNINGLID
Representation letter
Not archived · Council Link
2 OLD DENNE GARDENS HORSHAM
Representation letter
Not archived · Council Link
20 BARROWFIELD CUCKFIELD
Representation letter
Not archived · Council Link
20 CALEDON AVENUE FELPHAM BOGNOR REGIS
Representation letter
Not archived · Council Link
20 HAVENGATE HORSHAM
Representation letter
Not archived · Council Link
20 HOWARD ROAD HORSHAM
Representation letter
Not archived · Council Link
21 AMBERLEY ROAD HORSHAM
Representation letter
Not archived · Council Link
22 SPENCERS ROAD HORSHAM
Representation letter
Not archived · Council Link
22 SPRINGFIELD PARK ROAD HORSHAM
Representation letter
Not archived · Council Link
227 MALDEN ROAD CHEAM SURREY
Representation letter
Not archived · Council Link
3 SHERMANBURY GRANGE BRIGHTON ROAD HORSHAM
Representation letter
Not archived · Council Link
31 GROVE ROAD BURGESS HILL
Representation letter
Not archived · Council Link
31 NEWBRIDGE CLOSE BROADBRIDGE HEATH
Representation letter
Not archived · Council Link
32 FARHALLS CRESCENT
Representation letter
Not archived · Council Link
32 WHEATSHEAF CLOSE HORSHAM
Representation letter
Not archived · Council Link
35 BLUEBELL CLOSE HORSHAM
Representation letter
Not archived · Council Link
35 BRAMBLING ROAD HORSHAM
Representation letter
Not archived · Council Link
371 FRANKLANDS VILLAGE HAYWARDS HEATH
Representation letter
Not archived · Council Link
38 GRAVELLY CRESCENT LANCING
Representation letter
Not archived · Council Link
4 CHURCHILL WAY HORSHAM
Representation letter
Not archived · Council Link
4 SPRUCE PLACE EAST GRINSTEAD
Representation letter
Not archived · Council Link
4 SWALLOWS GATE CHURCH ROAD MANNINGS HEATH
Representation letter
Not archived · Council Link
41 HAMPDEN ROAD BRIGHTON
Representation letter
Not archived · Council Link
43 GUILDFORD ROAD HORSHAM
Representation letter
Not archived · Council Link
45 RYECROFT MEADOW MANNINGS HEATH
Representation letter
Not archived · Council Link
53 APPLEDORE GARDENS LINDFIELD
Representation letter
Not archived · Council Link
57 WINDSOR CLOSE SOUTHWATER
Representation letter
Not archived · Council Link
58 EWART STREET BRIGHTON
Representation letter
Not archived · Council Link
6 DOWNSVIEW AVENUE STORRINGTON
Representation letter
Not archived · Council Link
6 FOREST CLOSE MANNINGS HEATH
Representation letter
Not archived · Council Link
7 HUDSON WAY HENFIELD
Representation letter
Not archived · Council Link
7 REDGRAVE DRIVE CRAWLEY
Representation letter
Not archived · Council Link
71A POPLAR GROVE KENNINGTON OXFORD
Representation letter
Not archived · Council Link
71A POPLAR GROVE KENNINGTON OXFORD
Representation letter
Not archived · Council Link
9 BIRCH COURT FAYGATE
Representation letter
Not archived · Council Link
9 DUNCTON CLOSE HAYWARDS HEATH
Representation letter
Not archived · Council Link
96 COMPTONS LANE HORSHAM
Representation letter
Not archived · Council Link
Agent response to Environmental Health Officer
Supporting statement
Not archived · Council Link
Agent Response to Fire Officer Comments
Supporting statement
Not archived · Council Link
Applicants response to Ecology Officer
Supporting statement
Not archived · Council Link
Application form
Application form
Not archived · Council Link
Arboricultural Impact Assessment and Method Statement - Visitor entrance building extension: 10526, REV 1.0
Supporting statement
Not archived · Council Link
Arboricultural Impact Assessment and Method Statement, Former Generator Block: 10526, REV 2.0
Supporting statement
Not archived · Council Link
Arboricultural Impact Assessment and Method Statement: 10526, REV 1.0
Supporting statement
Not archived · Council Link
Arboricultural Impact Assessment and Method Statement: 10526, REV 2.0
Supporting statement
Not archived · Council Link
Arboricultural Officer
Consultation Response
Not archived · Council Link
ARCHAEOLOGY RESPONSE
Consultation Response
Not archived · Council Link
Bat Dusk Emergence Survey Report: 9105, REV 1.0
Supporting statement
Not archived · Council Link
Bat Dusk Emergence Survey Report: 9105, REV 1.0
Supporting statement
Not archived · Council Link
BIODIVERSITY GAIN PLAN
Supporting statement
Not archived · Council Link
Biodiversity Gain Plan (Outline) : 9105.0, REV 1.0
Supporting statement
Not archived · Council Link
BNG Metric
Supporting statement
Not archived · Council Link
BNG Metric
Supporting statement
Not archived · Council Link
BNG Metric Calculation Tool (pfd)
Superseded plan
Not archived · Council Link
BNG Metric Calculation Tool (xls)
Superseded plan
Not archived · Council Link
CIL
CIL Additional Info Form
Not archived · Council Link
Conservation Management Plan Addendum: REV 2.0
Supporting statement
Not archived · Council Link
Conservation Management Plan Part 1 of 2
Supporting statement
Not archived · Council Link
Conservation Management Plan Part 2 of 2
Supporting statement
Not archived · Council Link
Conservation Officer
Consultation Response
Not archived · Council Link
DAIRY COTTAGE CYDER FARM HOUSE BRIGHTON ROAD HORSHAM
Representation letter
Not archived · Council Link
DALROWEN JOLESFIELD PARTRIDGE GREEN
Representation letter
Not archived · Council Link
Demolition First & Second Floor Plan Stable Block - 242769-PUR-01-01-DR-A-1502
Latest plan
Not archived · Council Link
Demolition Ground Floor Plan - Stable Block: 242769-PUR-01-00-DR-A-1501
Latest plan
Not archived · Council Link
Demolition Ground Floor Plan Engine House: 242769-PUR-02-00-DR-A-1501
Latest plan
Not archived · Council Link
Demolition Ground Floor Plan Former Generator Block: 242769-PUR-05-00-DR-A-1501
Latest plan
Not archived · Council Link
Demolition North & East Elevations Engine House: 242769-PUR-02-ZZ-DR-A-1511
Latest plan
Not archived · Council Link
Demolition North & East Elevations Former Generator Block: 242769-PUR-05-ZZ-DR-A-1511
Latest plan
Not archived · Council Link
Demolition North & East Elevations Stable Block: 242769-PUR-01-ZZ-DR-A-1511
Latest plan
Not archived · Council Link
Demolition Roof Plan - Stable Block: 242769-PUR-01-RF-DR-A-1503
Latest plan
Not archived · Council Link
Demolition Roof Plan Engine House: 242769-PUR-02-RF-DR-A-1502
Latest plan
Not archived · Council Link
Demolition Sections AA & BB Engine House: 242769-PUR-02-ZZ-DR-A-1521
Latest plan
Not archived · Council Link
Demolition Sections AA & BB Former Generator Block: 242769-PUR-05-ZZ-DR-A-1521
Latest plan
Not archived · Council Link
Demolition Sections AA, BB, & CC Stable Block: 242769-PUR-01-ZZ-DR-A-1521
Latest plan
Not archived · Council Link
Demolition Sections CC & DD Former Generator Block: 242769-PUR-05-ZZ-DR-A-1522
Latest plan
Not archived · Council Link
Demolition Sections DD, EE & FF Stable Block: 242769-PUR-01-ZZ-DR-A-1522
Latest plan
Not archived · Council Link
Demolition South & East Elevations Engine House: 242769-PUR-02-ZZ-DR-A-1512
Latest plan
Not archived · Council Link
Demolition South & West Elevation Stable Block: 242769-PUR-01-ZZ-DR-A-1512
Latest plan
Not archived · Council Link
Design and Access Statement - Section 1 - 3
Superseded plan
Not archived · Council Link
Design and Access Statement - Section 4
Superseded plan
Not archived · Council Link
Design and Access Statement - Section 5 part 1 of 3
Superseded plan
Not archived · Council Link
Design and Access Statement - Section 5 part 2 of 3
Superseded plan
Not archived · Council Link
Design and Access Statement - Section 5 part 3 of 3
Superseded plan
Not archived · Council Link
Design and Access Statement - Section 6 part 1 of 4
Superseded plan
Not archived · Council Link
Design and Access Statement - Section 6 part 2 of 4
Superseded plan
Not archived · Council Link
Design and Access Statement - Section 6 part 3 of 4
Superseded plan
Not archived · Council Link
Design and Access Statement - Section 6 part 4 of 4
Superseded plan
Not archived · Council Link
Design and Access Statement - Section 7 part 1 of 2
Superseded plan
Not archived · Council Link
Design and Access Statement - Section 7 part 2 of 2
Superseded plan
Not archived · Council Link
Design and Access Statement - Section 8
Superseded plan
Not archived · Council Link
DRAFT HABITAT MANAGEMENT AND MONITORING PLAN: 9105.1
Supporting statement
Not archived · Council Link
ECOLOGY RESPONSE
Consultation Response
Not archived · Council Link
ECOLOGY RESPONSE
Consultation Response
Not archived · Council Link
ECOLOGY RESPONSE
Consultation Response
Not archived · Council Link
ENVIRONEMENT AGENCY RESPONSE
Consultation Response
Not archived · Council Link
ENVIRONMENT AGENCY RESPONSE
Consultation Response
Not archived · Council Link
Environmental Health
Consultation Response
Not archived · Council Link
Environmental Health
Consultation Response
Not archived · Council Link
Existing Elevations The Glasshouse - Retail Block: 242769-PUR-08-ZZ-DR-A-1011
Latest plan
Not archived · Council Link
Existing First & Second Floor Plan Stable Block: 242769-PUR-01-01-DR-A-1002
Latest plan
Not archived · Council Link
Existing First Floor Plan Red House: 242769-PUR-06-01-DR-A-1002
Latest plan
Not archived · Council Link
Existing Ground Floor Plan - Stable Block: 242769-PUR-01-00-DR-A-1001
Latest plan
Not archived · Council Link
Existing Ground Floor Plan Engine House: 242769-PUR-02-00-DR-A-1001
Latest plan
Not archived · Council Link
Existing Ground Floor Plan Former Generator Block: 242769-PUR-05-00-DR-A-1001
Latest plan
Not archived · Council Link
Existing Ground Floor Plan Red House: 242769-PUR-06-00-DR-A-1001
Latest plan
Not archived · Council Link
Existing Ground Floor Plan The Glasshouse - Retail Block: 242769-PUR-08-00-DR-A-1001
Latest plan
Not archived · Council Link
Existing North & East Elevations Former Generator Block: 242769-PUR-05-ZZ-DR-A-1011
Latest plan
Not archived · Council Link
Existing North & East Elevations Stable Block: 242769-PUR-01-ZZ-DR-A-1011
Latest plan
Not archived · Council Link
Existing North & West Elevations Engine House: 242769-PUR-02-ZZ-DR-A-1011
Latest plan
Not archived · Council Link
Existing Roof Plan - Stable Block: 242769-PUR-01-RF-DR-A-1003
Latest plan
Not archived · Council Link
Existing Roof Plan Red House: 242769-PUR-06-RF-DR-A-1003
Latest plan
Not archived · Council Link
Existing Roof Plan Roof Plan: 242769-PUR-02-RF-DR-A-1002
Latest plan
Not archived · Council Link
Existing Roof Plan The Glasshouse - Retail Block: 242769-PUR-08-00-DR-A-1002
Latest plan
Not archived · Council Link
Existing Roof Plan The Glasshouse - Retail Block: 242769-PUR-08-00-DR-A-1002
Latest plan
Not archived · Council Link
Existing Sections AA & BB Engine House: 242769-PUR-02-ZZ-DR-A-1021
Latest plan
Not archived · Council Link
Existing Sections AA & BB Former Generator Block: 242769-PUR-05-ZZ-DR-A-1021
Latest plan
Not archived · Council Link
Existing Sections AA, BB, & CC Stable Block: 242769-PUR-01-ZZ-DR-A-1021
Latest plan
Not archived · Council Link
Existing Sections CC & DD Former Generator Block: 242769-PUR-05-ZZ-DR-A-1022
Latest plan
Not archived · Council Link
Existing Sections DD, EE & FF - Stable Block: 242769-PUR-01-ZZ-DR-A-1022
Latest plan
Not archived · Council Link
Existing Site Fire Appliance Access 242769-PUR-00-SL-DR-A-6100
Latest plan
Not archived · Council Link
Existing South & East Elevations Engine House: 242769-PUR-02-ZZ-DR-A-1012
Latest plan
Not archived · Council Link
Existing South & West Elevations Former Generator Block: 242769-PUR-05-ZZ-DR-A-1012
Latest plan
Not archived · Council Link
Existing South & West Elevations Former Generator Block: 242769-PUR-05-ZZ-DR-A-1512
Latest plan
Not archived · Council Link
Existing South & West Elevations Stable Block: 242769-PUR-01-ZZ-DR-A-1012
Latest plan
Not archived · Council Link
Existing South and East Elevations Wedding Pavilion: 242769-PUR-04-ZZ-DR-A-1010
Latest plan
Not archived · Council Link
FAIRHAVEN COWFOLD
Representation letter
Not archived · Council Link
FIRE AND RESCUE RESPONSE
Consultation Response
Not archived · Council Link
Fire Safety Engineering Consideration
Supporting statement
Not archived · Council Link
Fire Tender Vehicle Tracking 13294/2200 P1
Supporting statement
Not archived · Council Link
FLAT 4 17 GOLDSTONE CRESCENT
Representation letter
Not archived · Council Link
FLAT 7 GODMANS COURT HENFIELD ROAD COWFOLD
Representation letter
Not archived · Council Link
FLAT 9 EMBASSY COURT SHOTFIELD WALLINGTON SURREY
Representation letter
Not archived · Council Link
FLOOD RISK ASSESSMENT & DRAINAGE STARTEGY PART 1
Supporting statement
Not archived · Council Link
FLOOD RISK ASSESSMENT & DRAINAGE STARTEGY PART 2
Supporting statement
Not archived · Council Link
FLOOD RISK ASSESSMENT & DRAINAGE STARTEGY PART 3
Supporting statement
Not archived · Council Link
FLOOD RISK ASSESSMENT & DRAINAGE STARTEGY PART 4
Supporting statement
Not archived · Council Link
FLOOD RISK ASSESSMENT & DRAINAGE STARTEGY PART 5
Supporting statement
Not archived · Council Link
FLOOD RISK ASSESSMENT AND DRAINAGE STRATEGY PART 1
Superseded plan
Not archived · Council Link
FLOOD RISK ASSESSMENT AND DRAINAGE STRATEGY PART 5
Superseded plan
Not archived · Council Link
Flood Risk Assessment and Drainage Strategy Part Four
Superseded plan
Not archived · Council Link
Flood Risk Assessment and Drainage Strategy Part Three
Superseded plan
Not archived · Council Link
Flood Risk Assessment and Drainage Strategy Part Two
Superseded plan
Not archived · Council Link
FRA AND DRAINAGE STRATEGY PART 1
Superseded plan
Not archived · Council Link
FRA and Drainage Strategy Part 2
Superseded plan
Not archived · Council Link
FRA and Drainage Strategy Part 3
Superseded plan
Not archived · Council Link
FRA and Drainage Strategy Part 4
Superseded plan
Not archived · Council Link
FRA AND DRAINAGE STRATEGY PART 5
Superseded plan
Not archived · Council Link
Garden Planting Strategy Part 4 12995-LUC-XX-XX-RP-L-0702-P06
Supporting statement
Not archived · Council Link
Garden Planting Strategy Part One 12995-LUC-XX-XX-RP-L-0702
Supporting statement
Not archived · Council Link
Garden Planting Strategy part Three 12995-LUC-XX-XX-RP-L-0702-P06
Supporting statement
Not archived · Council Link
Garden Planting Strategy Part Two 12995-LUC-XX-XX-RP-L-0702-P06
Supporting statement
Not archived · Council Link
GARDENS TRUST RESPONSE
Consultation Response
Not archived · Council Link
General Binding Rules Compliance Report: PC1121
Supporting statement
Not archived · Council Link
HDC ARBORICULTURAL RESPONSE
Consultation Response
Not archived · Council Link
HDC DRAINAGE RESPONSE
Consultation Response
Not archived · Council Link
HDC DRAINAGE RESPONSE
Consultation Response
Not archived · Council Link
HDC ECOLOGY RESPONSE
Consultation Response
Not archived · Council Link
HDC ECOLOGY RESPONSE
Consultation Response
Not archived · Council Link
HDC ENVIRONEMENTAL HEALTH RESPONSE
Consultation Response
Not archived · Council Link
HDC ENVIRONMENTAL HEALTH RESPONSE
Consultation Response
Not archived · Council Link
HDC LANDSCAPE ARCHITECT RESPONSE
Consultation Response
Not archived · Council Link
HDC Landscape Officer
Consultation Response
Not archived · Council Link
Heritage Impact Assessment, REV 04, Part 1 of 4
Supporting statement
Not archived · Council Link
Heritage Impact Assessment, REV 04, Part 2 of 4
Supporting statement
Not archived · Council Link
Heritage Impact Assessment, REV 04, Part 3 of 4
Supporting statement
Not archived · Council Link
Heritage Impact Assessment, REV 04, Part 4 of 4
Supporting statement
Not archived · Council Link
Highways
Consultation Response
Not archived · Council Link
Highways response email from agent
Supporting statement
Not archived · Council Link
HILL HOUSE BUNGALOW BRIGHTON ROAD LOWER BEEDING
Representation letter
Not archived · Council Link
HISTORIC ENGLAND RESPONSE
Consultation Response
Not archived · Council Link
HOLLYOAKS BLACKWATER LANE POUND HILL
Representation letter
Not archived · Council Link
Landscape and Visual Appraisal, REV 2
Supporting statement
Not archived · Council Link
LLFA RESPONSE
Consultation Response
Not archived · Council Link
NATURESPACE RESPONSE
Consultation Response
Not archived · Council Link
OLD MILL HOUSE COWFOLD ROAD BOLNEY
Representation letter
Not archived · Council Link
Outline Fire Strategy 242769-PUR-00-ZZ-DR-A-6001 P01
Latest plan
Not archived · Council Link
PARISH COUNCIL
Consultation Response
Not archived · Council Link
Part Eight
Design and Access Statement
Not archived · Council Link
Part Eighteen
Design and Access Statement
Not archived · Council Link
Part Eleven
Design and Access Statement
Not archived · Council Link
Part Fifteen
Design and Access Statement
Not archived · Council Link
Part Five
Design and Access Statement
Not archived · Council Link
Part Four
Design and Access Statement
Not archived · Council Link
Part Fourteen
Design and Access Statement
Not archived · Council Link
Part Nine
Design and Access Statement
Not archived · Council Link
Part Nineteen
Design and Access Statement
Not archived · Council Link
Part One
Design and Access Statement
Not archived · Council Link
Part Seven
Design and Access Statement
Not archived · Council Link
Part Seventeen
Design and Access Statement
Not archived · Council Link
Part Six
Design and Access Statement
Not archived · Council Link
Part Six
Superseded plan
Not archived · Council Link
Part Sixteen
Design and Access Statement
Not archived · Council Link
Part Ten
Design and Access Statement
Not archived · Council Link
Part Thirteen
Design and Access Statement
Not archived · Council Link
Part Three
Design and Access Statement
Not archived · Council Link
Part Three
Superseded plan
Not archived · Council Link
Part Twelve
Design and Access Statement
Not archived · Council Link
Part Two
Design and Access Statement
Not archived · Council Link
PLANNING POLICY
Consultation Response
Not archived · Council Link
Planning Statement
Supporting statement
Not archived · Council Link
Planting Plan 12995-LUC-XX-XX-DR-L-0402 P02
Latest plan
Not archived · Council Link
Planting Plan: 12995-LUC-XX-XX-DR-L-0400, REV P03
Superseded plan
Not archived · Council Link
PRECAITIONARY WPRKING METHOD STATEMENT
Supporting statement
Not archived · Council Link
Precautionary Working Method Statement
Supporting statement
Not archived · Council Link
PRELIMINARY ECOLOGICAL APPRAISAL
Supporting statement
Not archived · Council Link
Preliminary Ecological Appraisal - The Bandstand or Wedding Pavilion: 9105, REV 1.0
Supporting statement
Not archived · Council Link
Preliminary Ecological Appraisal and Preliminary Roost Assessment - Engine House: 9105, REV 1.0
Supporting statement
Not archived · Council Link
Preliminary Ecological Appraisal and Preliminary Roost Assessment - Former Generator Block: 9105, REV 1.0
Supporting statement
Not archived · Council Link
Preliminary Ecological Appraisal and Preliminary Roost Assessment - Stable Block: 9105, REV 1.0
Supporting statement
Not archived · Council Link
Preliminary Ecological Appraisal and Preliminary Roost Assessment: 9105, REV 1.0
Supporting statement
Not archived · Council Link
Proposed Base and Roof Plans Wedding Pavilion: 242769-PUR-04-00-DR-A-2001
Latest plan
Not archived · Council Link
Proposed Elevation & Section Wedding Pavilion: 242769-PUR-04-ZZ-DR-A-2011
Latest plan
Not archived · Council Link
Proposed Elevations The Glasshouse - Retail Block: 242769-PUR-08-ZZ-DR-A-2011
Latest plan
Not archived · Council Link
Proposed Fire Fighting Distance Plan Stable Block- 242769-PUR-01-00-DR-A-6001
Supporting statement
Not archived · Council Link
Proposed Fire Fighting Distance Plan Former Generator Block- 242769-PUR-05-00-DR-A-6001
Supporting statement
Not archived · Council Link
Proposed Fire Fighting Distance Plan Former Generator Block- 242769-PUR-05-00-DR-A-6001
Supporting statement
Not archived · Council Link
Proposed Fire Fighting Distance Plan Stable Block- 242769-PUR-01-00-DR-A-6001
Latest plan
Not archived · Council Link
Proposed Fire Fighting Distance Plan The Glasshouse - Retail Block 242769-PUR-08-00-DR-A-6001
Latest plan
Not archived · Council Link
Proposed First & Second Floor Plan Stable Block: 242769-PUR-01-01-DR-A-2002
Latest plan
Not archived · Council Link
Proposed First Floor Plan Red House: 242769-PUR-06-01-DR-A-2002
Latest plan
Not archived · Council Link
Proposed Ground Floor Plan - Stable Block: 242769-PUR-01-00-DR-A-2001
Latest plan
Not archived · Council Link
Proposed Ground Floor Plan Former Generator Block: 242769-PUR-05-00-DR-A-2001
Latest plan
Not archived · Council Link
Proposed Ground Floor Plan Red House: 242769-PUR-06-00-DR-A-2001
Latest plan
Not archived · Council Link
Proposed Ground Floor Plan The Engine House: 242769-PUR-02-00-DR-A-2001
Latest plan
Not archived · Council Link
Proposed Ground Floor Plan The Glasshouse - Retail Block: 242769-PUR-08-00-DR-A-2001
Latest plan
Not archived · Council Link
Proposed North & East Elevations Engine House: 242769-PUR-02-ZZ-DR-A-2011
Latest plan
Not archived · Council Link
Proposed North & East Elevations Former Generator Block: 242769-PUR-05-ZZ-DR-A-2011
Latest plan
Not archived · Council Link
Proposed North & East Elevations Stable Block: 242769-PUR-01-ZZ-DR-A-2011
Latest plan
Not archived · Council Link
Proposed Roof Plan Engine House: 242769-PUR-02-RF-DR-A-2002
Latest plan
Not archived · Council Link
Proposed Roof Plan Former Generator Block: 242769-PUR-05-RF-DR-A-2002
Latest plan
Not archived · Council Link
Proposed Roof Plan Stable Block: 242769-PUR-01-RF-DR-A-2003
Latest plan
Not archived · Council Link
Proposed Roof Plan The Glasshouse - Retail Block: 242769-PUR-08-00-DR-A-2002
Latest plan
Not archived · Council Link
Proposed Section FF Stable Block: 242769-PUR-01-ZZ-DR-A-2023
Latest plan
Not archived · Council Link
Proposed Sections AA & BB Engine House: 242769-PUR-02-ZZ-DR-A-2021
Latest plan
Not archived · Council Link
Proposed Sections AA, BB & CC Stable Block: 242769-PUR-01-ZZ-DR-A-2021
Latest plan
Not archived · Council Link
Proposed Sections DD, EE & FF Stable Block: 242769-PUR-01-ZZ-DR-A-2022
Latest plan
Not archived · Council Link
Proposed Sections Former Generator Block: 242769-PUR-05-ZZ-DR-A-2021
Latest plan
Not archived · Council Link
Proposed Sections Former Generator Block: 242769-PUR-05-ZZ-DR-A-2022
Latest plan
Not archived · Council Link
Proposed Site Fire Strategy Plan 242769-PUR-00-SL-DR-A-6200
Latest plan
Not archived · Council Link
Proposed Site Fire Strategy Plan- 242769-PUR-00-SL-DR-A-6200
Supporting statement
Not archived · Council Link
Proposed South & East Elevations Engine House: 242769-PUR-02-ZZ-DR-A-2012
Latest plan
Not archived · Council Link
Proposed South & East Elevations Wedding Pavilion: 242769-PUR-04-ZZ-DR-A-2010
Latest plan
Not archived · Council Link
Proposed South & West Elevation Stable Block: 242769-PUR-01-ZZ-DR-A-2012
Latest plan
Not archived · Council Link
Proposed South & West Elevations Former Generator Block: 242769-PUR-05-ZZ-DR-A-2012
Latest plan
Not archived · Council Link
Proposed Wedding Pavilion Plan 242769-PUR-04-SL-DR-A-2000
Latest plan
Not archived · Council Link
Public Realm Planting and Landscape Strategy report: 12995-LUC-XX-XX-RP-L-0702, REV 5.0 Part 1 of 4
Supporting statement
Not archived · Council Link
Public Realm Planting and Landscape Strategy report: 12995-LUC-XX-XX-RP-L-0702, REV 5.0 Part 2 of 4
Supporting statement
Not archived · Council Link
Public Realm Planting and Landscape Strategy report: 12995-LUC-XX-XX-RP-L-0702, REV 5.0 Part 3 of 4
Supporting statement
Not archived · Council Link
Public Realm Planting and Landscape Strategy report: 12995-LUC-XX-XX-RP-L-0702, REV 5.0 Part 4 of 4
Supporting statement
Not archived · Council Link
Response to EHO confirming L1 system
Supporting statement
Not archived · Council Link
Review of Engine House STP: PC1121-02
Supporting statement
Not archived · Council Link
Revised Travel Plan Statement
Superseded plan
Not archived · Council Link
Revised Travel Plan Statement ref. 13294
Supporting statement
Not archived · Council Link
Site Notice
Site Notice
Not archived · Council Link
Site Notice
Site Notice
Not archived · Council Link
Site Notice
Site Notice
Not archived · Council Link
Site Notice
Site Notice
Not archived · Council Link
Statement of Business Intent
Supporting statement
Not archived · Council Link
SUSSEX GARDEN TRUST RESPONSE
Consultation Response
Not archived · Council Link
SUSSEX GARDEN TRUST RESPONSE
Consultation Response
Not archived · Council Link
SUSSEX GARDENS TRUST RESPONSE
Consultation Response
Not archived · Council Link
THE STABLE BLOCK BRIGHTON ROAD LOWER BEEDING
Representation letter
Not archived · Council Link
Travel Plan Statement: 13294
Superseded plan
Not archived · Council Link
Trip generation
Supporting statement
Not archived · Council Link
UPDATED WATER NEUTRALITY REPORT
Supporting statement
Not archived · Council Link
Water Neutrality Report: 88/LeonardsleeGardens/WNA
Supporting statement
Not archived · Council Link
WSCC - FIRE AND RESCUE
Consultation Response
Not archived · Council Link
WSCC - HIGHWAYS
Consultation Response
Not archived · Council Link
WSCC HIGHWAYS RESPONSE
Consultation Response
Not archived · Council Link
WSCC HIGHWAYS RESPONSE
Consultation Response
Not archived · Council Link

Take Action

Make your voice heard. Authorities need to hear from people who support new homes.

✉️ Write Email in Support View on Council Portal