← Back to Horsham District Council
Status
Awaiting decision
New housing
Full Proposal
Erection of detached two-storey dwelling and creation of new vehicle access and driveway from Littleworth Lane.
Documents
Access summary visibility splay
Supporting statement
APPLICATION FORM
Application form
ARBORICULTURAL REPORT
Supporting statement
BUILDING REGULATIONS ENGLAND PART L COMPLIANCE REPORT:
Supporting statement
CERTIFICATE B
Certificate
CIL FORM
CIL Additional Info Form
COVERING LETTER
Correspondence
DAS APPENDIX NJA 1
Supporting statement
DAS APPENDIX NJA 2
Supporting statement
DAS APPENDIX NJA 3
Supporting statement
DAS APPENDIX NJA 4
Supporting statement
DAS APPENDIX NJA 5
Supporting statement
DESIGN AND ACCESS STATEMENT
Supporting statement
Ecology Consultation
Consultation Response
ECOLOGY RESPONSE
Consultation Response
GUIDE TO PHOTOGRAPHIC EVIDENCE
Supporting statement
HDC ARBORICULTURAL RESPONSE
Consultation Response
HDC CONSERVATION RESPONSE
Consultation Response
HERITAGE REPORT
Supporting statement
LANDSCAPE PLAN: SHT-3
Latest plan
LANDSCAPE SCHEME
Supporting statement
LOCATION PLAN: L01
Latest plan
OVERHEATING CALCULATOR
Supporting statement
PARISH COUNCIL RESPONSE
Consultation Response
Pictures and site notice
Site Notice
PRELIMINARY ECOLOGICAL APPRAISAL
Supporting statement
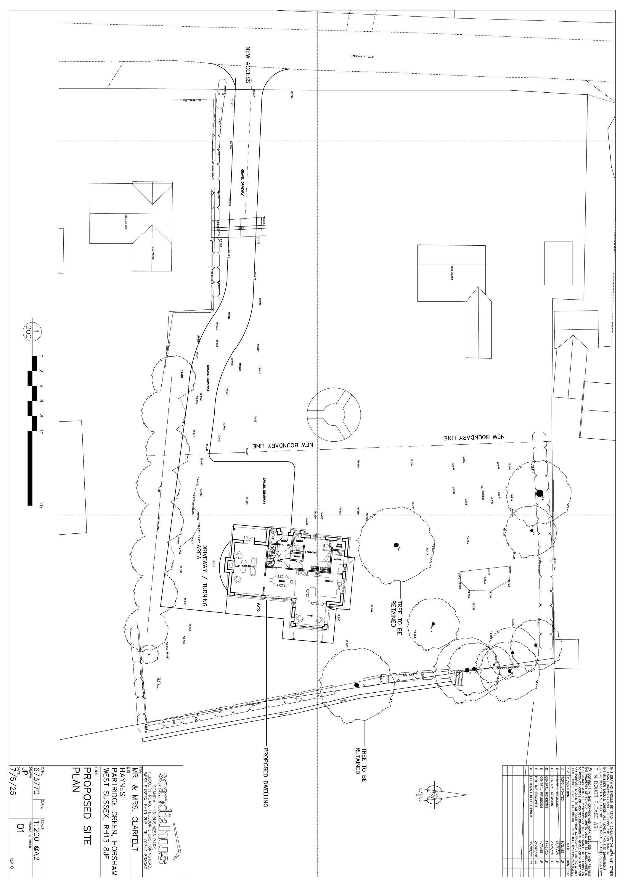
PROPOSED BLOCK PLAN: BP01, REV C
Latest plan
PROPOSED ELEVATIONS WEST, SOUTH, EAST, NORTH: 04, REV D
Latest plan
PROPOSED FIRST FLOOR: 03, REV C
Latest plan
PROPOSED GROUND FLOOR PLAN: 02, REV D
Latest plan
PROPOSED SECTIONS A-A, B-B, C-C: 05, REV E
Latest plan
PROPOSED SECTIONS D-D, E-E: 05A, REV E
Latest plan
ROOF PLAN: 03B, REV D
Latest plan
SAP CALCULATION
Supporting statement
SOUTHERN WATER RESPONSE
Consultation Response
SUMMARY INFORMATION
Supporting statement
TREE PROTECTION PLAN: SHT-2
Latest plan
TREE SURVEY PLAN: SHT-4
Latest plan
View associated documents
External Link
WATER CALCULATION
Supporting statement
WATER NEUTRALITY REPORT: C3708, REV P-
Supporting statement
WSCC HIGHWAYS RESPONSE
Consultation Response
WSCC HIGHWAYS RESPONSE
Consultation Response
WSCC HIGHWAYS RESPONSE
Consultation Response
Take Action
Make your voice heard. Authorities need to hear from people who support new homes.