← Back to Horsham District Council

Status

Registered Change of use
Received
05 Dec 2025
New dwellings
1

Full Proposal

Redesign and change of use from commercial to 1no. dwellinghouse, replacement of windows and doors and making good external finishes. (Full Application).

Documents

4 BROOK TERRACE TALBOT LANE HORSHAM
Representation letter
Not archived · Council Link
APPLICATION FORM
Application form
Not archived · Council Link
CIL FORM
CIL Additional Info Form
Not archived · Council Link
ECONOMIC DEVELOPMENT
Consultation Response
Not archived · Council Link
ENVIRONMENTAL HEALTH
Consultation Response
Not archived · Council Link
EXISTING BASEMENT AND GROUND FLOOR: 1.02
Latest plan
Not archived · Council Link
EXISTING FIRST AND SECOND FLOOR: 1.03
Latest plan
Not archived · Council Link
EXISTING FRONT AND REAR ELEVATIONS: 1.06
Latest plan
Not archived · Council Link
EXISTING ROOF: 1.04
Latest plan
Not archived · Council Link
EXISTING SIDE ELEVATION: 1.05
Latest plan
Not archived · Council Link
HERITAGE STATEMENT
Supporting statement
Not archived · Council Link
HURST HOUSE 12 MARKET SQUARE
Representation letter
Not archived · Council Link
LOCATION AND BLOCK PLAN: 3.03
Latest plan
Not archived · Council Link
NEIGHBOURHOUD COUNCIL RESPONSE
Consultation Response
Not archived · Council Link
NEIGHBOURHOUD COUNCIL RESPONSE
Consultation Response
Not archived · Council Link
PLANNING, DESIGN AND ACCESS STATEMENT
Supporting statement
Not archived · Council Link
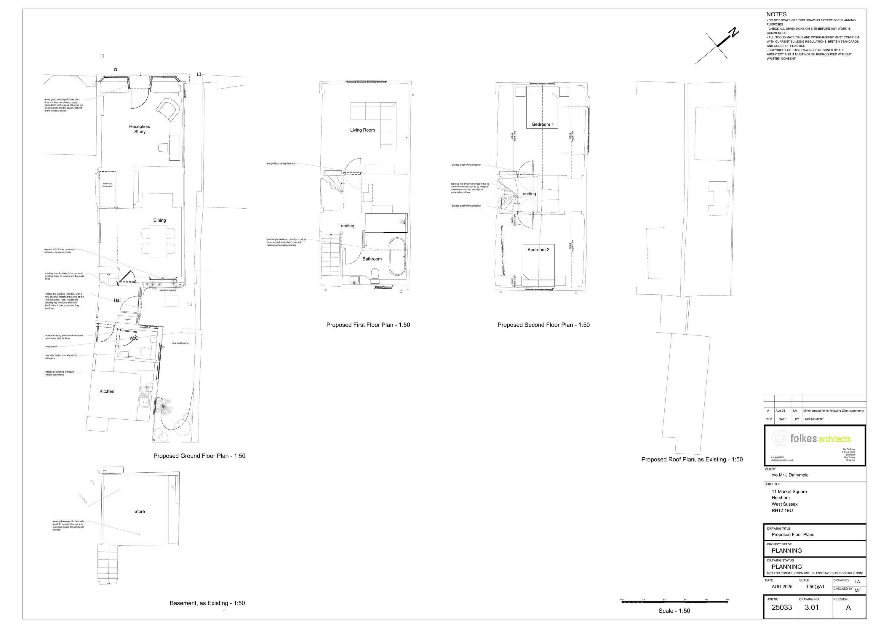
PROPOSED ELEVATIONS: 3.02, REV A
Latest plan
Not archived · Council Link
Superseded plan
Archived · Council Link
Site Notice
Site Notice
Not archived · Council Link
SUMMARY OF MARKETING
Supporting statement
Not archived · Council Link
TOPOGRAPHICAL SURVEY: 1.01
Latest plan
Not archived · Council Link
WSCC HIGHWAYS RESPONSE
Consultation Response
Not archived · Council Link

Take Action

Make your voice heard. Authorities need to hear from people who support new homes.

✉️ Write Email in Support View on Council Portal