← Back to Horsham District Council

Status

Registered New housing
Received
18 Dec 2025
New dwellings
4

Full Proposal

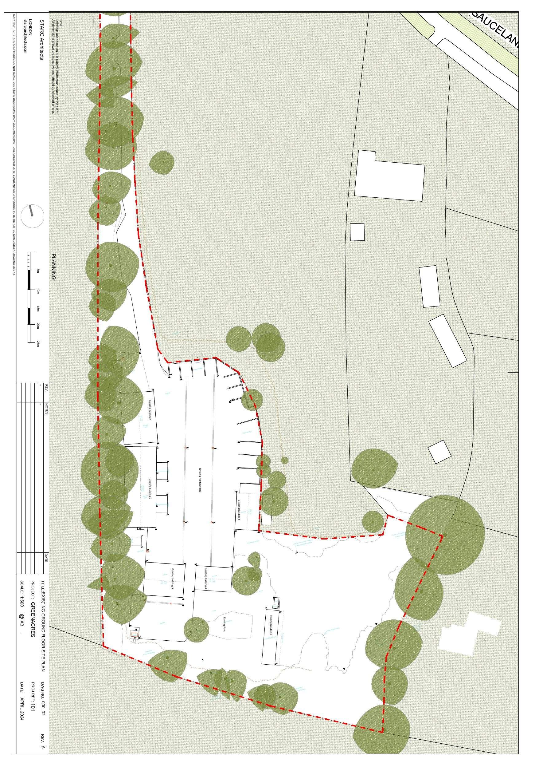
Demolition of existing buildings. Erection of four barn style detached dwellings with associated garages utilising existing access together with landscaping.

Documents

1 MADGELANDS COTTGES TROUT LANE BARNS GREEN
Representation letter
Not archived · Council Link
103b WESTERN ROAD HAYWARDS HEATH
Representation letter
Not archived · Council Link
20 STATION ROAD HORSHAM
Representation letter
Not archived · Council Link
48 FRIDAY STREET WARNHAM
Representation letter
Not archived · Council Link
5 TROUT LANE BARNS GREEN
Representation letter
Not archived · Council Link
70 LONGHURST AVENUE CRANLEIGH
Representation letter
Not archived · Council Link
APELONE BARNS GREEN
Representation letter
Not archived · Council Link
APELONE TWO MILE ASH ROAD
Representation letter
Not archived · Council Link
APELONE TWO MILE ASH ROAD BARNS GREEN
Representation letter
Not archived · Council Link
APPLICATION FORM
Application form
Not archived · Council Link
ARBORICULTURAL ASSESSMENT
Supporting statement
Not archived · Council Link
AREA SCHEDULE
Supporting statement
Not archived · Council Link
BAT SURVEY REPORT
Supporting statement
Not archived · Council Link
BNG BASELINE HABITAT PLAN
Latest plan
Not archived · Council Link
BNG CONDITIONS ASSESSMENT
Supporting statement
Not archived · Council Link
BNG GAIN PLAN
Supporting statement
Not archived · Council Link
BNG Metric
Supporting statement
Not archived · Council Link
BNG METRIC
Supporting statement
Not archived · Council Link
BNG PROPOSED HABITAT PLAN
Latest plan
Not archived · Council Link
CHESTNUT COTTAGE WATER LANE STORRINGTON
Representation letter
Not archived · Council Link
CIL FORM
CIL Additional Info Form
Not archived · Council Link
CONIES FARM MAPLEHURST
Representation letter
Not archived · Council Link
CONTAMINATION RISK ASSESSMENT
Supporting statement
Not archived · Council Link
COVERING LETTER
Correspondence
Not archived · Council Link
DESIGN AND ACCESS STATEMENT
Design and Access Statement
Not archived · Council Link
ECOLOGICAL APPRAISAL
Supporting statement
Not archived · Council Link
ENERGY STATEMENT
Supporting statement
Not archived · Council Link
EXISTING SITE SECTION AA: 000_20
Latest plan
Not archived · Council Link
EXISTING SITE SECTION BB: 000_21
Latest plan
Not archived · Council Link
EXISTING SITE SECTION CC: 000_22
Latest plan
Not archived · Council Link
FAYREHOLME SAUCELANDS LANE SHIPLEY
Representation letter
Not archived · Council Link
FAYREHOLME SAUCELANDS LANE SHIPLEY
Representation letter
Not archived · Council Link
FIGURE 1 VIEWPOINT LOCATIONS RCo556 / FIGURE1
Latest plan
Not archived · Council Link
FIGURE 2 VIEWPOINT LOCATIONS AERIAL: RCo556 / FIGURE 2
Latest plan
Not archived · Council Link
GREAT CRESTED NEWT SURVEY REPORT
Supporting statement
Not archived · Council Link
GROUND FLOOR FLAT 21 NORFOLK ROAD HORSHAM
Representation letter
Not archived · Council Link
HABITAT MAINTENANCE MANAGEMENT PLAN
Supporting statement
Not archived · Council Link
HEATHFIELD HOUSE TROUT LANE BROOKS GREEN
Representation letter
Not archived · Council Link
HERITAGE STATEMENT
Supporting statement
Not archived · Council Link
LANDSCAPE APPRAISAL
Supporting statement
Not archived · Council Link
LANDSCAPE APPRAISAL APPENDIX A
Supporting statement
Not archived · Council Link
LANDSCAPE APPRAISAL APPENDIX B
Supporting statement
Not archived · Council Link
LOCATION PLAN: 000_01, REV B
Latest plan
Not archived · Council Link
MARKET VIABILITY LETTER
Supporting statement
Not archived · Council Link
PLANNING STATEMENT
Supporting statement
Not archived · Council Link
PLANNING STATEMENT APPENDIX: NJA-1
Supporting statement
Not archived · Council Link
PLANNING STATEMENT APPENDIX: NJA-2
Supporting statement
Not archived · Council Link
PLANNING STATEMENT APPENDIX: NJA-3
Supporting statement
Not archived · Council Link
PLANNING STATEMENT APPENDIX: NJA-4
Supporting statement
Not archived · Council Link
PLANNING STATEMENT APPENDIX: NJA-5
Supporting statement
Not archived · Council Link
PLANNING STATEMENT APPENDIX: NJA-6
Supporting statement
Not archived · Council Link
PROPOSED AREA 1 GROUND FLOOR PLAN: 100_10, REV D
Latest plan
Not archived · Council Link
PROPOSED AREA 2 GROUND FLOOR PLAN: 100_11, REV D
Latest plan
Not archived · Council Link
PROPOSED BLOCK PLAN: 000_09, REV B
Latest plan
Not archived · Council Link
PROPOSED SITE SECTION AA: 200_01
Latest plan
Not archived · Council Link
PROPOSED SITE SECTION BB: 200_02
Latest plan
Not archived · Council Link
SAUCELANDS BUNGALOW SAUCELAND LANE COOLHAM
Representation letter
Not archived · Council Link
SOFT LANDSCAPE LAYOUT: RCo555-01, REV 03
Latest plan
Not archived · Council Link
SOUTHERN WATER RESPONSE
Consultation Response
Not archived · Council Link
SUNNYDELL COOLHAM ROAD SHIPLEY
Representation letter
Not archived · Council Link
SUNNYDELL COOLHAM ROAD SHIPLEY
Representation letter
Not archived · Council Link
SWEEPERS SAUCELANDS LANE
Representation letter
Not archived · Council Link
TRANSPORT ASSESSMENT
Supporting statement
Not archived · Council Link
TREE CONSTRAINTS PLAN
Latest plan
Not archived · Council Link
TREE PROTECTION PLAN
Latest plan
Not archived · Council Link
UNIT 1, GROUND, FIRST FLOOR, ELEVATIONS, SECTION AND GARAGE PLANS: 100_01
Latest plan
Not archived · Council Link
UNIT 2, GROUND, FIRST FLOOR, ELEVATIONS, SECTION AND GARAGE PLANS: 100_02
Latest plan
Not archived · Council Link
UNIT 3, GROUND, FIRST FLOOR, ELEVATIONS, SECTION AND GARAGE PLANS: 100_03
Latest plan
Not archived · Council Link
UNIT 4, GROUND, FIRST FLOOR, ELEVATIONS, SECTION PLANS: 100_04
Latest plan
Not archived · Council Link
WSCC PUBLIC RIGHTS OF WAY RESPONSE
Consultation Response
Not archived · Council Link

Take Action

Make your voice heard. Authorities need to hear from people who support new homes.

✉️ Write Email in Support View on Council Portal