← Back to Horsham District Council

Status

Registered Demolition
Received
23 days ago
New dwellings
0

Full Proposal

Demolition of existing dwelling and garage, and erection of replacement (self-build) dwelling with detached garage/garden store. (Resubmission of approved application DC/25/0642).

Documents

APPENDIX 1
Supporting statement
Not archived · Council Link
APPENDIX 2
Supporting statement
Not archived · Council Link
APPENDIX 3
Supporting statement
Not archived · Council Link
APPENDIX 4
Supporting statement
Not archived · Council Link
APPENDIX 5
Supporting statement
Not archived · Council Link
APPLICATION FORM
Application form
Not archived · Council Link
APPROVED ELEVATIONS: X01, REV B
Latest plan
Not archived · Council Link
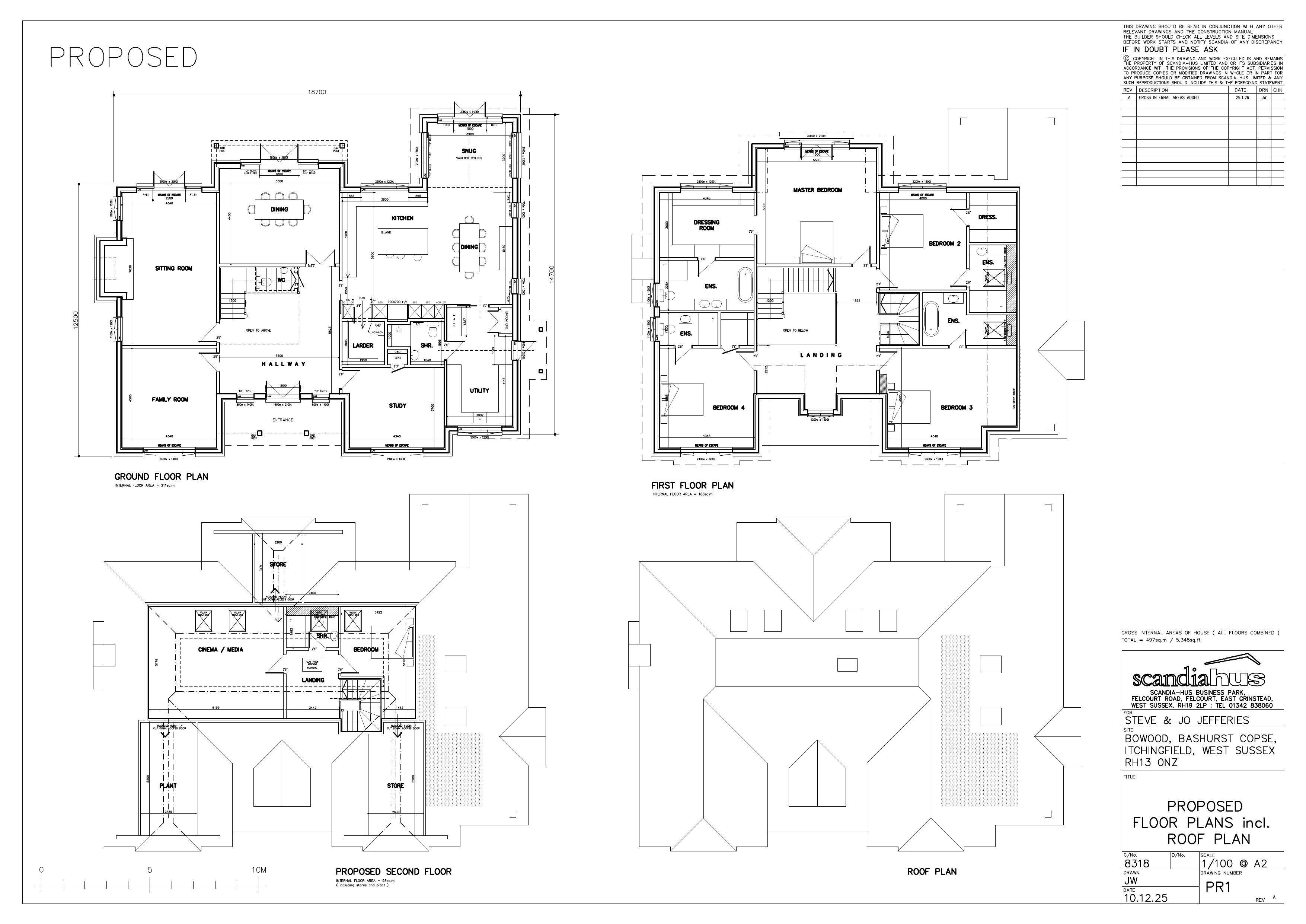
APPROVED FLOOR PLANS: 04, REV B
Latest plan
Not archived · Council Link
ARBORICULTURAL REPORT
Supporting statement
Not archived · Council Link
ARBORICULTURAL REPORT
Supporting statement
Not archived · Council Link
BAT SURVEY REPORT: C-NJA-003-001-001
Supporting statement
Not archived · Council Link
BIODIVERSITY ENHANCEMENT LAYOUT
Latest plan
Not archived · Council Link
BIODIVERSITY ENHANCEMENT LAYOUT REPORT
Supporting statement
Not archived · Council Link
CIL FORM
CIL Additional Info Form
Not archived · Council Link
DISC/25/0303 DECISION NOTICE
Supporting statement
Not archived · Council Link
EXISTING ELEVATIONS: EX04
Latest plan
Not archived · Council Link
EXISTING FLOOR PLANS: EX01, REV A
Latest plan
Not archived · Council Link
Latest plan
Archived · Council Link
HERITAGE REPORT
Supporting statement
Not archived · Council Link
LOCATION PLAN: L01, REV D
Latest plan
Not archived · Council Link
MATERIAL INFORMATION
Supporting statement
Not archived · Council Link
PLANNING, DESIGN AND ACCESS STATEMENT
Supporting statement
Not archived · Council Link
PRELIMINARY ECOLOGICAL APPRAISAL: C-NJA-003-001-00
Supporting statement
Not archived · Council Link
PROPOSED ELEVATIONS: PR2A
Latest plan
Not archived · Council Link
PROPOSED ELEVATIONS: PR2B
Latest plan
Not archived · Council Link
PROPOSED GARAGE ELEVATIONS: G01, REV A
Latest plan
Not archived · Council Link
PROPOSED GARAGE FLOOR PLANS: G02, REV B
Latest plan
Not archived · Council Link
PROPOSED GARAGE SECTIONS: G03
Latest plan
Not archived · Council Link
PROPOSED SITE AND BLOCK PLAN: BP02, REV A
Latest plan
Not archived · Council Link
SUSTAINABILITY STATEMENT
Supporting statement
Not archived · Council Link
TREE PROTECTION
Latest plan
Not archived · Council Link
TREE SURVEY
Latest plan
Not archived · Council Link
UNDERGROUND SERVICE DETAIL: USD1, REV A
Latest plan
Not archived · Council Link

Take Action

Make your voice heard. Authorities need to hear from people who support new homes.

✉️ Write Email in Support View on Council Portal