← Back to London Borough of Hounslow

Status

Unknown status Change of use
Received
n/a
New dwellings
10

Full Proposal

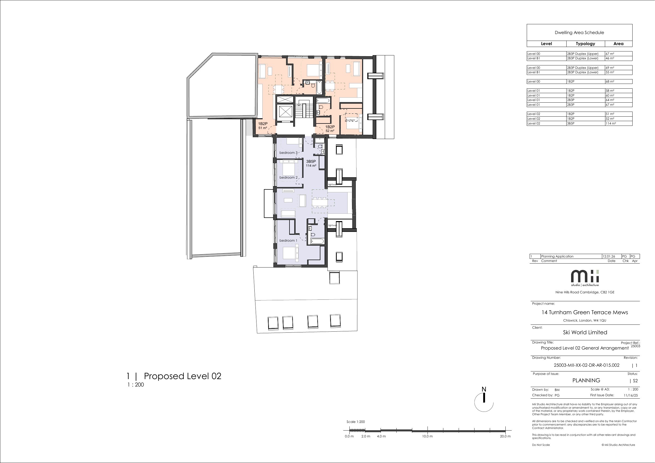
14 Turnham Green Terrace Mews, Chiswick, London, W4 1QU | PA: Commercial/Business/Service to Dwellinghouses | Prior approval for the change of use from Class E (commercial, business and service) to create 10 residential units Class C3 (dwellinghouse) | Application No: PAC/2026/0218 | Registered : 23 January 2026

Documents

Environment Agency
P-Consultation Responses
Not archived · Council Link
P-Daylight or sunlight assessment
P-Daylight or sunlight assessment
Not archived · Council Link
P-Existing Elevation
P-Existing Elevation
Not archived · Council Link
P-Existing Elevation
P-Existing Elevation
Not archived · Council Link
P-Existing Plans
P-Existing Plans
Not archived · Council Link
P-Existing Plans
P-Existing Plans
Not archived · Council Link
P-Existing Plans
P-Existing Plans
Not archived · Council Link
P-Existing Plans
P-Existing Plans
Not archived · Council Link
P-Existing Sections
P-Existing Sections
Not archived · Council Link
P-Flood Risk Assessment
P-Flood Risk Assessment
Not archived · Council Link
P-Location Plan
P-Location Plan
Not archived · Council Link
P-Planning Application Form
P-Planning Application Form
Not archived · Council Link
P-Proposed Block
P-Proposed Block
Not archived · Council Link
P-Proposed Plans
Archived · Council Link
P-Proposed Plans
Archived · Council Link
P-Proposed Plans
Archived · Council Link
P-Proposed Plans
Archived · Council Link
P-Proposed Sections
P-Proposed Sections
Not archived · Council Link
P-Proposed Sections
P-Proposed Sections
Not archived · Council Link
P-Published Noise Assessment
P-Published Noise Assessment
Not archived · Council Link
P-Supporting Information
P-Supporting Information
Not archived · Council Link
P-Transport Assessment
P-Transport Assessment
Not archived · Council Link
roof
P-Existing Plans
Not archived · Council Link
roof
P-Proposed Plans
Not archived · Council Link

Take Action

Make your voice heard. Authorities need to hear from people who support new homes.

✉️ Write Email in Support View on Council Portal