← Back to Hull City Council

Status

Application Permitted Change of use
Received
27 Feb 2024
New dwellings
2

Full Proposal

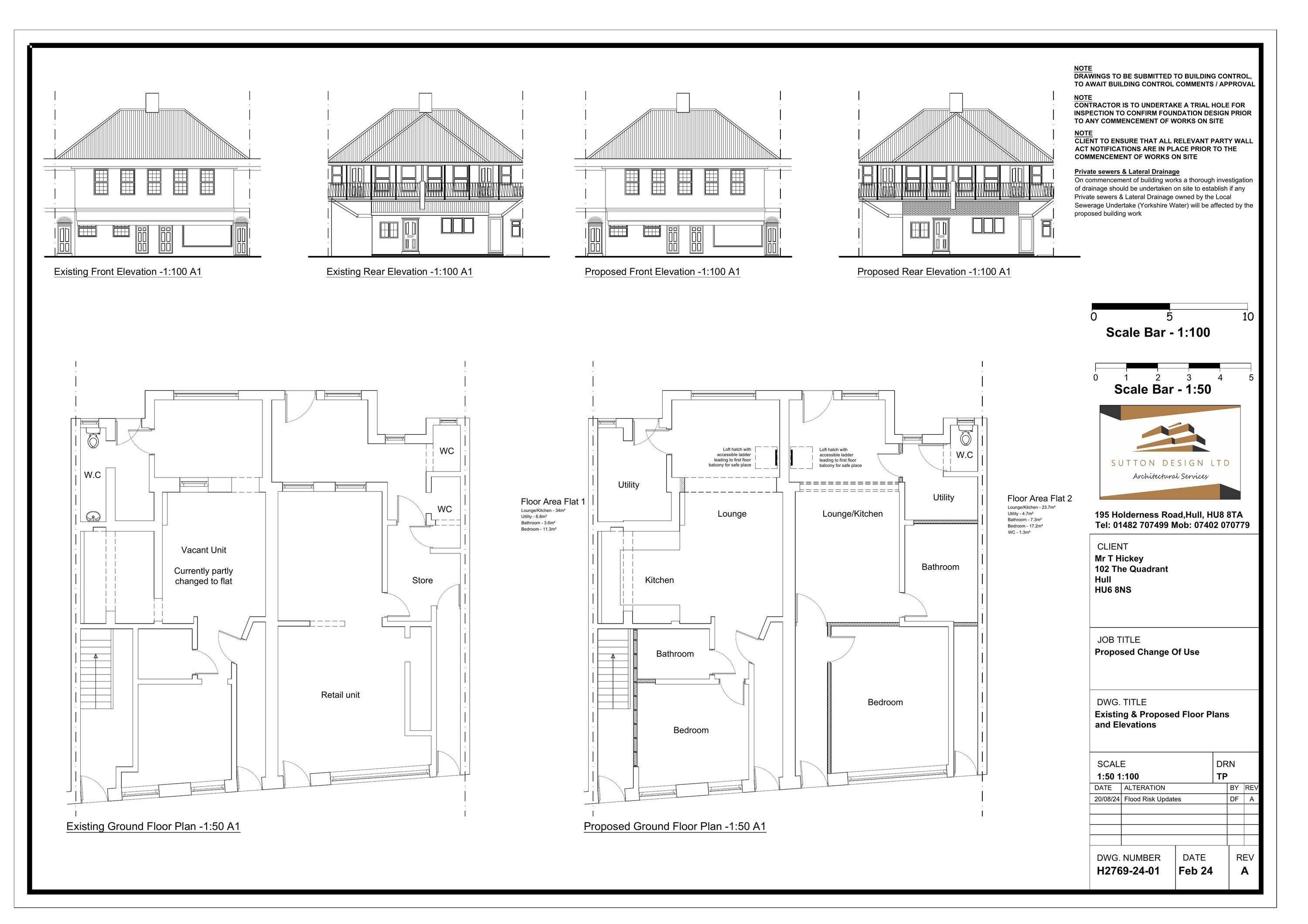
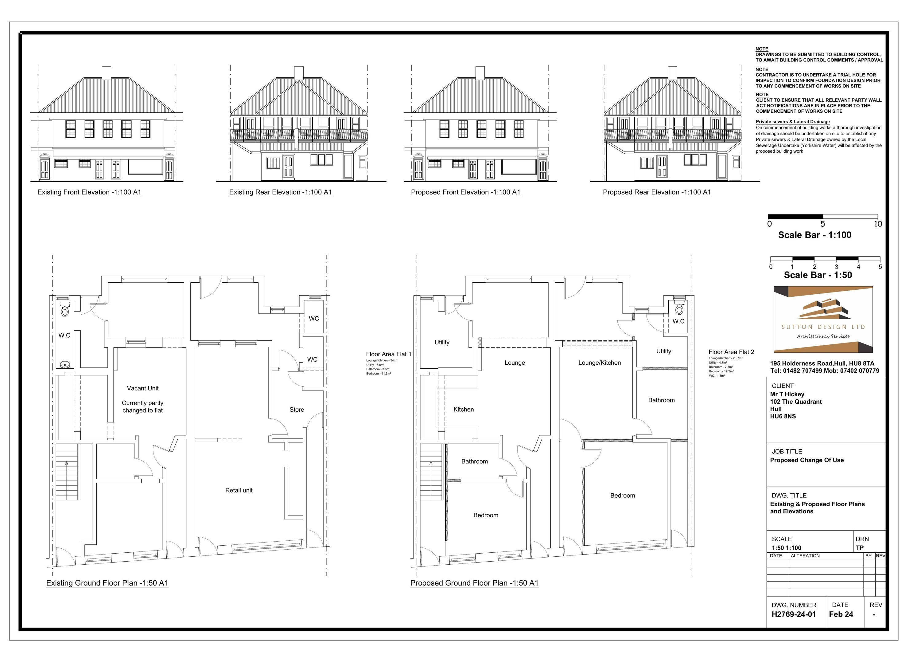
Change of use from 2 x Class E ground floor shops to 2 x 1 bedroom flats

Documents

100-102 THE QUADRANT
Application Form
Not archived · Council Link
CHECKSHEET
BackGround Papers
Not archived · Council Link
DECISION NOTICE
Decision
Not archived · Council Link
EMAILS RE EOT 09/12/2024
Correspondence
Not archived · Council Link
EMAILS RE EOT 19/11/2024
Correspondence
Not archived · Council Link
EXISTING AND PROPOSED BLOCK PLAN
Drawing
Not archived · Council Link
EXISTING AND PROPOSED BLOCK PLANS
Drawing
Not archived · Council Link
EXISTING AND PROPOSED FIRST FLOOR PLANS
Drawing
Not archived · Council Link
EXISTING AND PROPOSED GROUND FLOOR PLANS AND ELEVATIONS
Drawing
Not archived · Council Link
EXISTING AND PROPOSED GROUND FLOOR PLANS AND ELEVATIONS
Drawing
Not archived · Council Link
FLOOD RISK ASSESSMENT
Report
Not archived · Council Link
HIGHWAYS COMMENTS
Correspondence
Not archived · Council Link
HOUSING STANDARDS COMMENTS
Correspondence
Not archived · Council Link
INVALID LETTER
Correspondence
Not archived · Council Link
LEGAL AGREEMENT SIGNED
Other
Not archived · Council Link
LOCATION PLAN
Drawing
Not archived · Council Link
LOCATION PLAN
Drawing
Not archived · Council Link
OFFICERS DELEGATED REPORT
Report
Not archived · Council Link
OPEN SPACE REQUIREMENTS
Correspondence
Not archived · Council Link
WASTE MANAGEMENT RECOMMENDATIONS
Correspondence
Not archived · Council Link

Take Action

Make your voice heard. Authorities need to hear from people who support new homes.

✉️ Write Email in Support View on Council Portal