← Back to Hull City Council

Status

Pending Consideration New housing
Received
10 Jun 2024
New dwellings
6

Full Proposal

Erection of 6 dwellinghouses, following demolition of derelict public house

Documents

371-379 STAVELEY ROAD
Application Form
Not archived · Council Link
ACCESS OFFICER COMMENTS
Correspondence
Not archived · Council Link
BAT SURVEY
BackGround Papers
Not archived · Council Link
BUILDING FOR HEALTHY LIFE ASSESSMENT
Report
Not archived · Council Link
CASTLEDINE ENVIRONMENTAL
Report
Not archived · Council Link
CHECKSHEET
BackGround Papers
Not archived · Council Link
COMMENTS FROM URBAN FORESTRY
Correspondence
Not archived · Council Link
E-MAIL FROM NEIGHBOURHOOD NUISANCE TEAM
Correspondence
Not archived · Council Link
ECOLOGY REPORT
Report
Not archived · Council Link
ECOLOGY REPORT
Report
Not archived · Council Link
ECOLOGY REPORT BNG 1 AND 2
Report
Not archived · Council Link
ECOLOGY REPORT PEA AND PRA
Report
Not archived · Council Link
EMAIL
Correspondence
Not archived · Council Link
EMAIL TO AGENT 29/05/2025
Correspondence
Not archived · Council Link
EMAILS RE EOT 18/12/2024
Correspondence
Not archived · Council Link
EMAILS TO AGENT 04/11/2024
Correspondence
Not archived · Council Link
EMAILS TO AGENT 16/12/2024
Correspondence
Not archived · Council Link
EMAILS TO AGENT 30/05/2025
Correspondence
Not archived · Council Link
ENVIRONMENT HEALTH COMMENTS
Correspondence
Not archived · Council Link
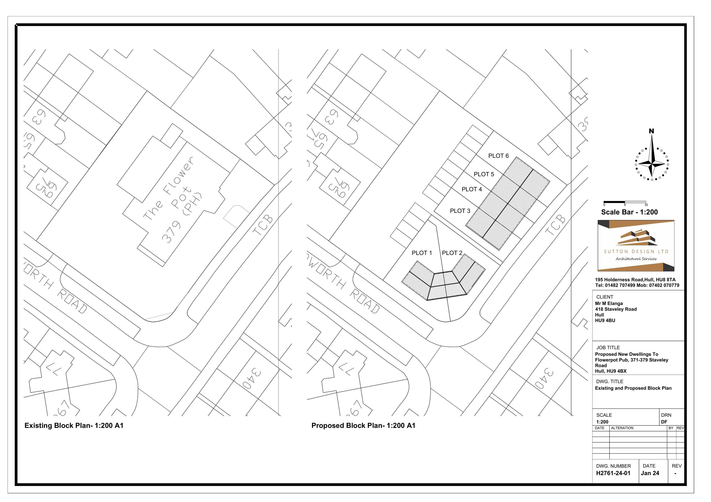
EXISTING AND PROPOSED BLOCK PLAN
Drawing
Not archived · Council Link
EXTENDED SEQUENTIAL TEST
Report
Not archived · Council Link
FEE LETTER
Correspondence
Not archived · Council Link
FLOOD RISK ASSESSMENT
Report
Not archived · Council Link
FLOOD RISK ASSESSMENT
Report
Not archived · Council Link
FLOOD RISK ASSESSMENT
Report
Not archived · Council Link
FLOOD TEAM COMMENTS
Correspondence
Not archived · Council Link
HIGHWAYS DC COMMENTS
Correspondence
Not archived · Council Link
INVALID EMAIL
Correspondence
Not archived · Council Link
LANDSCAPING PLAN
Drawing
Not archived · Council Link
LOCAL PLAN OPEN SPACE COMMENTS
Correspondence
Not archived · Council Link
OFFICER EMAIL 16 OCT 24 RE INVALID ELEMENTS OUTSTANDING
Correspondence
Not archived · Council Link
OS PLAN
OS Extract
Not archived · Council Link
PHASE 1 CONTAMINATION
Report
Not archived · Council Link
PHASE 1 CONTAMINATION
Report
Not archived · Council Link
PHASE 1 CONTAMINATION
Report
Not archived · Council Link
PHASE 1 CONTAMINATION
Report
Not archived · Council Link
PLANNING STATEMENT
Report
Not archived · Council Link
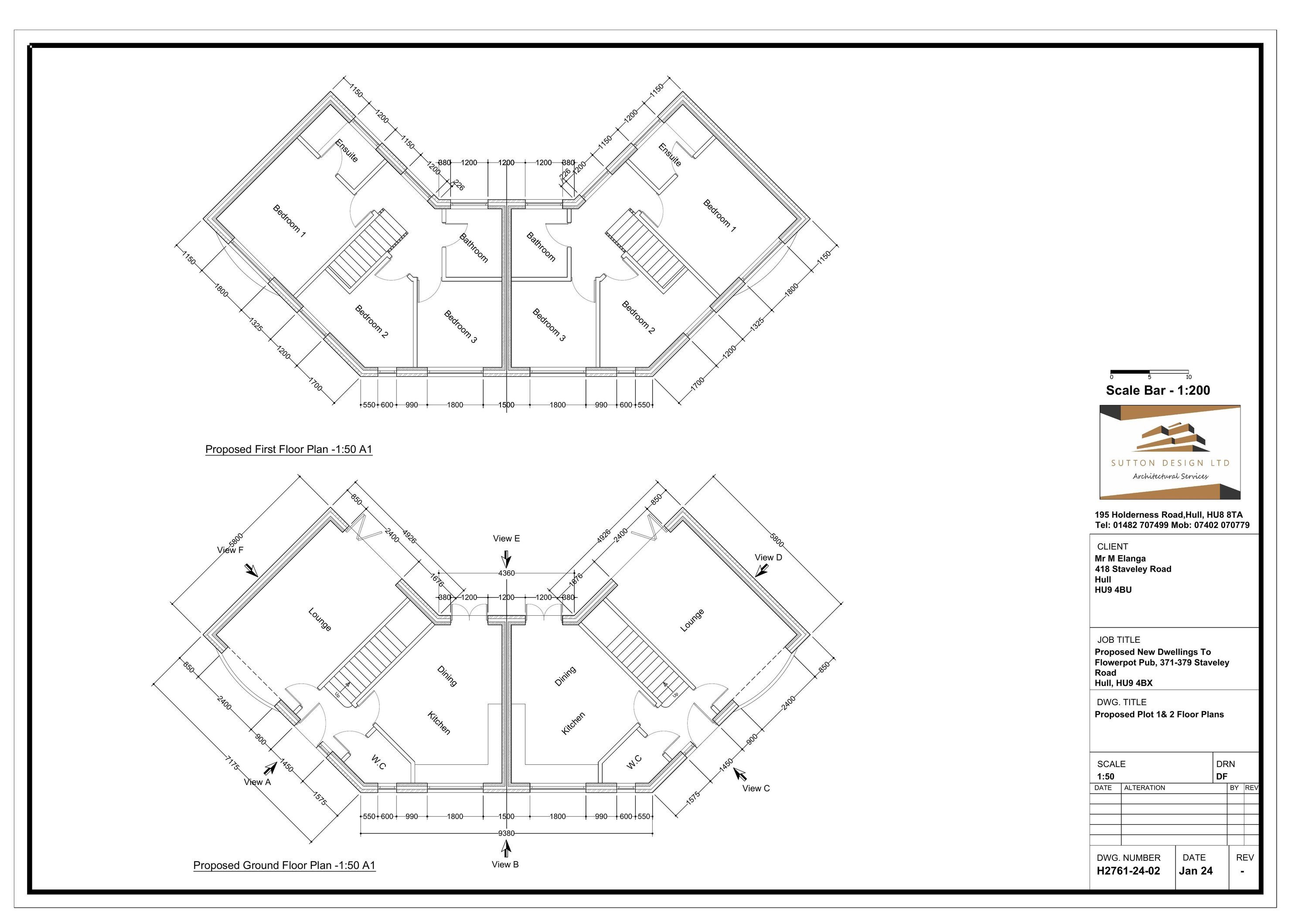
PLOTS 1 AND 2 FLOOR PLANS
Drawing
Not archived · Council Link
PLOTS 3 4 5 6 ELEVATIONS AND ROOF PLAN
Drawing
Not archived · Council Link
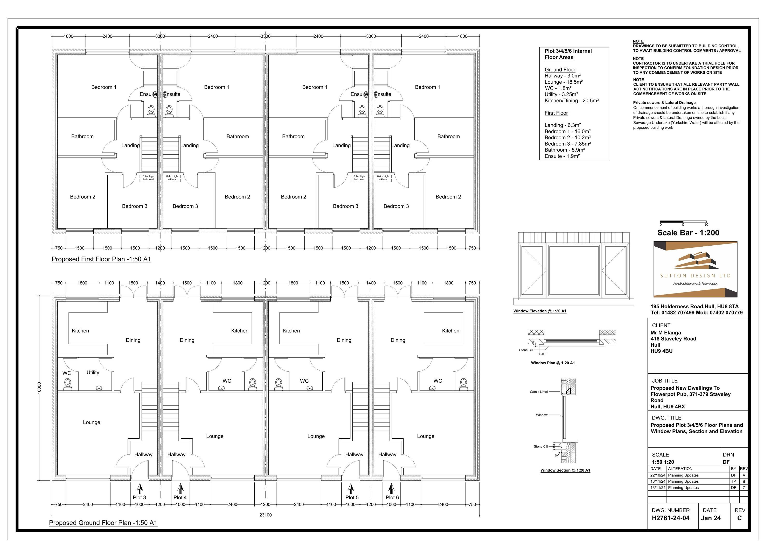
PLOTS 3 4 5 6 FLOOR PLANS AND WINDOW PLANS SECTION AND ELEVATION
Drawing
Not archived · Council Link
PROPOSED ELEVATIONS AND ROOF PLAN
Drawing
Not archived · Council Link
Drawing
Archived · Council Link
Drawing
Archived · Council Link
Drawing
Archived · Council Link
Drawing
Archived · Council Link
Drawing
Archived · Council Link
PROPOSED PLOT 1 & 2 ELEVATIONS AND ROOF PLAN
Drawing
Not archived · Council Link
PUBLIC COMMENT (PA)
Public Comment
Not archived · Council Link
PUBLIC COMMENT (PA)
Public Comment
Not archived · Council Link
PUBLIC COMMENT (PA)
Public Comment
Not archived · Council Link
PUBLIC COMMENT (PA)
Public Comment
Not archived · Council Link
PUBLIC HEALTH COMMENTS
Correspondence
Not archived · Council Link
SEWER ASSET PLAN
Report
Not archived · Council Link
TREE SURVEY
Report
Not archived · Council Link
URBAN DESIGN COMMENTS
Correspondence
Not archived · Council Link
WASTE MANAGEMENT STATEMENT
Report
Not archived · Council Link

Take Action

Make your voice heard. Authorities need to hear from people who support new homes.

✉️ Write Email in Support View on Council Portal