← Back to Hull City Council

Status

Pending Consideration New housing
Received
12 Aug 2024
New dwellings
1

Summary

Two-storey end-terrace dwelling with associated parking, access and landscaping.

Full Proposal

Erection of a two storey end-terrace dwellinghouse, with associated parking, access and landscaping (Resubmission of app ref 22/01043/FULL)

Documents

A SUMMARY OF THE ATTACHMENTS IN THE PROPOSAL
BackGround Papers
Not archived · Council Link
APPLICATION FORM REVISED BNG
Application Form
Not archived · Council Link
BNG SMALL SITE METRIC
Other
Not archived · Council Link
ECOLOGY COMMENTS
Correspondence
Not archived · Council Link
EMAILS TO AGENT 29/08/2024
Correspondence
Not archived · Council Link
ENVIRONMENT AGENCY COMMENTS
Correspondence
Not archived · Council Link
ENVIRONMENTAL HEALTH COMMENTS
Correspondence
Not archived · Council Link
FLOOD RISK ASSESSMENT
Report
Not archived · Council Link
FLOOD TEAM COMMENTS
Correspondence
Not archived · Council Link
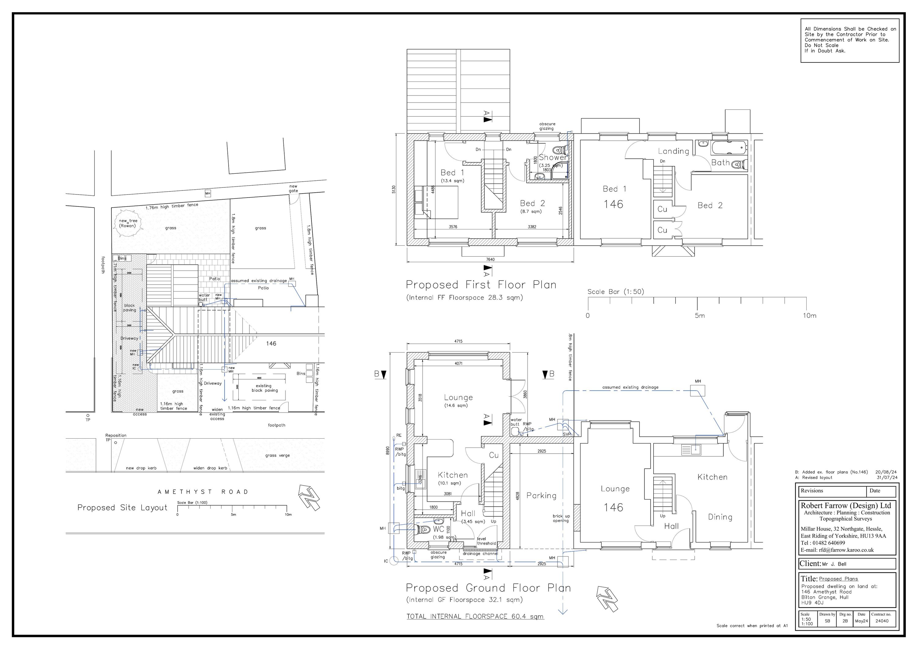
FLOOR PLAN
Other
Not archived · Council Link
HIGHWAYS COMMENTS
Correspondence
Not archived · Council Link
INVALID EMAIL
Correspondence
Not archived · Council Link
INVALID EMAIL
Correspondence
Not archived · Council Link
INVALID EMAIL
Correspondence
Not archived · Council Link
LAND ADJACENT TO 146 AMETHYST ROAD
Application Form
Not archived · Council Link
OPEN SPACE REQUIREMENTS
Correspondence
Not archived · Council Link
PROPOSED BLOCK PLAN
Drawing
Not archived · Council Link
PROPOSED ELEVATIONS
Drawing
Not archived · Council Link
Drawing
Archived · Council Link
PROPOSED SWEPT PATHS PARKING SPACE 3
Drawing
Not archived · Council Link
PROPOSED SWEPT PATHS PARKING SPACE 4
Drawing
Not archived · Council Link
PROPOSED SWEPT PATHS PARKING SPACES 1 & 2
Drawing
Not archived · Council Link
PUBLIC COMMENT (PA)
Public Comment
Not archived · Council Link
PUBLIC COMMENT (PA)
Public Comment
Not archived · Council Link
PUBLIC COMMENT (PA)
Public Comment
Not archived · Council Link
REVISED BNG SECTION FORMS
Application Form
Not archived · Council Link
REVISED BNG SECTION REPORT
Report
Not archived · Council Link
REVISED BNG SMALL SCALE
BackGround Papers
Not archived · Council Link
REVISED PLANS
Drawing
Not archived · Council Link
REVISED PLANS
Drawing
Not archived · Council Link
REVISED PLANS
Drawing
Not archived · Council Link
REVISED PLANS
Drawing
Not archived · Council Link
REVISED PLANS
Drawing
Not archived · Council Link
SITE LOCATION GEOJSON
Other
Not archived · Council Link
THE LOCATION PLAN
OS Extract
Not archived · Council Link
URBAN DESIGN COMMENTS
Correspondence
Not archived · Council Link

Take Action

Make your voice heard. Authorities need to hear from people who support new homes.

✉️ Write Email in Support View on Council Portal