← Back to Hull City Council

Status

Application Permitted Other
Received
15 Aug 2024
New dwellings
0

Full Proposal

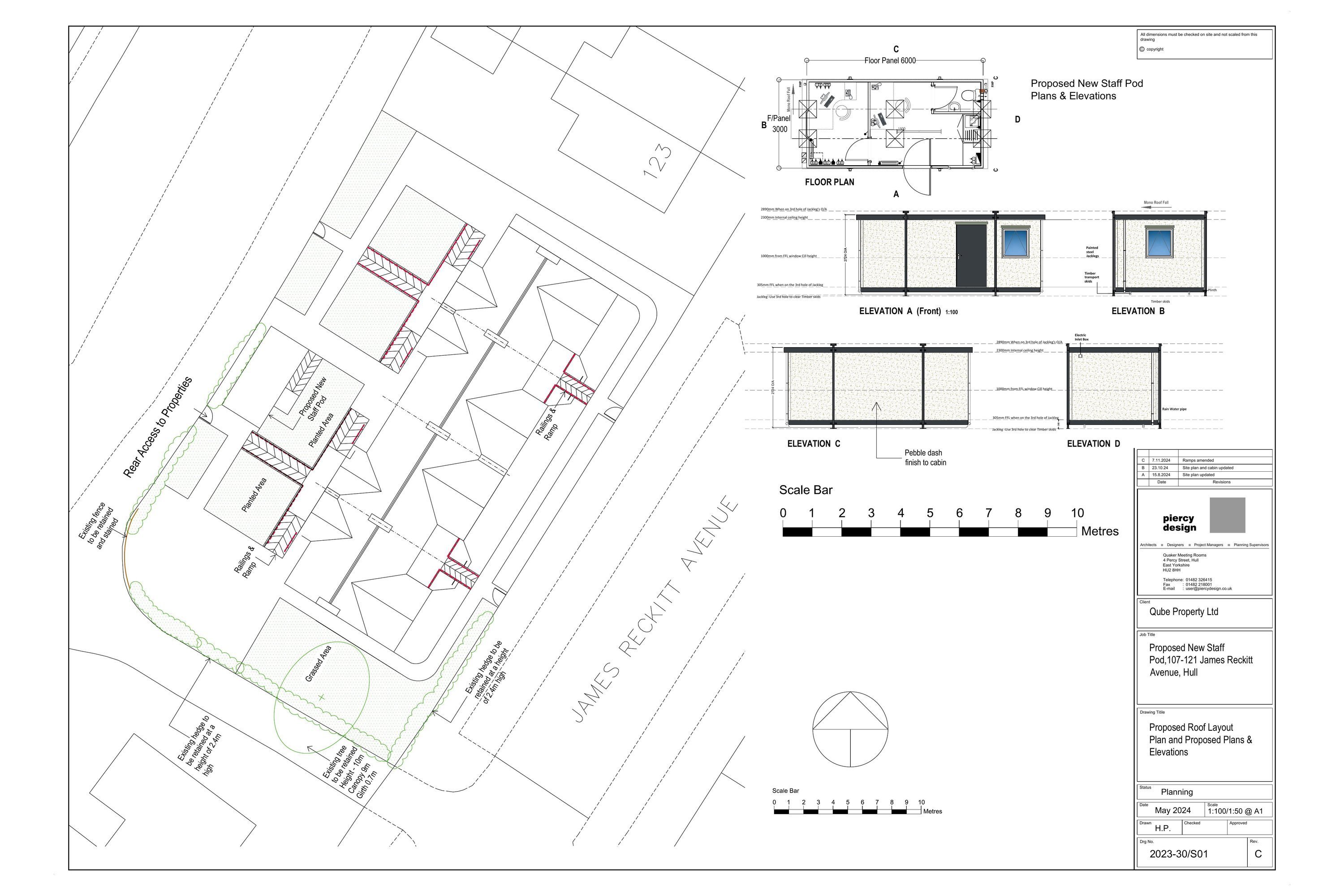
Erection of a single storey staff pod with flat roof to the side of no. 107 James Reckitt Avenue (6m long x 3m wide x 2.7m max height) (Resubmission of previously refused 24/00468/FULL application)

Documents

107-121 JAMES RECKITT AVENUE
Application Form
Not archived · Council Link
AGENT EMAIL 12 NOV 24
Correspondence
Not archived · Council Link
CHECKSHEET
BackGround Papers
Not archived · Council Link
CONSERVATION COMMENTS
Correspondence
Not archived · Council Link
DECISION NOTICE
Decision
Not archived · Council Link
FEE LETTER
Other
Not archived · Council Link
FLOOD EVACUATION PLAN
BackGround Papers
Not archived · Council Link
GARDEN VILLIAGE SOCIETY COMMENTS
Correspondence
Not archived · Council Link
HERITAGE DESIGN ACCESS STATEMENT
BackGround Papers
Not archived · Council Link
HIGHWAYS COMMENTS
Correspondence
Not archived · Council Link
INVALID EMAIL
Correspondence
Not archived · Council Link
LOCATION PLAN
OS Extract
Not archived · Council Link
OFFICERS DELEGATED REPORT
Report
Not archived · Council Link
PRESS NOTICE
Other
Not archived · Council Link
PUBLIC COMMENT (PA)
Public Comment
Not archived · Council Link
PUBLIC COMMENT (PA)
Public Comment
Not archived · Council Link
PUBLIC COMMENT (PA)
Public Comment
Not archived · Council Link
PUBLIC COMMENT (PA)
Public Comment
Not archived · Council Link
PUBLIC COMMENT (PA)
Public Comment
Not archived · Council Link
PUBLIC COMMENT (PA)
Public Comment
Not archived · Council Link
RECYCLING COMMENTS
Correspondence
Not archived · Council Link
REVISED RAMP
Drawing
Not archived · Council Link
UPDATED CONSERVATION COMMENTS
Correspondence
Not archived · Council Link

Take Action

Make your voice heard. Authorities need to hear from people who support new homes.

✉️ Write Email in Support View on Council Portal