← Back to Hull City Council

Status

Application Permitted Change of use
Received
04 Sep 2024
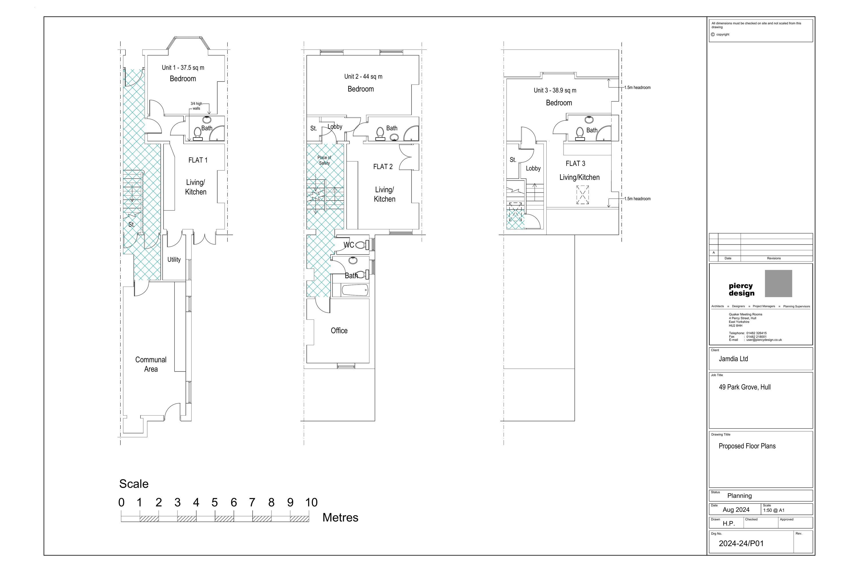
New dwellings
3

Full Proposal

Change of use from family dwellinghouse (Class C3) to 3x supported living apartments and staff office (works commenced)

Documents

49 PARK GROVE, PRINCES AVENUE
Application Form
Not archived · Council Link
A SUMMARY OF THE ATTACHMENTS IN THE PROPOSAL
BackGround Papers
Not archived · Council Link
APPLICATION CHECKLIST
Officer Notes
Not archived · Council Link
DECISION NOTICE
Decision
Not archived · Council Link
EMAIL RE EOT 25/11/2024
Correspondence
Not archived · Council Link
EMAILS RE EOT 18/12/2024
Correspondence
Not archived · Council Link
EMAILS RE EOT 27/01/2025
Application Form
Not archived · Council Link
ENVIRONMENT AGENCY COMMENTS
Correspondence
Not archived · Council Link
EOT EMAIL
Correspondence
Not archived · Council Link
EOT EMAIL
Correspondence
Not archived · Council Link
EXISTING FLOOR PLANS
Drawing
Not archived · Council Link
FLOOD RISK ASSESSMENT
Drawing
Not archived · Council Link
HIGHWAYS DC COMMENTS
Correspondence
Not archived · Council Link
OFFICERS DELEGATED REPORT
Report
Not archived · Council Link
OPEN SPACE REQUIREMENTS
Correspondence
Not archived · Council Link
PLANNING STATEMENT
Drawing
Not archived · Council Link
PRE-COMMENCEMENT ACCEPTANCE EMAIL
Correspondence
Not archived · Council Link
Drawing
Archived · Council Link
PROPOSED SITE/ROOF LAYOUT
Drawing
Not archived · Council Link
RECYLCLING OFFICER COMMENTS
Correspondence
Not archived · Council Link
Drawing
Archived · Council Link
THE LOCATION PLAN
OS Extract
Not archived · Council Link
UNILATERAL UNDERTAKING
BackGround Papers
Not archived · Council Link

Take Action

Make your voice heard. Authorities need to hear from people who support new homes.

✉️ Write Email in Support View on Council Portal