← Back to Hull City Council

Status

Application Permitted Change of use
Received
13 Sep 2024
New dwellings
0

Full Proposal

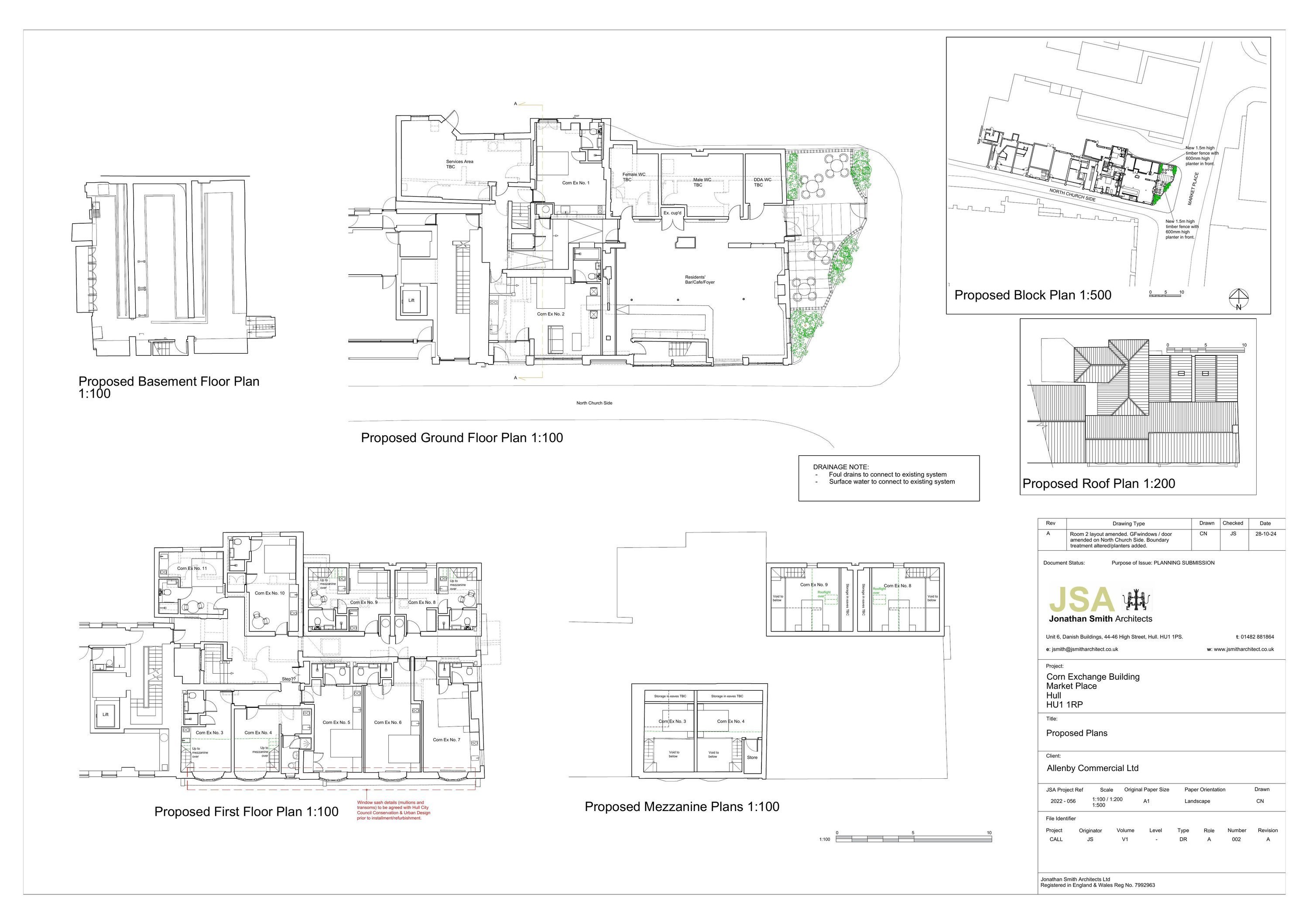
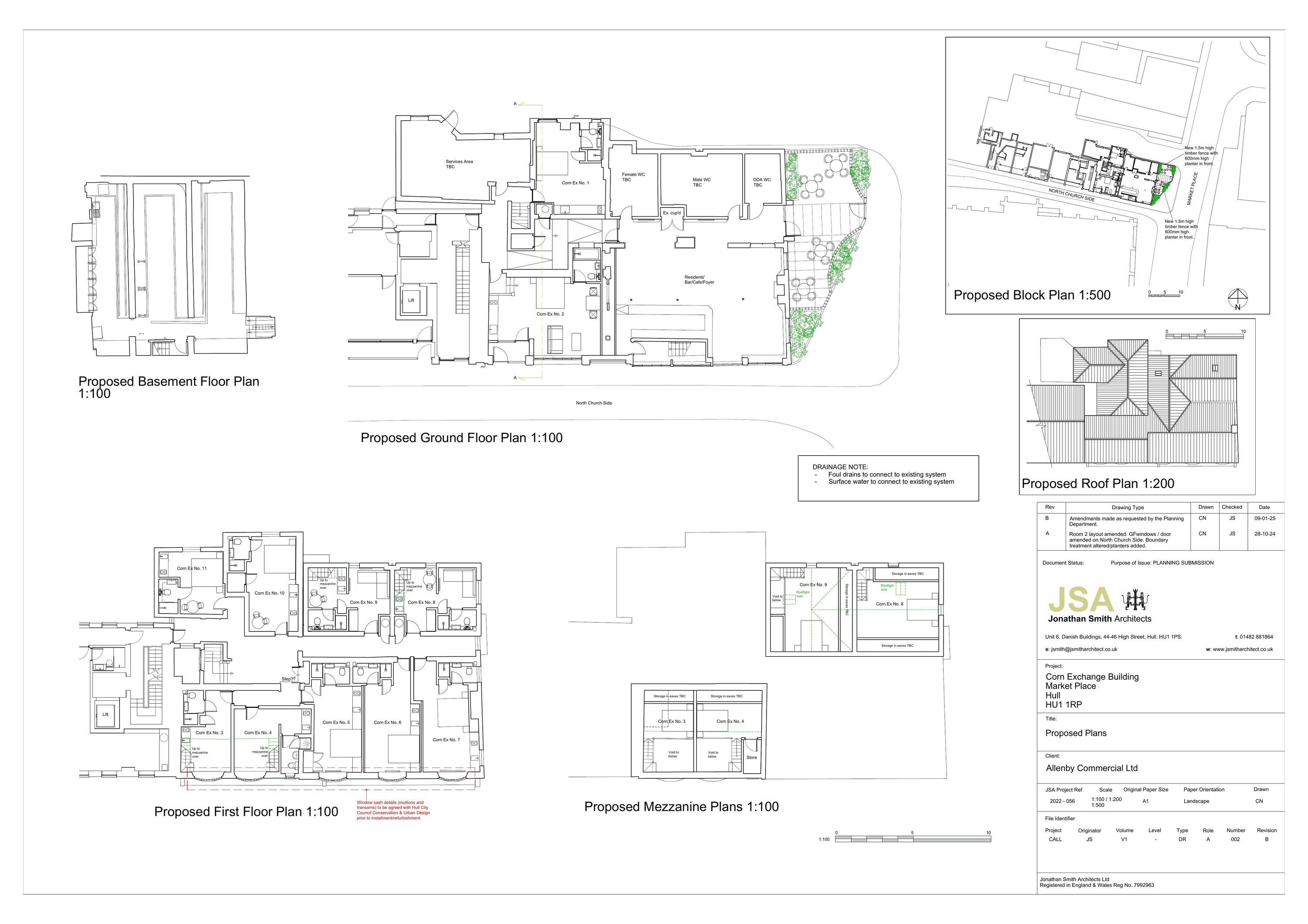
1) Change of use of vacant public house to hotel in connection with existing hotel adjoining to the west. 2) Extending the building to the rear of the property to provide additional bedroom accommodation for the hotel at first floor (including mezzanine). 3) Installation of replacement windows, new windows and hardwood timber screening at ground level.

Documents

A SUMMARY OF THE ATTACHMENTS IN THE PROPOSAL
BackGround Papers
Not archived · Council Link
ACCESS OFFICER
Correspondence
Not archived · Council Link
AGENT EMAIL 24 FEB 25
Correspondence
Not archived · Council Link
AGENT EMAIL 3 DEC RE REVISED PLANS
Correspondence
Not archived · Council Link
APPLICATION CHECKLIST
Officer Notes
Not archived · Council Link
CAAC COMMENTS
Correspondence
Not archived · Council Link
CONSERVATION COMMENTS
Application Form
Not archived · Council Link
CONSERVATION COMMENTS
Correspondence
Not archived · Council Link
CONSERVATION COMMENTS
Correspondence
Not archived · Council Link
CONSERVATION COMMENTS
Application Form
Not archived · Council Link
CONSERVATION SKETCHES
Application Form
Not archived · Council Link
CORN EXCHANGE PUBLIC HOUSE, 1-4 NORTH CHURCH SIDE
Application Form
Not archived · Council Link
CORN EXCHANGE SKETCHES
Drawing
Not archived · Council Link
CORN EXCHANGE SUDS STATEMENT
Report
Not archived · Council Link
DECISION NOTICE
Decision
Not archived · Council Link
DESIGN, ACCESS AND HERITAGE STATEMENT
Report
Not archived · Council Link
EMAIL RE PRE COMMENCEMENT CONDITIONS 01/04/2025
Correspondence
Not archived · Council Link
EXISTING PLANS AND ELEVATIONS
Drawing
Not archived · Council Link
FLOOD RISK ASSESSMENT
Report
Not archived · Council Link
FLOOD RISK ASSESSMENT BY JS RIBA
Report
Not archived · Council Link
FLOOD TEAM COMMENTS
Correspondence
Not archived · Council Link
FLOOD TEAM COMMENTS
Correspondence
Not archived · Council Link
HIGHWAYS COMMENTS
Correspondence
Not archived · Council Link
HISTORIC ENGLAND COMMENTS
Correspondence
Not archived · Council Link
HUMBER ARCHAEOLOGY COMMENTS
Correspondence
Not archived · Council Link
INVALID EMAIL
Correspondence
Not archived · Council Link
OFFICERS DELEGATED REPORT
Report
Not archived · Council Link
PLANNING STATEMENT
Report
Not archived · Council Link
PRESS NOTICE
Other
Not archived · Council Link
PROPOSED 3D VISUALS
Drawing
Not archived · Council Link
PROPOSED 3D VISUALS
Drawing
Not archived · Council Link
PROPOSED ELEVATIONS
Drawing
Not archived · Council Link
PROPOSED ELEVATIONS - WINDOW SCHEDULE
Drawing
Not archived · Council Link
Drawing
Archived · Council Link
Drawing
Archived · Council Link
Drawing
Archived · Council Link
PROPOSED WINDOW SCHEDULE
Drawing
Not archived · Council Link
PROPOSED WINDOW SCHEDULE ELEVATIONS
Drawing
Not archived · Council Link
PROPOSED WINDOW SCHEDULE ELEVATIONS
Drawing
Not archived · Council Link
PUBLIC COMMENT
Public Comment
Not archived · Council Link
PUBLIC COMMENT (PA)
Public Comment
Not archived · Council Link
PUBLIC COMMENT (PA)
Public Comment
Not archived · Council Link
PUBLIC PROTECTION COMMENTS
Correspondence
Not archived · Council Link
SUPPORTING DOCUMENT COVERED IN ANOTHER DOCUMENT
BackGround Papers
Not archived · Council Link
SUPPORTING DOCUMENT COVERED IN ANOTHER DOCUMENT
BackGround Papers
Not archived · Council Link
SUPPORTING DOCUMENT COVERED IN ANOTHER DOCUMENT
BackGround Papers
Not archived · Council Link
SUPPORTING DOCUMENT COVERED IN ANOTHER DOCUMENT
BackGround Papers
Not archived · Council Link
SUPPORTING DOCUMENT COVERED IN ANOTHER DOCUMENT
BackGround Papers
Not archived · Council Link
SUPPORTING DOCUMENT COVERED IN ANOTHER DOCUMENT
BackGround Papers
Not archived · Council Link
SUPPORTING DOCUMENT COVERED IN ANOTHER DOCUMENT
BackGround Papers
Not archived · Council Link
SUPPORTING DOCUMENT COVERED IN ANOTHER DOCUMENT
BackGround Papers
Not archived · Council Link
SUPPORTING DOCUMENT COVERED IN ANOTHER DOCUMENT
BackGround Papers
Not archived · Council Link
SUPPORTING DOCUMENT COVERED IN ANOTHER DOCUMENT
BackGround Papers
Not archived · Council Link
SUPPORTING DOCUMENT COVERED IN ANOTHER DOCUMENT
BackGround Papers
Not archived · Council Link
SUPPORTING DOCUMENT COVERED IN ANOTHER DOCUMENT
BackGround Papers
Not archived · Council Link
URBAN DESIGN COMMENTS
Correspondence
Not archived · Council Link
URBAN DESIGN COMMENTS
Correspondence
Not archived · Council Link

Take Action

Make your voice heard. Authorities need to hear from people who support new homes.

✉️ Write Email in Support View on Council Portal