← Back to Hull City Council

Status

Application Permitted Change of use
Received
18 Sep 2024
New dwellings
1

Full Proposal

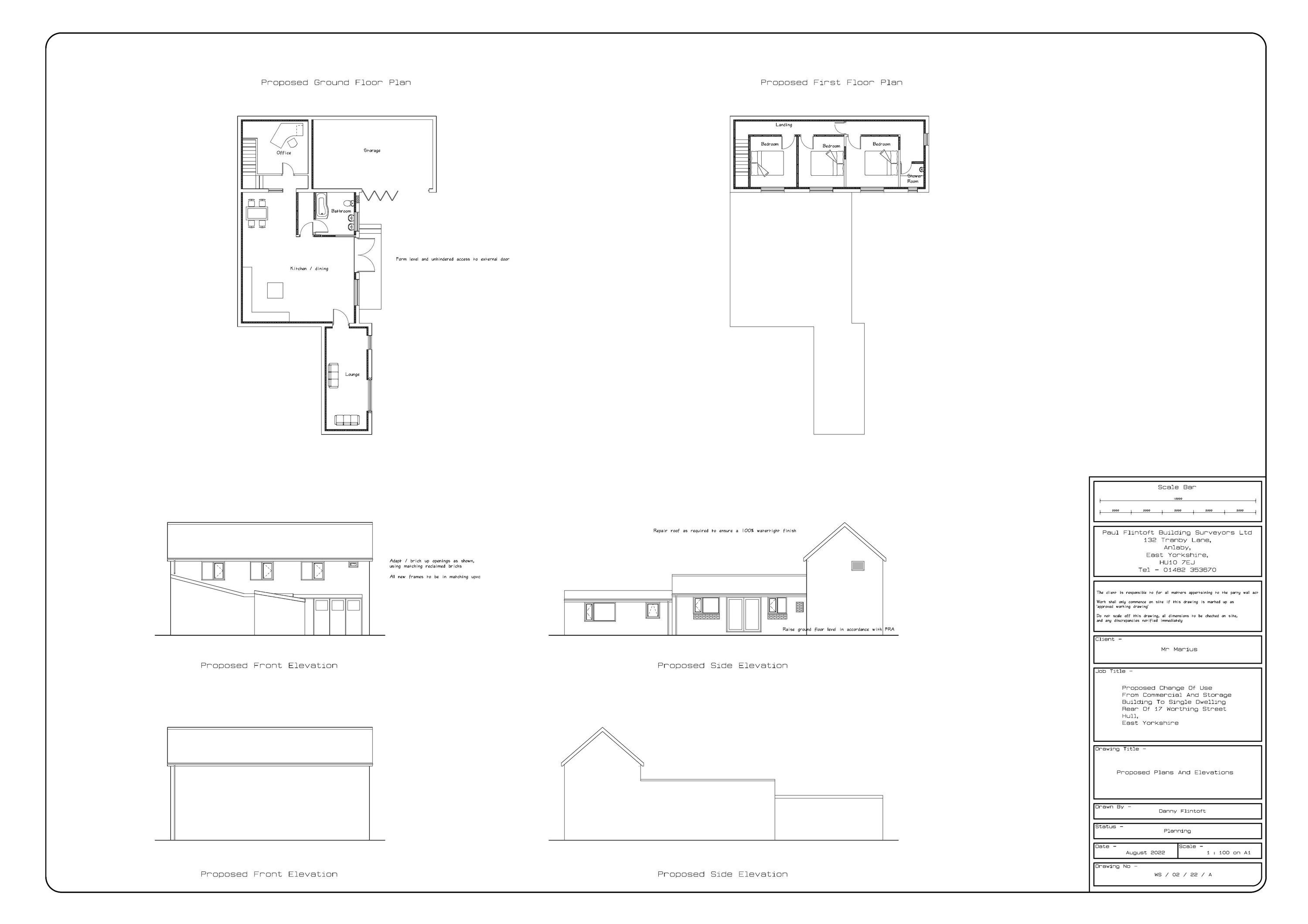
Change of use from commercial and storage building to C3 dwellinghouse

Documents

17 WORTHING STREET
Application Form
Not archived · Council Link
A SUMMARY OF THE ATTACHMENTS IN THE PROPOSAL
BackGround Papers
Not archived · Council Link
BLOCK AND ROOF PLAN
Drawing
Not archived · Council Link
CHECKSHEET
BackGround Papers
Not archived · Council Link
COMPLETED LEGAL AGREEMENT
Other
Not archived · Council Link
DECISION NOTICE
Decision
Not archived · Council Link
E-MAIL FROM RECYCLING OFFICER
Correspondence
Not archived · Council Link
EMAIL WITH LINK AND EOT 11/11/2024
Correspondence
Not archived · Council Link
EMAILS RE EOT 18/12/2024
Correspondence
Not archived · Council Link
ENVIRONMENTAL PROTECTION COMMENTS
Correspondence
Not archived · Council Link
EOT EMAIL
Correspondence
Not archived · Council Link
EXISTING PLANS AND ELEVATIONS
Drawing
Not archived · Council Link
FLOOD RISK ASSESSMENT
Report
Not archived · Council Link
HIGHWAYS COMMENTS
Correspondence
Not archived · Council Link
HIGHWAYS DC COMMENTS
Correspondence
Not archived · Council Link
LAND CONTAMINATION ASSESSMENT
Report
Not archived · Council Link
LAND CONTAMINATION ASSESSMENT
Report
Not archived · Council Link
LAND CONTAMINATION ASSESSMENT
Report
Not archived · Council Link
LAND CONTAMINATION ASSESSMENT
Report
Not archived · Council Link
LAND CONTAMINATION ASSESSMENT
Report
Not archived · Council Link
LAND CONTAMINATION ASSESSMENT
Report
Not archived · Council Link
LAND CONTAMINATION ASSESSMENT
Report
Not archived · Council Link
LAND CONTAMINATION ASSESSMENT
Report
Not archived · Council Link
LAND CONTAMINATION ASSESSMENT
Report
Not archived · Council Link
LAND CONTAMINATION ASSESSMENT
Report
Not archived · Council Link
LAND CONTAMINATION ASSESSMENT
Report
Not archived · Council Link
OFFICERS DELEGATED REPORT
Report
Not archived · Council Link
OPEN SPACE REQUIREMENTS
Correspondence
Not archived · Council Link
PHOTOS
Photo
Not archived · Council Link
PROPOSED ALTERATIONS TO SITE ACCESS AND FORMATION OF SHED WITHIN EXISTING BUILDI
Drawing
Not archived · Council Link
RECYCLING OFFICER COMMENTS
Correspondence
Not archived · Council Link
SCREENING ASSESSMENT FORM
Other
Not archived · Council Link
Drawing
Archived · Council Link

Take Action

Make your voice heard. Authorities need to hear from people who support new homes.

✉️ Write Email in Support View on Council Portal