← Back to Hull City Council

Status

Application Permitted Change of use
Received
18 Oct 2024
New dwellings
2

Full Proposal

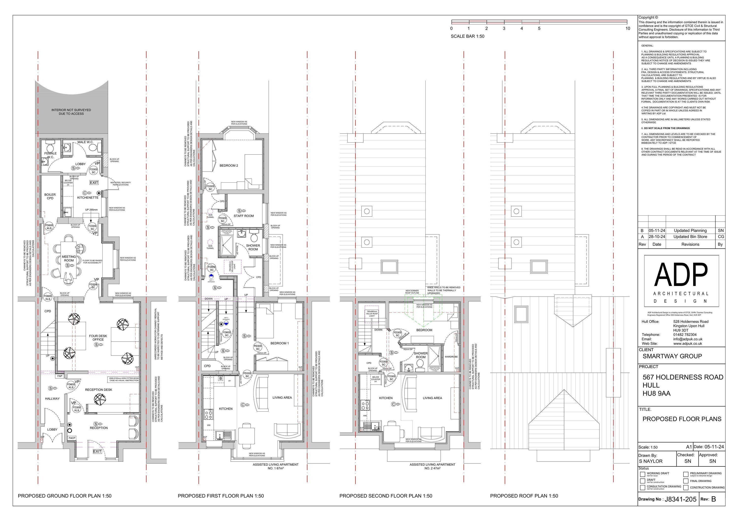
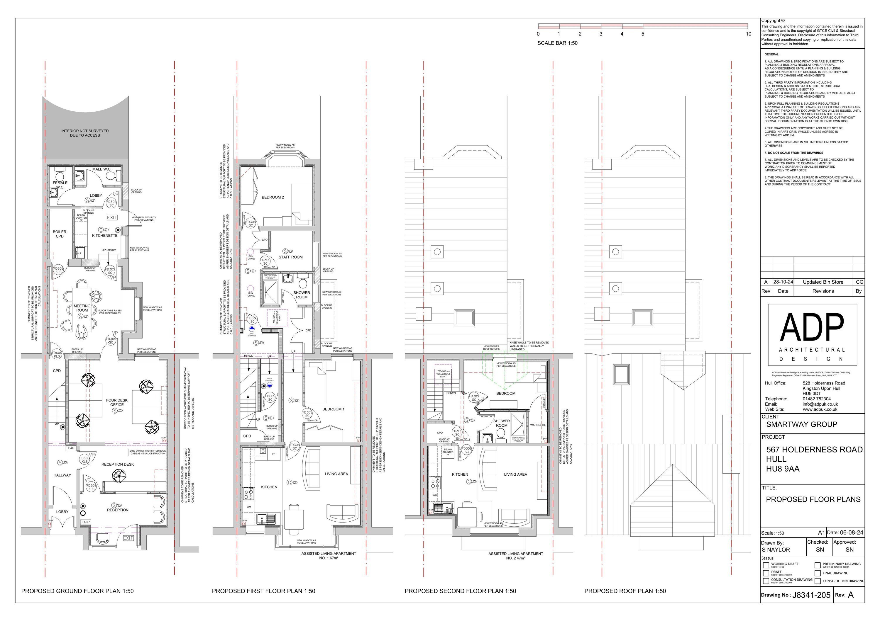
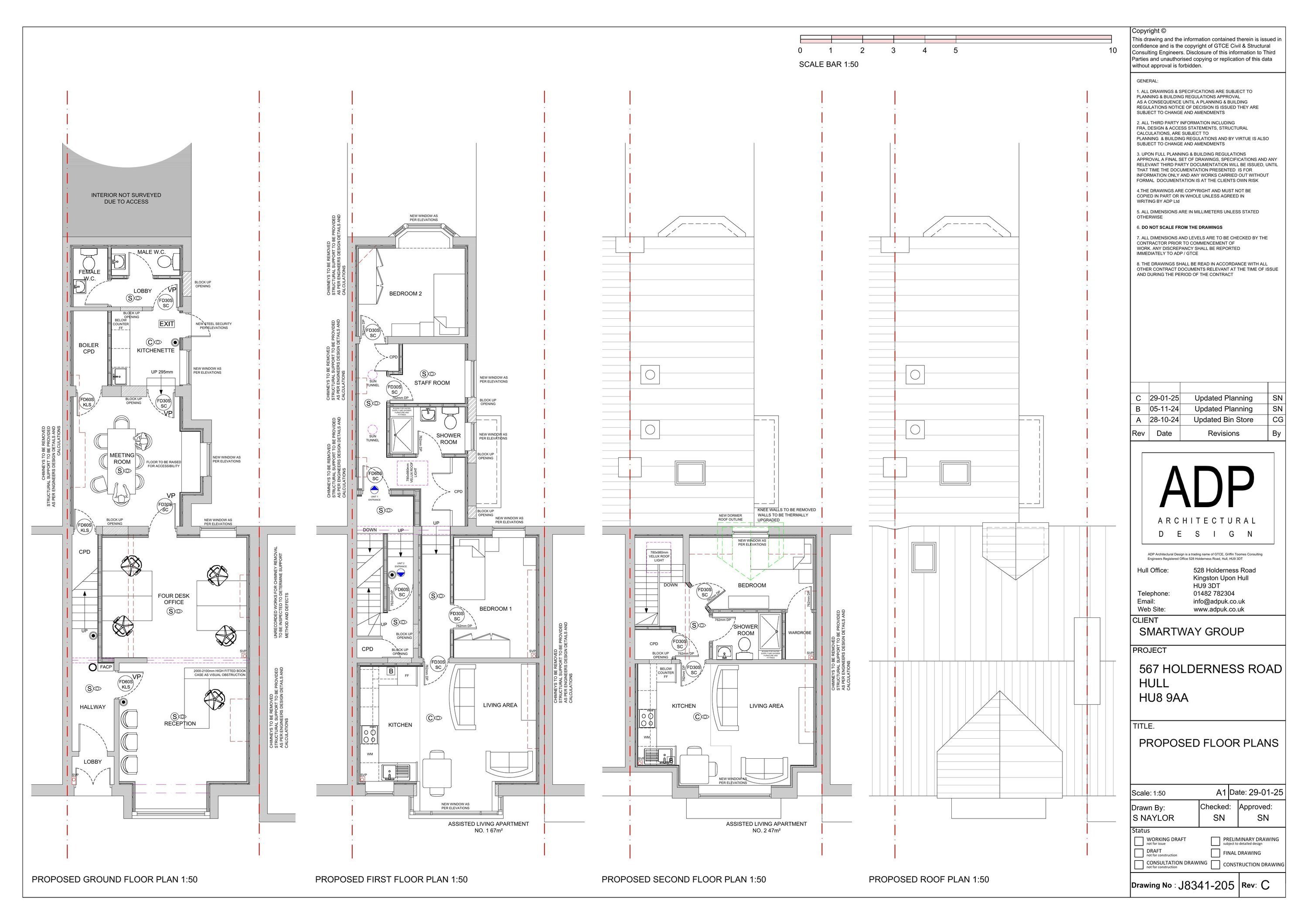
1. Change of use of ground floor to provide office for service provider adults with learning disabilities 2. Change of use of upper floors to provide 2x assisted living apartments for adults with learning disabilities 3. Alterations to building frontage 4. Erection of boundary fencing and gates (1.25m high) to forecourt, plus bin stores (Revised Proposal)

Documents

567 HOLDERNESS ROAD
Application Form
Not archived · Council Link
A SUMMARY OF THE ATTACHMENTS IN THE PROPOSAL
BackGround Papers
Not archived · Council Link
CHECKSHEET
BackGround Papers
Not archived · Council Link
CONSERVATION COMMENTS
Correspondence
Not archived · Council Link
CONSERVATION COMMENTS
Correspondence
Not archived · Council Link
DECISION NOTICE
Decision
Not archived · Council Link
DESIGN AND ACCESS STATEMENT
Other
Not archived · Council Link
DISCHARGE OF CONDITIONS NOS 3 & 4
Application Form
Not archived · Council Link
EMAILS 05/11/2024
Correspondence
Not archived · Council Link
EMAILS FROM AGENT RE RECYCLING OFFICER COMMENTS
Correspondence
Not archived · Council Link
EXISTING AND PROPOSED BLOCK PLANS
Drawing
Not archived · Council Link
EXISTING AND PROPOSED BLOCK PLANS
Drawing
Not archived · Council Link
EXISTING AND PROPOSED BLOCK PLANS
Drawing
Not archived · Council Link
EXISTING AND PROPOSED BLOCK PLANS
Drawing
Not archived · Council Link
EXISTING AND PROPOSED LANDSCAPE
Drawing
Not archived · Council Link
EXISTING AND PROPOSED LANDSCAPING
Drawing
Not archived · Council Link
EXISTING AND PROPOSED LANDSCAPING
Drawing
Not archived · Council Link
EXISTING AND PROPOSED LANDSCAPING
Drawing
Not archived · Council Link
EXISTING AND PROPOSED LANDSCAPING
Drawing
Not archived · Council Link
EXISTING ELEVATIONS
Drawing
Not archived · Council Link
EXISTING FLOOR PLANS
Drawing
Not archived · Council Link
FLOOD RISK ASSESSMENT AND DRAINAGE IMPACT ASSESSMENT
BackGround Papers
Not archived · Council Link
HERITAGE STATEMENT
Report
Not archived · Council Link
HIGHWAYS COMMENTS
Correspondence
Not archived · Council Link
HOUSING STANDARDS, STANDARD RESPONSE
Correspondence
Not archived · Council Link
LOCAL PLAN OPEN SPACE COMMENTS
Correspondence
Not archived · Council Link
LOCAL PLAN OPEN SPACE COMMENTS
Correspondence
Not archived · Council Link
LOCATION PLAN
Drawing
Not archived · Council Link
NEW BUILD FORM
BackGround Papers
Not archived · Council Link
OFFICERS DELEGATED REPORT
Report
Not archived · Council Link
OPEN SPACE CALCULATIONS
Correspondence
Not archived · Council Link
PHOTO
Photo
Not archived · Council Link
PRE-COMMENCEMENT EMAIL
Correspondence
Not archived · Council Link
PRIVATE HOUSING ENV HEALTH COMMENTS
Correspondence
Not archived · Council Link
PROPOSED ELEVATIONS
Drawing
Not archived · Council Link
PROPOSED ELEVATIONS
Drawing
Not archived · Council Link
PROPOSED ELEVATIONS
Drawing
Not archived · Council Link
PROPOSED ELEVATIONS
Drawing
Not archived · Council Link
PROPOSED ELEVATIONS
Drawing
Not archived · Council Link
PROPOSED FENCE AND BIN STORE DETAILS
Drawing
Not archived · Council Link
Drawing
Archived · Council Link
Drawing
Archived · Council Link
Drawing
Archived · Council Link
Drawing
Archived · Council Link
PROPOSED THERMAL AND SOUND SEPARATING UPGRADE DETAILS
Drawing
Not archived · Council Link
PROPOSED THERMAL AND SOUND SEPARATING UPGRADE DETAILS
Drawing
Not archived · Council Link
PROPOSED WALL/FENCE AND BIN STORE DETAILS
Drawing
Not archived · Council Link
PROPOSED WALL/FENCE AND BIN STORE DETAILS
Drawing
Not archived · Council Link
PUBLIC PROTECTION COMMENTS
Correspondence
Not archived · Council Link
RECYCLING COMMENTS
Correspondence
Not archived · Council Link
S106 AGREEMENT
Other
Not archived · Council Link
S106 UNDERTAKING DRAFT
Other
Not archived · Council Link
SITE LOCATION GEOJSON
Other
Not archived · Council Link
THE LOCATION PLAN
OS Extract
Not archived · Council Link
UNILATERAL UNDERTAKING
Other
Not archived · Council Link
URBAN DESIGN COMMENTS
Correspondence
Not archived · Council Link

Take Action

Make your voice heard. Authorities need to hear from people who support new homes.

✉️ Write Email in Support View on Council Portal