← Back to Hull City Council

Status

Pending Consideration Change of use
Received
22 Nov 2024
New dwellings
8

Full Proposal

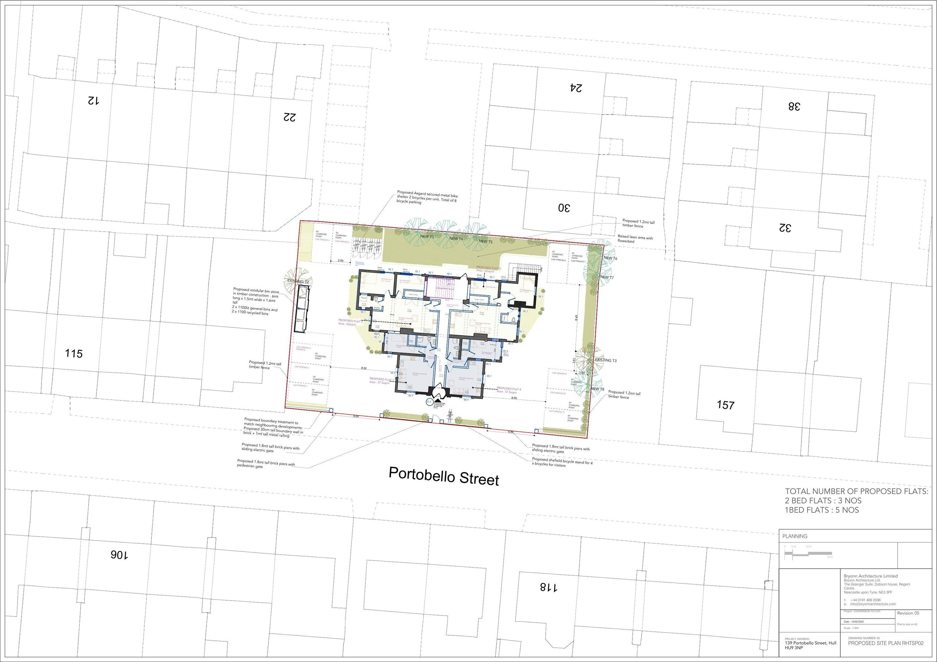
Conversion of vacant public house to 8 self contained flats and other external changes including boundary railings and walls up to 1.8m high.

Documents

A SUMMARY OF THE ATTACHMENTS IN THE PROPOSAL
BackGround Papers
Not archived · Council Link
AGENT EMAILS RE BAT SURVEY
Correspondence
Not archived · Council Link
CHECKSHEET
BackGround Papers
Not archived · Council Link
CONSERVATION COMMENTS
Correspondence
Not archived · Council Link
DEMOLITION PLANS
Drawing
Not archived · Council Link
DEMOLITION PLANS 01
Drawing
Not archived · Council Link
DEMOLITION PLANS 02
Drawing
Not archived · Council Link
DEMOLITION PLANS 02
Drawing
Not archived · Council Link
DESIGN AND ACCESS STATEMENT
Report
Not archived · Council Link
DESIGN AND ACCESS STATEMENT
Other
Not archived · Council Link
DOCUMENT DESCRIPTION
BackGround Papers
Not archived · Council Link
DOCUMENT DESCRIPTION
BackGround Papers
Not archived · Council Link
DOCUMENT DESCRIPTION
BackGround Papers
Not archived · Council Link
DOCUMENT DESCRIPTION
BackGround Papers
Not archived · Council Link
DRAWING AND CALCULATION ISSUE REGISTER
Report
Not archived · Council Link
E-MAIL FROM ALAN WOOD AND PARTNERS
Correspondence
Not archived · Council Link
E-MAIL FROM ENVIRONMENT AGENCY
Correspondence
Not archived · Council Link
E-MAIL FROM FLOOD TEAM
Correspondence
Not archived · Council Link
EMAIL
Correspondence
Not archived · Council Link
EMAIL 01 10 2025 15.37
Correspondence
Not archived · Council Link
EMAIL FROM AGENT
Correspondence
Not archived · Council Link
EMAIL TO AGENT
Correspondence
Not archived · Council Link
EMAILS TO AGENT 03/06/2025
Correspondence
Not archived · Council Link
EXISTING ELEVATIONS
Drawing
Not archived · Council Link
EXISTING ELEVATIONS
Drawing
Not archived · Council Link
EXISTING PLANS
Drawing
Not archived · Council Link
EXISTING PLANS
Drawing
Not archived · Council Link
EXISTING PLANS 02
Drawing
Not archived · Council Link
EXISTING PLANS RHTSP03
Drawing
Not archived · Council Link
Drawing
Archived · Council Link
FLOOD RISK ASSESSMENT
Report
Not archived · Council Link
FLOOD TEAM COMMENTS
Correspondence
Not archived · Council Link
HIGHWAYS DC COMMENTS
Correspondence
Not archived · Council Link
HOUSING STANDARDS, STANDARD RESPONSE
Correspondence
Not archived · Council Link
LOCAL PLAN OPEN SPACE COMMENTS
Correspondence
Not archived · Council Link
PRELIMINARY ECOLOGICAL APPRAISAL AND PRELIMINARY ROOST ASSESSMENT
Report
Not archived · Council Link
PRELIMINARY ROOSE ASSESSMENT
BackGround Papers
Not archived · Council Link
PROPOSED ELEVATIONS
Drawing
Not archived · Council Link
PROPOSED ELEVATIONS
Drawing
Not archived · Council Link
PROPOSED ELEVATIONS
Drawing
Not archived · Council Link
PROPOSED ELEVATIONS
Drawing
Not archived · Council Link
Drawing
Archived · Council Link
Drawing
Archived · Council Link
Drawing
Archived · Council Link
Drawing
Archived · Council Link
Drawing
Archived · Council Link
Drawing
Archived · Council Link
PUBLIC PROTECTION COMMENTS
Correspondence
Not archived · Council Link
SITE LOCATION GEOJSON
Other
Not archived · Council Link
Drawing
Archived · Council Link
SUDS FEASIBILITY STATEMENT
Report
Not archived · Council Link
THE LOCATION PLAN
OS Extract
Not archived · Council Link
URBAN DESIGN COMMENTS
Correspondence
Not archived · Council Link
URBAN FORESTRY COMMENTS
Correspondence
Not archived · Council Link
ZETLAND ARMS, 139 PORTOBELLO STREET
Application Form
Not archived · Council Link

Take Action

Make your voice heard. Authorities need to hear from people who support new homes.

✉️ Write Email in Support View on Council Portal