← Back to Hull City Council

Status

Application Permitted Change of use
Received
13 Jan 2025
New dwellings
0

Summary

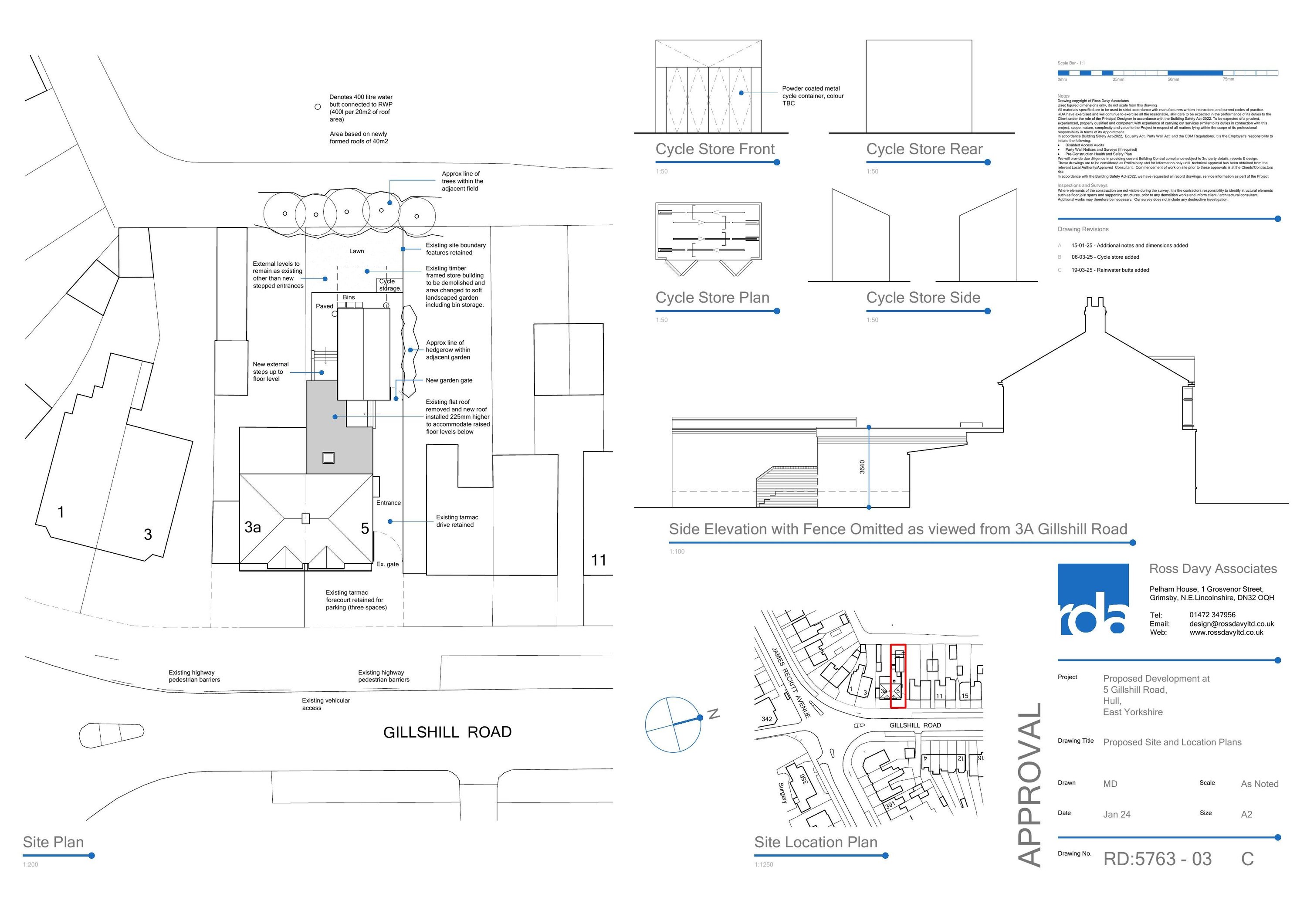
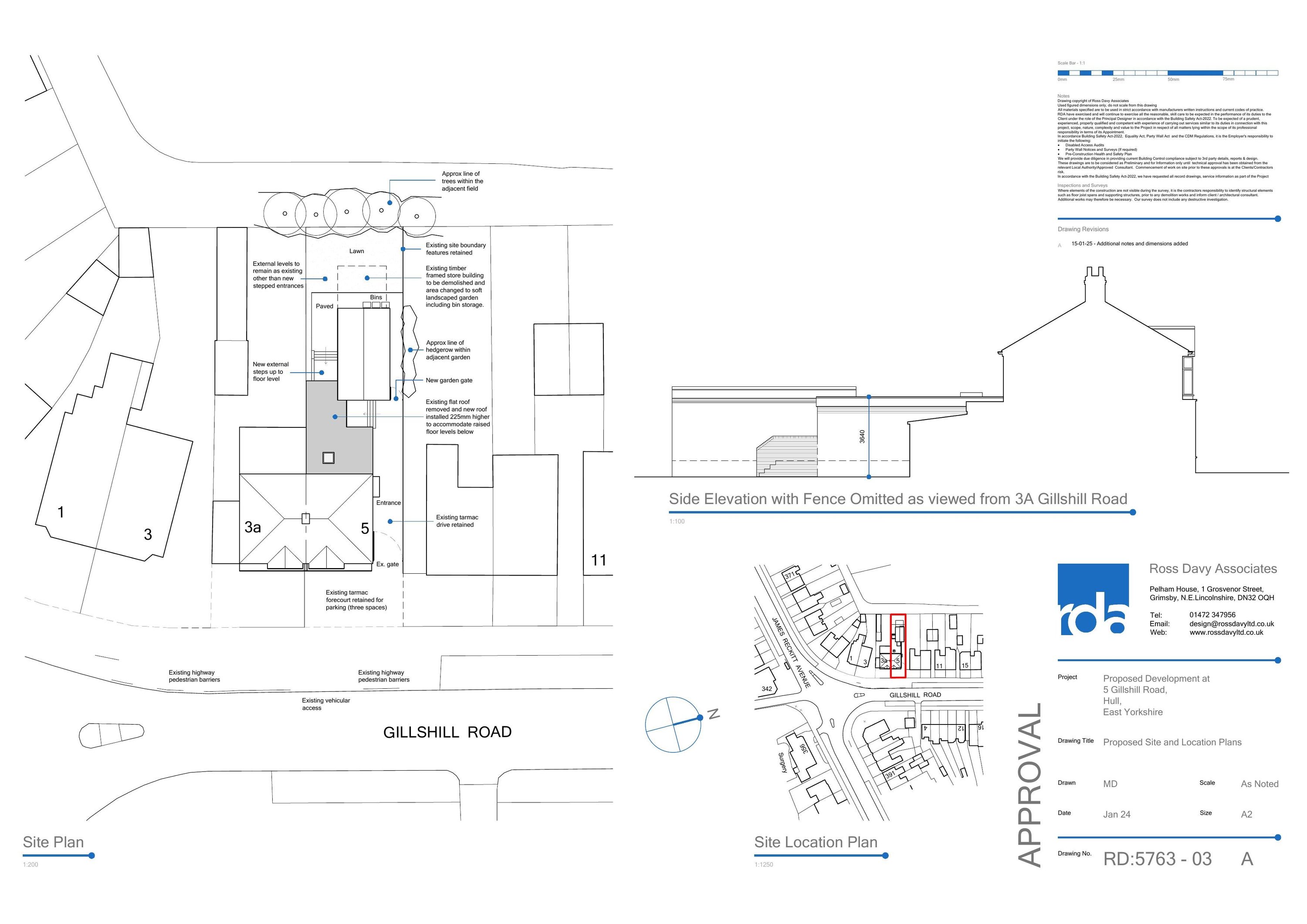
Change of retail unit and flat into a four-bedroom supported living unit with extensions and alterations.

Full Proposal

1. Change of use of retail unit with flat above to create a four bedroom supported living unit, with associated elevational alterations and landscaping. 2. Erection of full-width single storey front extension following removal of timber shopfront. 3. Conversion of rear garage to form habitable accommodation following demolition of timber store. 4. Replacement flat roof to existing single storey rear extension with height increased by 0.23m. 5. Installation of external steps to rear entrances.

Documents

5 GILLSHILL ROAD
Application Form
Not archived · Council Link
A SUMMARY OF THE ATTACHMENTS IN THE PROPOSAL
BackGround Papers
Not archived · Council Link
ACCESS OFFICER COMMENTS
Correspondence
Not archived · Council Link
CHECKSHEET
BackGround Papers
Not archived · Council Link
CLLR EMAIL 17/02/2025
Correspondence
Not archived · Council Link
COMMENTS FROM THE FLOOD TEAM
Correspondence
Not archived · Council Link
COUNCILLOR CALL IN CTTEE LETTER
Correspondence
Not archived · Council Link
CTTEE LETTER TO REPRESENTEES
Correspondence
Not archived · Council Link
DECISION NOTICE
Decision
Not archived · Council Link
DESIGN AND ACCESS STATEMENT
Other
Not archived · Council Link
DESIGN AND ACCESS STATEMENT
Report
Not archived · Council Link
EMAIL
Correspondence
Not archived · Council Link
EMAIL FROM AGENT
Correspondence
Not archived · Council Link
EXISTING PLANS AND ELEVATIONS
Drawing
Not archived · Council Link
EXISTING PLANS AND ELEVATIONS-REV-B
Drawing
Not archived · Council Link
FLOOD RISK ASSESSMENT
Report
Not archived · Council Link
FLOOD RISK ASSESSMENT
Report
Not archived · Council Link
HIGHWAYS DC COMMENTS
Correspondence
Not archived · Council Link
LETTER
Correspondence
Not archived · Council Link
LETTER OF SUPPORT HOLDERNESS ROAD AND GILLSHILL ROAD
Correspondence
Not archived · Council Link
LETTER TO CLLRS WHO CALLED FOR A CTTEE DECISION
Correspondence
Not archived · Council Link
PLANNING COMMITTEE LETTER TO APPLICANT AND AGENT
Correspondence
Not archived · Council Link
PLANNING COMMITTEE REPORT 2 APRIL 2025
Report
Not archived · Council Link
PROPOSED SITE AND LOCATION PLAN
Drawing
Not archived · Council Link
PROPOSED SITE AND LOCATION PLANS
Drawing
Not archived · Council Link
PUBLIC COMMENT
Correspondence
Not archived · Council Link
PUBLIC COMMENT
Correspondence
Not archived · Council Link
PUBLIC COMMENT
Public Comment
Not archived · Council Link
PUBLIC COMMENT
Correspondence
Not archived · Council Link
PUBLIC PROTECTION COMMENTS
Correspondence
Not archived · Council Link
RECYCLING OFFICER COMMENTS
Correspondence
Not archived · Council Link
Drawing
Archived · Council Link
SUPPORTED ACCOMMODATION REVIEW TEAM COMMENTS
Correspondence
Not archived · Council Link
THE LOCATION PLAN
OS Extract
Not archived · Council Link
TO SPEAK AT COMMITTEE
Correspondence
Not archived · Council Link

Take Action

Make your voice heard. Authorities need to hear from people who support new homes.

✉️ Write Email in Support View on Council Portal