← Back to Hull City Council

Status

Pending Consideration New housing
Received
05 Mar 2025
New dwellings
1

Summary

Erect detached two-and-a-half storey five-bedroom dwelling with parking and landscaping.

Full Proposal

Erection of a detached two and a half storey dwellinghouse (5 bed) in the rear garden facing onto Clear View Close, with associated parking, landscaping and boundary treatment.

Documents

230 SALTSHOUSE ROAD
Application Form
Not archived · Council Link
A SUMMARY OF THE ATTACHMENTS IN THE PROPOSAL
BackGround Papers
Not archived · Council Link
BLOCK PLAN OF THE SITE
Drawing
Not archived · Council Link
CHECKSHEET
BackGround Papers
Not archived · Council Link
CLEARVIEW ROOF DESIGNS
Other
Not archived · Council Link
ECOLOGY COMMENTS
Correspondence
Not archived · Council Link
ECOLOGY COMMENTS
Correspondence
Not archived · Council Link
ELEVATION (FRONT) - PROPOSED
Other
Not archived · Council Link
ELEVATION (REAR) - PROPOSED
Other
Not archived · Council Link
ELEVATION (SIDE) - PROPOSED
Other
Not archived · Council Link
EMAIL
Correspondence
Not archived · Council Link
EMAILS FROM AGENT 23/04/2025
Correspondence
Not archived · Council Link
ENVIRONMENT HEALTH COMMENTS
Correspondence
Not archived · Council Link
Drawing
Archived · Council Link
Drawing
Archived · Council Link
FLOOD TEAM COMMENTS
Correspondence
Not archived · Council Link
FLOOR PLAN
Other
Not archived · Council Link
FORM 7 SELF BUILD EXEMPTION CLAIM FORM PART 1
Application Form
Not archived · Council Link
HIGHWAYS COMMENTS
Correspondence
Not archived · Council Link
LOCATION PLAN
Drawing
Not archived · Council Link
OPEN SPACE
Correspondence
Not archived · Council Link
PHOTO
Photo
Not archived · Council Link
PROPOSED ELEVATIONS
Drawing
Not archived · Council Link
Drawing
Archived · Council Link
PROPOSED ROOF PLAN
Drawing
Not archived · Council Link
PROPOSED ROOF PLAN
Drawing
Not archived · Council Link
PROPOSED ROOF PLAN
Drawing
Not archived · Council Link
Drawing
Archived · Council Link
Drawing
Archived · Council Link
Drawing
Archived · Council Link
PUBLIC COMMENT
Correspondence
Not archived · Council Link
PUBLIC COMMENT
Correspondence
Not archived · Council Link
PUBLIC COMMENT
Correspondence
Not archived · Council Link
PUBLIC COMMENT (PA)
Public Comment
Not archived · Council Link
PUBLIC COMMENT (PA)
Public Comment
Not archived · Council Link
PUBLIC COMMENT (PA)
Public Comment
Not archived · Council Link
PUBLIC COMMENT (PA)
Public Comment
Not archived · Council Link
PUBLIC COMMENT (PA)
Public Comment
Not archived · Council Link
PUBLIC COMMENT (PA)
Public Comment
Not archived · Council Link
PUBLIC COMMENT (PA)
Public Comment
Not archived · Council Link
SECTION 39 IDEAS FOR AGENTS
Other
Not archived · Council Link
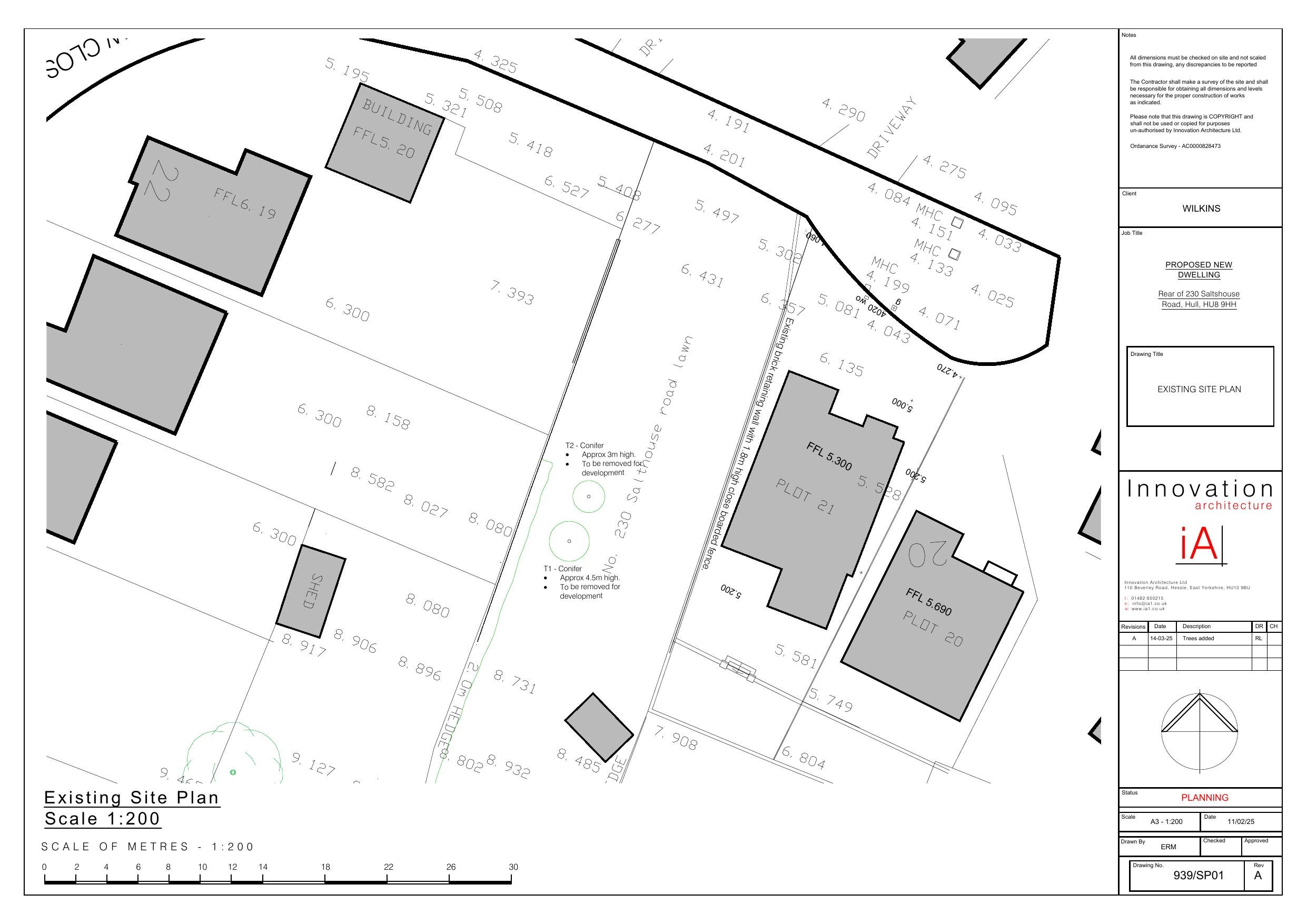
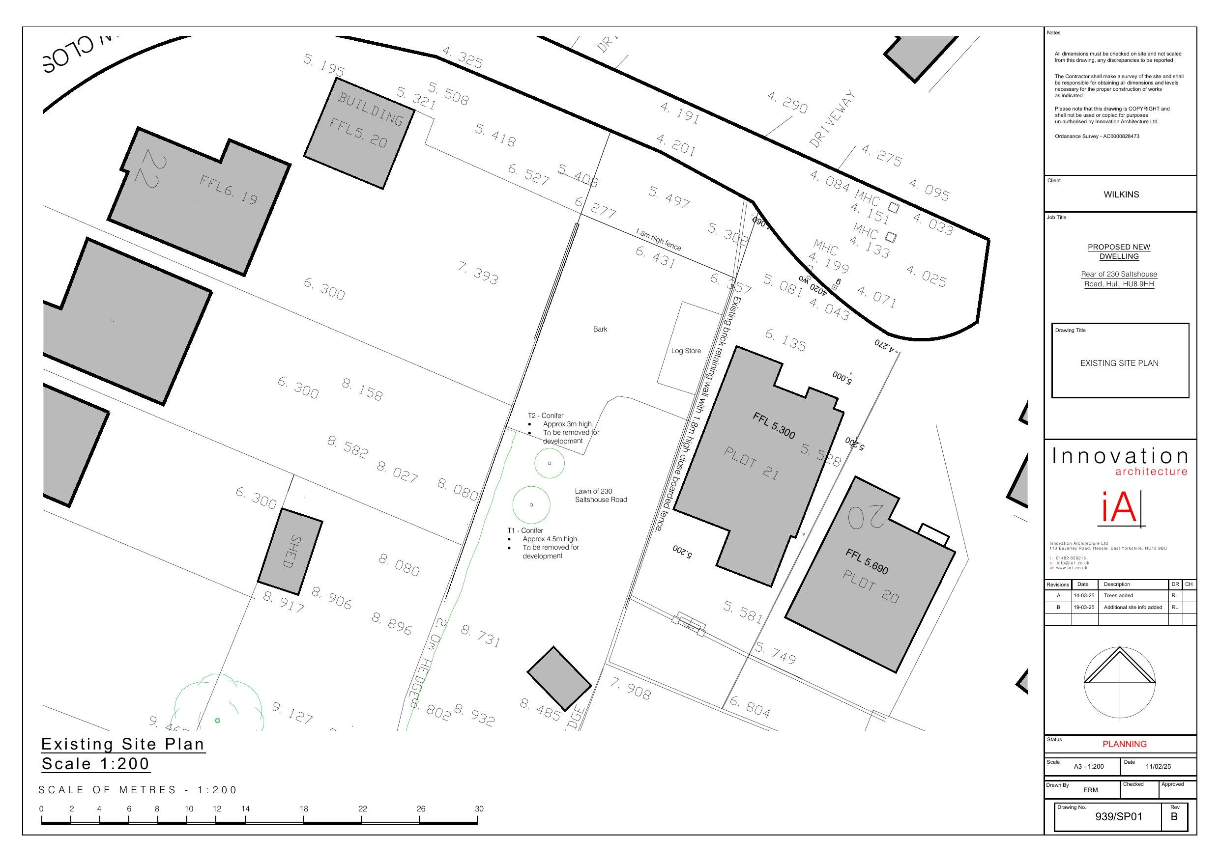
SITE/BLOCK PLAN - EXISTING
Other
Not archived · Council Link
STREET SCENE AND SITE SECTION
Drawing
Not archived · Council Link
STREET SCENE AND SITE SECTION
Drawing
Not archived · Council Link
STREET SCENE ELEVATION AND SITE SECTION
Drawing
Not archived · Council Link
STREET SCENE/CONTEXT PLAN - PROPOSED
Other
Not archived · Council Link
THE LOCATION PLAN
OS Extract
Not archived · Council Link
TREE SURVEY
Report
Not archived · Council Link
TRIPLE BIN STORE EXAMPLE
Other
Not archived · Council Link
URBAN DESIGN COMMENTS
Correspondence
Not archived · Council Link
URBAN DESIGN COMMENTS
Correspondence
Not archived · Council Link
URBAN FORESTRY COMMENTS
Correspondence
Not archived · Council Link

Take Action

Make your voice heard. Authorities need to hear from people who support new homes.

✉️ Write Email in Support View on Council Portal