← Back to Hull City Council

Status

Application Withdrawn New housing
Received
31 Mar 2025
New dwellings
13

Summary

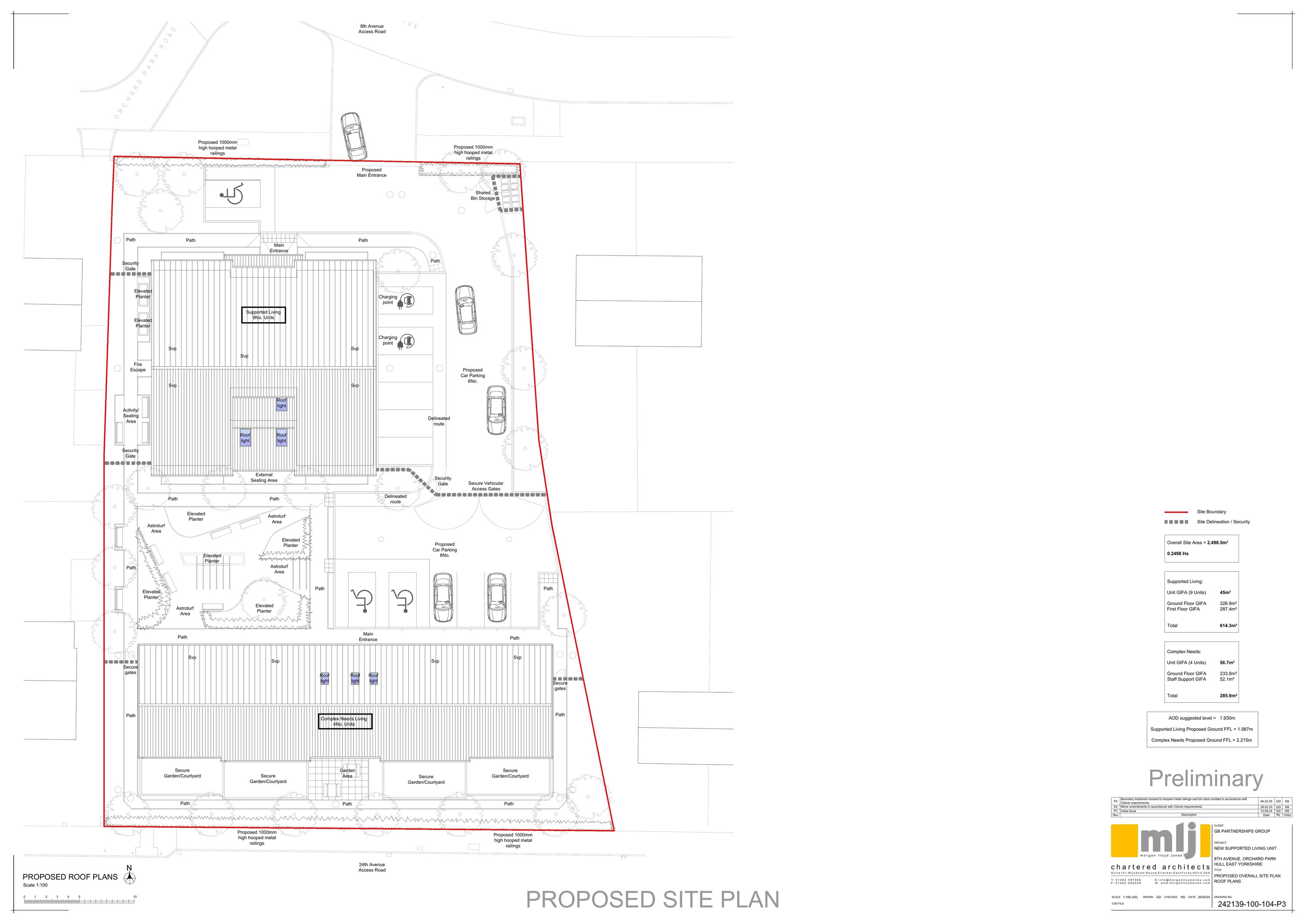
Two-storey building for nine supported living apartments and four bungalows with staff office and parking.

Full Proposal

Erection of two storey building to provide 9 supported living apartments, and single storey building to provide 4 complex needs bungalows, dedicated staff office and ancillary space with ancillary parking and landscaping.

Documents

A SUMMARY OF THE ATTACHMENTS IN THE PROPOSAL
BackGround Papers
Not archived · Council Link
ACCESS OFFICER COMMENTS
Correspondence
Not archived · Council Link
AGENT EMAIL TO ENV AGENCY 27 MAY 25
Correspondence
Not archived · Council Link
BIODIVERSITY GAIN PLAN
Other
Not archived · Council Link
BIODIVERSITY STATEMENT
Other
Not archived · Council Link
BIODIVERSITY SURVEY AND REPORT
Other
Not archived · Council Link
BIODIVERSITY SURVEY AND REPORT
Other
Not archived · Council Link
BIODIVERSITY SURVEY AND REPORT
Other
Not archived · Council Link
CHECKSHEET
BackGround Papers
Not archived · Council Link
COMMENTS FROM THE FLOOD TEAM
Correspondence
Not archived · Council Link
COMMENTS FROM THE SUPPORTED ACCOMMODATION REVIEW TEAM
Correspondence
Not archived · Council Link
DESIGN AND ACCESS STATEMENT
Other
Not archived · Council Link
ENVIRONMENT AGENCY COMMENTS
Correspondence
Not archived · Council Link
ENVIRONMENTAL HEALTH COMMENTS
Correspondence
Not archived · Council Link
EOT
Correspondence
Not archived · Council Link
EXISTING ORDNANCE SURVEY PLAN
Drawing
Not archived · Council Link
FIRE STATEMENT
Other
Not archived · Council Link
FLOOD RISK ASSESSMENT
Report
Not archived · Council Link
FLOOD RISK ASSESSMENT
Report
Not archived · Council Link
HERITAGE STATEMENT
Report
Not archived · Council Link
HIGHWAYS COMMENTS
Correspondence
Not archived · Council Link
NOISE IMPACT ASSESSMENT
Report
Not archived · Council Link
NOISE IMPACT ASSESSMENT
Report
Not archived · Council Link
OPEN SPACES COMMENTS
Correspondence
Not archived · Council Link
PRESS NOTICE
Other
Not archived · Council Link
PROPOSED CONTEXTUAL SITE ELEVATIONS
Drawing
Not archived · Council Link
PROPOSED ELEVATIONS COMPLEX NEEDS LIVING BLOCK TWO
Drawing
Not archived · Council Link
PROPOSED ELEVATIONS SUPPORTED LIVING BLOCK ONE
Drawing
Not archived · Council Link
PROPOSED FLOOR PLAN BLOCK TWO GENERAL ARRANGEMENT
Drawing
Not archived · Council Link
PROPOSED LOCATION PLAN
Drawing
Not archived · Council Link
PROPOSED SECTION A-A SUPPORTED NEEDS LIVING BLOCK ONE
Drawing
Not archived · Council Link
PROPOSED SECTION B-B COMPLEX NEEDS LIVING BLOCK TWO
Drawing
Not archived · Council Link
SITE LOCATION GEOJSON
Other
Not archived · Council Link
SITE PHOTOS
Photo
Not archived · Council Link
SITE PHOTOS
Photo
Not archived · Council Link
SITE PHOTOS
Photo
Not archived · Council Link
SITE PHOTOS
Photo
Not archived · Council Link
SITE PHOTOS
Photo
Not archived · Council Link
SITE PHOTOS
Photo
Not archived · Council Link
SITE PHOTOS
Photo
Not archived · Council Link
SITE PHOTOS
Photo
Not archived · Council Link
SITE PHOTOS
Photo
Not archived · Council Link
SITE PHOTOS
Photo
Not archived · Council Link
SITE PHOTOS
Photo
Not archived · Council Link
SITE PHOTOS
Photo
Not archived · Council Link
THE FORMER ORCHARD PARK PUBLIC HOUSE, 103 8TH AVENUE
Application Form
Not archived · Council Link
THE LOCATION PLAN
OS Extract
Not archived · Council Link
URBAN DESIGN COMMENTS
Correspondence
Not archived · Council Link
URBAN FORESTRY COMMENTS
Correspondence
Not archived · Council Link
WITHDRAWAL EMAIL
Correspondence
Not archived · Council Link
YWS COMMENTS
Correspondence
Not archived · Council Link

Take Action

Make your voice heard. Authorities need to hear from people who support new homes.

✉️ Write Email in Support View on Council Portal