← Back to Hull City Council
Status
Pending Decision
Change of use
Summary
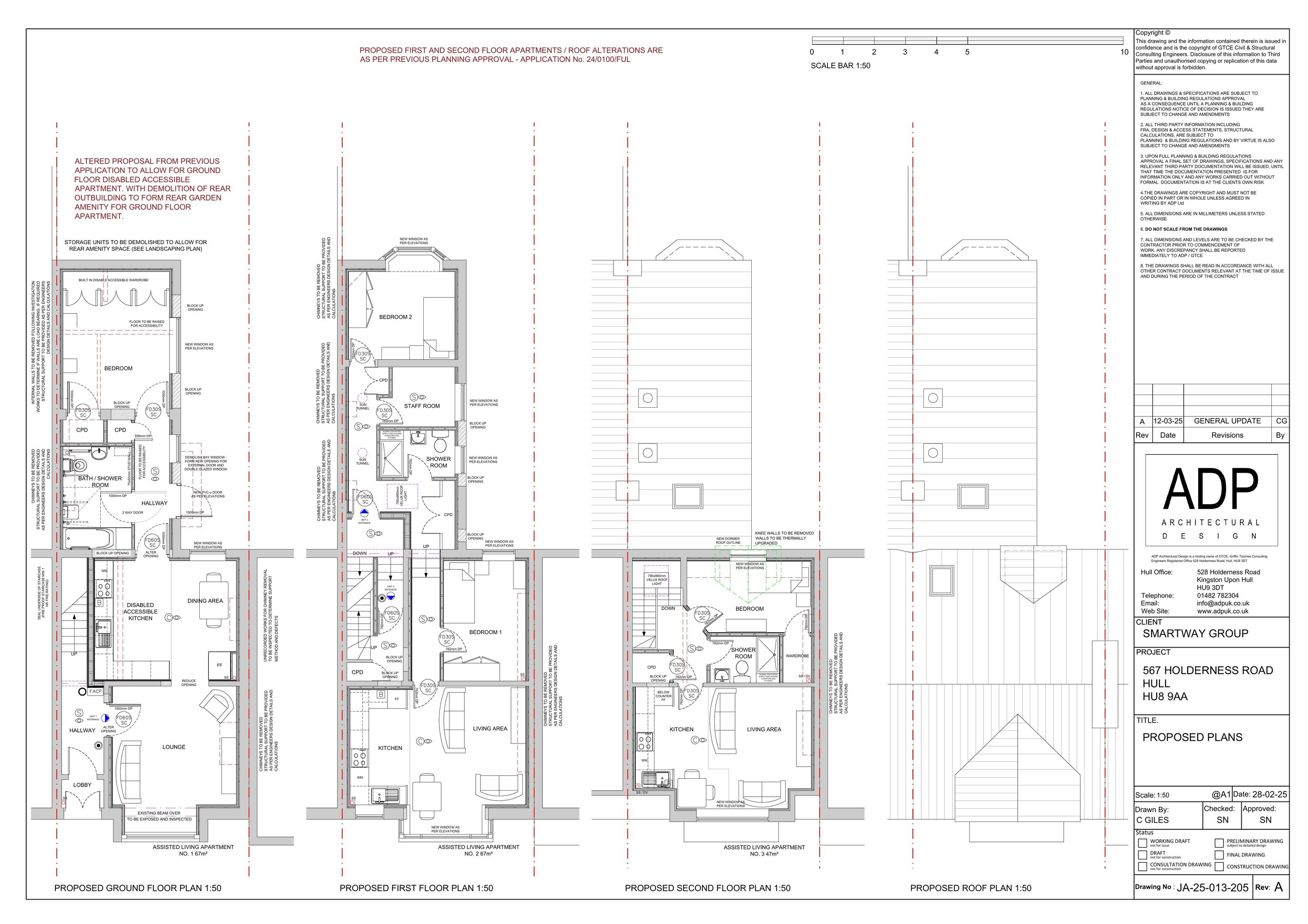
Change ground floor to one disabled-access assisted living apartment, alter frontage, fencing and landscaping.
Full Proposal
1. Change of use of ground floor only to a 1 bedroom disabled accessible assisted living apartment (Related to approval ref 24/01007/FULL - Change of use of upper floors to provide 2x assisted living apartments for adults with learning disabilities); 2. Alterations to building frontage 3. Erection of boundary fencing and gates; 4. New landscaping following demolition of rear extensions.
Documents
567 HOLDERNESS ROAD
Application Form
567 HOLDERNESS ROAD
Application Form
A SUMMARY OF THE ATTACHMENTS IN THE PROPOSAL
BackGround Papers
ACCESS OFFICERS COMMENTS
Correspondence
AGENT AND OFFICER EMAIL 30 JULY 25
Correspondence
CHECKSHEET
BackGround Papers
COMMENTS FROM THE FLOOD TEAM
Correspondence
CONSERVATION COMMENTS
Correspondence
DESIGN ACCESS AND HERITAGE STATEMENT
Report
DESIGN AND ACCESS STATEMENT
Report
DESIGN AND ACCESS STATEMENT
Report
DESIGN AND ACCESS STATEMENT
Report
DOCUMENT DESCRIPTION
BackGround Papers
DOCUMENT DESCRIPTION
BackGround Papers
DOCUMENT DESCRIPTION
BackGround Papers
DOCUMENT DESCRIPTION
BackGround Papers
DOCUMENT DESRCRIPTION
BackGround Papers
DRAFT LEGAL AGREEMENT FROM LEGAL
Other
EMAIL THREAD RE AGREED EXTENSION OF TIME
Correspondence
EMAILS TO AGENT 19/05/2025
Correspondence
ENVIRONMENT AGENCY COMMENTS
Correspondence
ENVIRONMENT HEALTH COMMENTS
Correspondence
ENVIRONMENTAL PROTECTION COMMENTS
Correspondence
EXISTING AND PROPOSED BLOCK PLANS
Drawing
EXISTING AND PROPOSED BLOCK PLANS
Drawing
EXISTING ELEVATIONS
Drawing
EXISTING ELEVATIONS
Drawing
FLOOD RISK AND DRAINAGE ASSESSMENT REPORT
Report
FLOOD RISK ASSESSMENT
Report
FLOOD RISK ASSESSMENT AND DRAINAGE IMACT ASSESSMENT
Report
FLOOD TEAM COMMENTS
Correspondence
HERITAGE IMPACT ASSESSMENT
Report
HERITAGE STATEMENT
Report
HIGHWAYS COMMENTS
Correspondence
NOISE IMPACT ASSESSMENT
Report
NOISE IMPACT ASSESSMENT
Report
OPEN SPACE REQUIREMENTS
Correspondence
PROPOSED ELEVATIONS
Drawing
PROPOSED ELEVATIONS
Drawing
PROPOSED LANDSCAPING PLANS AND WALL/FENCE AND BIN STORE DETAILS
Drawing
PROPOSED LANDSCAPING WALL FENCE AND BIN STORE DETAILS
Drawing
PROPOSED THERMAL AND SOUND SEPARATING UPGRADE DETAILS
Drawing
PROPOSED UPGRADE DETAILS
Drawing
RECYCLING OFFICER COMMENTS
Correspondence
THE LOCATION PLAN
OS Extract
Take Action
Make your voice heard. Authorities need to hear from people who support new homes.