← Back to Hull City Council

Status

Application Permitted Change of use
Received
28 Apr 2025
New dwellings
0

Summary

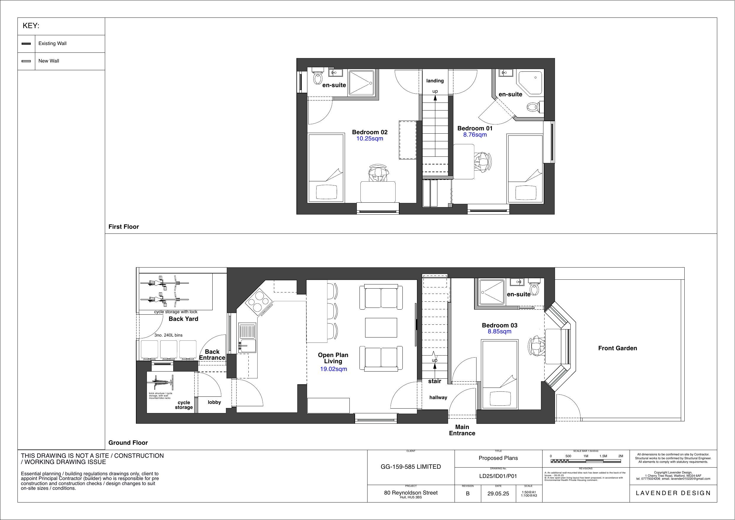
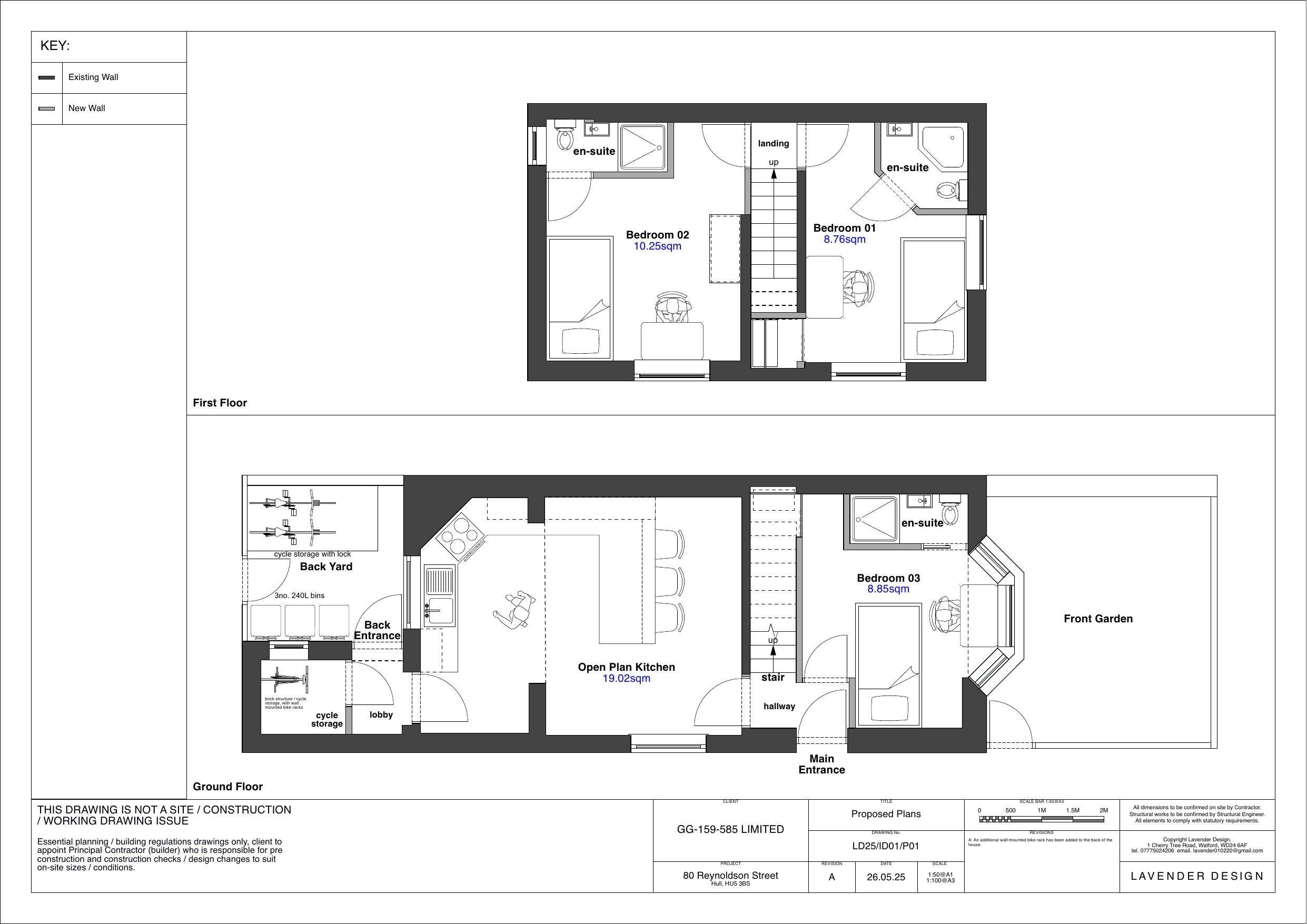
Change 2-bed dwellinghouse to 3-bed House in Multiple Occupation; relocate entrance and replace bay window.

Full Proposal

Change of use of a 2-bedroom dwellinghouse (Use Class C3) to a 3-bedroom House in Multiple Occupation (use class C4). Relocation of entrance door in south side elevation (fronting Reynoldson Street) and replacement of existing ground floor bay window in east elevation (Amended Plans received)

Documents

80 REYNOLDSON STREET
Application Form
Not archived · Council Link
A SUMMARY OF THE ATTACHMENTS IN THE PROPOSAL
BackGround Papers
Not archived · Council Link
APPLICANT EMAIL 29 MAY 25
Correspondence
Not archived · Council Link
APPLICATION CHECKLIST
Officer Notes
Not archived · Council Link
BLOCK PLAN
Drawing
Not archived · Council Link
CLLR COMMENT
Correspondence
Not archived · Council Link
COVERING LETTER
Other
Not archived · Council Link
CYCLE STORAGE
Drawing
Not archived · Council Link
CYCLE STORAGE
Drawing
Not archived · Council Link
CYCLE STORAGE
Drawing
Not archived · Council Link
CYCLE STORAGE
Drawing
Not archived · Council Link
DECISION
Decision
Not archived · Council Link
DELEGATED REPORT
Report
Not archived · Council Link
DESIGN AND ACCESS STATEMENT
Report
Not archived · Council Link
DOCUMENT DESCRIPTION
BackGround Papers
Not archived · Council Link
E-MAIL FROM APPLICANT
Correspondence
Not archived · Council Link
EMAILS 29/05/2025
Correspondence
Not archived · Council Link
EMAILS FROM APPLICANT 27/05/2025
Correspondence
Not archived · Council Link
EMAILS TO APPLICANT 07/05/2025
Correspondence
Not archived · Council Link
EMAILS TO HIGHWAYS
Correspondence
Not archived · Council Link
EXISTING PLANS
Drawing
Not archived · Council Link
EXTERNAL ALTERATIONS
Correspondence
Not archived · Council Link
EXTERNAL ELEVATIONS
Drawing
Not archived · Council Link
FLOOD RISK ASSESSMENT
Report
Not archived · Council Link
HIGHWAYS COMMENTS
Correspondence
Not archived · Council Link
HIGHWAYS COMMENTS
Correspondence
Not archived · Council Link
HIGHWAYS COMMENTS
Correspondence
Not archived · Council Link
HIGHWAYS COMMENTS
Correspondence
Not archived · Council Link
HIGHWAYS DC COMMENTS UPDATED
Correspondence
Not archived · Council Link
PRIVATE HOUSING (ENV HEALTH) COMMENTS
Correspondence
Not archived · Council Link
PRIVATE HOUSING (ENV HEALTH) COMMENTS
Correspondence
Not archived · Council Link
Drawing
Archived · Council Link
Drawing
Archived · Council Link
Drawing
Archived · Council Link
Drawing
Archived · Council Link
PUBLIC COMMENT (PA)
Public Comment
Not archived · Council Link
RECYCLING OFFICER COMMENTS
Correspondence
Not archived · Council Link
RESPONSE TO PUBLIC COMMENT
Correspondence
Not archived · Council Link
SITE LOCATION GEOJSON
Other
Not archived · Council Link
THE LOCATION PLAN
OS Extract
Not archived · Council Link

Take Action

Make your voice heard. Authorities need to hear from people who support new homes.

✉️ Write Email in Support View on Council Portal